NewConstruction UnderBehandling Fritidsbolig

Ny fritidsbolig med hems i Salbu Grend, Sørbøvåg

📍 Salbu Grend, 6958 Sørbøvåg

Nøkkelinfo

Sakstype
Nybygg
Bygningstype
Fritidsbolig
Bruksareal
105 m²
Boenheter
1
Kommune
Hyllestad
Fylke
Vestland
Gnr / Bnr
29 / 45
Saksnummer
2026/32
Fase
Under behandling

Om byggesaken

Ny fritidsbolig på 105,2 m² BRA med en hems på ca. 22,7 m² (ikke måleverdig areal) oppføres på en tomt i Salbu Grend, Sørbøvåg. Boligen har ett plan med saltak tekket med lakkert stålplate og fasader i tre med royal impregnert kledning og aluminiumskledde vinduer. Planløsningen inkluderer kjøkken/stue på 44 m², to soverom, bad, vask-teknisk rom, gang, bod og wc. Det er en overbygd terrasse på 11,9 m² og en stor terrasse på 43,2 m². Bygget har 4 frie fasader, pipe og eldstad. Tomta er bratt og ligger i LNF-område, med dispensasjon fra arealplan og byggegrense mot fylkesveg. Det er etablert privat og kommunal VA-løsning. Prosjektet inkluderer grunnarbeid, betongarbeid med isolert ringmur og plate på mark, tømrerarbeid, VVS og sanitær, samt montering av pipe.

Produkter og materialer

Terrasse Uteareal og terrasse

Terrasse på 43,2 m² og overbygde arealer på 11,9 m² og 4,8 m²

Uteareal for opphold og adkomst

VVS Sanitær og avløpsanlegg

Komplett sanitær- og VA-anlegg til kommunalt tilknytningspunkt, inkludert septiktank

VVS-installasjoner for vann og avløp

Bad Bad og WC innredning

Bad på 6,4 m² og WC på 1,5 m² med sanitærutstyr

Bad og WC med nødvendig utstyr og overflater

Tømrer Bygningsmessige arbeider og tømrerarbeid

Tømrerarbeid inkludert mindre beslagarbeid og montering av prefabrikkert pipe

Utførelse av bygningskropp og pipe

Dører Ytterdører og innerdører

🧱 Tre/aluminium

Antall: 10

Dører til inngang, bod, soverom, bad, vaskerom og gang

Dører for alle rom og utganger

Gulv Innvendige gulv

Ikke spesifisert, men vanlig for fritidsbolig

Innvendige gulvflater i bolig

Grunnarbeid Avgraving, sprenging, fylling og arrondering

Grunnarbeid i henhold til prosjektering, inkludert tilpasning til fjell og terreng

Grunnarbeid for bygging av plate på mark og ringmur

Betong Isolert ringmur og isolert plate på mark

Betongarbeid for fundamentering og isolasjon

Betongfundamentering for fritidsboligen

Tak Saltak med stålplatetak

🧱 Isola Powertekk lakkert stålplate

Antall: 1

Saltak med takvinkel ca. 30°, taktekking med lakkert stålplate

Taktekking for fritidsboligen

Fasade Trepanel med impregnering

🧱 Royal impregnert trepanel

Antall: 1

Vedlikeholdsvennlig utvendig kledning

Fasadebekledning for alle fire fasader

Elektro Elektriske installasjoner

Elektriske installasjoner i henhold til forskrifter

Elektroinstallasjoner for bolig

Vinduer Aluminiumskledde trevinduer

🧱 Tre med aluminiumsbekledning

Antall: 9

Vinduer i ulike størrelser, inkludert skråvinduer med 30° vinkel, sidehengsla rømningsvinduer

Vinduer for alle rom, inkludert kjøkken/stue, soverom, bad og bod

Pipe Prefabrikkert pipe og eldstad

Antall: 1

Montering i henhold til produsentens anvisninger

Pipe og ildsted for oppvarming

Plantegning

Fritidsbustad 105.2 m²

Etasje 1 105.2 m²

Rom Areal Vinduer Dører
Kjøkken/stue 101 44.0 m² 3 2
Bad 102 6.4 m² 1 1
Vask-teknisk 103 5.6 m² 0 1
Gang 104 6.3 m² 0 2
Soverom 1 105 10.8 m² 1 1
Soverom 2 106 9.3 m² 1 1
Bod 107 4.5 m² 1 1
Vc 108 1.5 m² 0 0

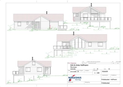
Fasader

Fritidsbustad

Vest
Materiale
Tre
Taktype
Saltak
Takmat.
Tegl
Vinduer
3
Dører
1
Balkonger
1
Synlige etasjer
1
Nord
Materiale
Tre
Taktype
Saltak
Takmat.
Tegl
Vinduer
3
Dører
1
Balkonger
1
Synlige etasjer
1
Sør
Materiale
Tre
Taktype
Saltak
Takmat.
Tegl
Vinduer
2
Dører
1
Balkonger
1
Synlige etasjer
1

Hendelser

20.04.2026 Kulturmiljøfagleg fråsegn - TIl uttale - dispensasjon - oppføring fritidsbustad - gnr. 29 bnr. 45 - Hyllestad kommune
25.02.2026 Fråsegn - dispensasjon - Sørbøvåg 29/45 - Salbu Grend - oppføring av fritidsbustad
04.02.2026 Uttale - dispensasjon - oppføring fritidsbustad - gnr. 29 bnr. 45 - Hyllestad kommune
29.01.2026 NVE si uttale - Høyring - Søknad om dispensasjon - Oppføring av fritidsbustad - Gnr. 29 bnr. 45 - Hyllestad kommune
27.01.2026 Oppdatering - Oppføring av fritidsbustad - Gbnr 29/45 - Salbu Grend - 6958 Sørbøvåg
26.01.2026 Kulturmiljøfagleg fråsegn - TIl uttale - dispensasjon - oppføring fritidsbustad - gnr. 29 bnr. 45 - Hyllestad kommune
23.01.2026 Oversender søknad til uttalelse - Gbnr 29/45 - Salbu Grend - 6958 Sørbøvåg - Oppføring av fritidsbustad
23.01.2026 Foreløpig svar på søknad - Gbnr 29/45 - Salbu Grend - 6958 Sørbøvåg - Oppføring av fritidsbustad
13.01.2026 Søknad om tillatelse i ett trinn 29/45