NewConstruction Soeknad Fritidsbolig

Ny fritidsbolig i Sandvikvegen 17, Austvatn

📍 Sandvikvegen 17 , 2134 AUSTVATN

Nøkkelinfo

Sakstype
Nybygg
Bygningstype
Fritidsbolig
Bruksareal
127 m²
Boenheter
1
Kommune
Nord-Odal
Fylke
Innlandet
Gnr / Bnr
55 / 56
Saksnummer
26/1186
Fase
Søknad

Om byggesaken

Ny fritidsbolig på 126,6 m² BRA med ett plan oppføres på tomt i Sandvikvegen 17, Austvatn. Bygget har to soverom, bod, hall/gang, WC, bad/vaskerom, stue og kjøkken. Hytten har saltak og trekledning, med 6 vinduer og 2 dører på sørvestfasaden, samt pipe og en balkong. Bygget tilpasses terrenget med minimal terrengbearbeiding og følger tradisjonell byggeskikk med naturfarger og ikke-reflekterende takmaterialer. Parkeringsareal på 36 m² er inkludert i utnyttelsesgraden, og tilknytning til privat vann- og avløpsanlegg er planlagt.

Produkter og materialer

VVS Vann- og avløpsinstallasjon

Tilkobling til privat vann- og avløpsanlegg

Installasjon for vann og avløp tilkoblet eksisterende privat anlegg

Parkering Parkeringsareal

36 m² parkeringsareal inkludert i BYA

Parkeringsareal for minimum to biler i henhold til reguleringsbestemmelser

Grunnarbeid Tomtearbeid og fundamentering

Minimal terrengbearbeiding, tilpasning til eksisterende terreng

Grunnarbeid med minimal terrengbearbeiding i henhold til reguleringsbestemmelser

Dører Ytterdør

Antall: 2

2 ytterdører på sørvestfasade

Trapper Innvendig trapp

Antall: 1

Innvendig trapp i hytten

Kjøkken Kjøkkeninnredning

Kjøkkeninnredning i rom på 16,5 m²

Bad Bad/vaskerom innredning

Innredning for bad og vaskerom på 6,4 m²

Fasade Trekledning

🧱 Tre

Tradisjonell byggeskikk, naturfarger

Utvendig trekledning i naturfarger i tråd med reguleringsbestemmelser

Vinduer Fasadevindu

Antall: 6

6 vinduer på sørvestfasade

Elektro Elektrisk installasjon

Elektriske installasjoner iht. gjeldende forskrifter

Pipe Pipe

Antall: 1

Pipe for ildsted i hytten

Tak Saltak

🧱 Ikke-reflekterende takmateriale

Saltak med ikke-reflekterende takmaterialer

Tak med saltak og ikke-reflekterende takmateriale i henhold til reguleringsplan

Terrasse Terrasse

🧱 Tre

Antall: 1

Terrasse tilknyttet hytten

Gulv Innvendige gulv

Innvendige gulv i alle rom

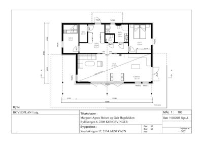
Plantegning

Hytte 126.6 m²

Etasje 1 126.6 m²

Rom Areal Vinduer Dører
SOV 1 101 13.6 m² 1 1
SOV 2 102 9.4 m² 1 1
BOD 103 3.0 m² 0 1
HALL/GANG 104 16.9 m² 0 3
WC 105 1.4 m² 0 1
BAD/VASK 106 6.4 m² 0 1
STUE 107 27.8 m² 1 1
KJØKKEN 108 16.5 m² 2 0

Fasader

Hytte

Sør-Vest
Materiale
Tre
Taktype
Saltak
Vinduer
6
Dører
2
Balkonger
1
Synlige etasjer
1

Hendelser

17.04.2026 Eiendommen 55/56 - Søknad om tillatelse i ett trinn