NewConstruction Soeknad Fritidsbolig

Ny fritidsbolig med bod på Øvre Lontjørnshaugane 47

📍 Seljestad, Øvre Lontjørnshaugane 47 , 5763 SKARE

Nøkkelinfo

Sakstype
Nybygg
Bygningstype
Fritidsbolig
Bruksareal
126 m²
Boenheter
1
Kommune
Ullensvang
Fylke
Vestland
Gnr / Bnr
31 / 639
Saksnummer
2026/1188
Fase
Søknad

Om byggesaken

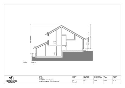
Ny fritidsbolig på 99,1 m² BYA med integrert bodareal på 26,2 m² under samme saltak med 30° takvinkel og torvtak. Bygget har to etasjer med totalt 125,76 m² BRA, inkludert stue/kjøkken, fire soverom, to bad, gang, hems og flere boder. Yttervegger er kledd med mørk trekledning, og bygget har pipe. Gesimshøyde er 3,77 m og mønehøyde 6,80 m, tilpasset terrenget for å minimere inngrep. Bygget er tilpasset landskapet og eksisterende hyttebebyggelse i området, med god utnyttelse innenfor reguleringsplanens rammer.

Produkter og materialer

VVS Innvendig vann og avløp

Sanitærinstallasjoner og vann/avløpssystemer

Gulv Innvendige gulvflater

Gulv i alle rom, inkludert stue, soverom, bad og boder

Tak Saltak med torvtak

🧱 Torvtak

Saltak med 30° takvinkel, torvtak som taktekking

Taktekking og takkonstruksjon

Vinduer Fasadevindu

Antall: 17

Vinduer i fasader fordelt på to etasjer, inkludert soverom og stue/kjøkken

Pipe Murpipe

Antall: 1

Pipe til ildsted i fritidsboligen

Trapper Innvendig trapp

Antall: 1

Innvendig trapp mellom 1. og 2. etasje

Elektro Elektrisk installasjon

Elektriske installasjoner i henhold til forskrifter

Grunnarbeid Tomtearbeid og terrengtilpasning

Terrenginngrep begrenses, dokumentert i terrengsnitt

Grunnarbeid for tilpasning til eksisterende terreng

Fasade Trekledning

🧱 Mørk tre

Yttervegger utført i mørk trekledning for dempet uttrykk og god tilpasning til landskap

Fasademateriale for yttervegger

Dører Ytterdører og innerdører

Antall: 13

Ytterdører og innerdører i bygget, inkludert inngangsdører og dører til rom og boder

Betong Ringmur og støttemurer

Ringmur og støttemurer i betong for fundamentering

Maling Innvendig og utvendig maling

Maling av innvendige flater og utvendig trekledning

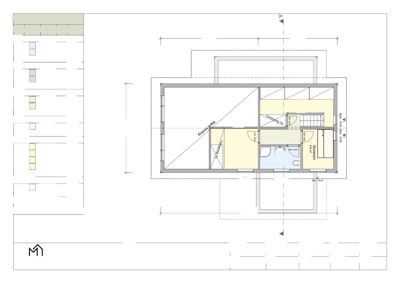
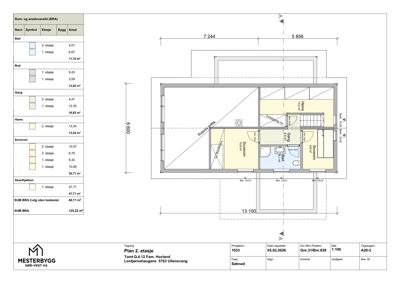
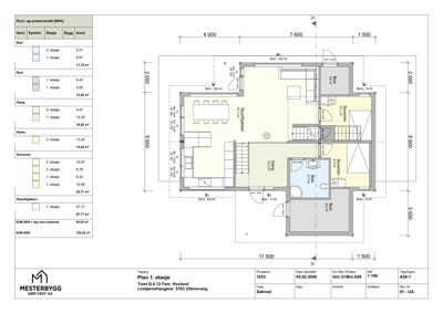
Plantegning

Enebolig 125.8 m²

Etasje 2 40.1 m²

Rom Areal Vinduer Dører
Soverom 201 10.6 m² 1 1
Soverom 202 6.8 m² 1 1
Gang 203 4.5 m² 0 2
Hems 204 13.2 m² 0 1
Bad 205 5.1 m² 0 1

Etasje 1 85.7 m²

Rom Areal Vinduer Dører
Stue/Kjøkken 101 47.7 m² 4 1
Gang 102 12.3 m² 0 2
Bad 103 6.7 m² 0 1
Soverom 104 10.1 m² 1 1
Soverom 105 8.3 m² 1 1
Bod 106 9.4 m² 1 1
Bod 107 3.6 m² 1 1
Bod 108 3.6 m² 0 1

Fasader

Enebolig

Nord
Materiale
Tre
Taktype
Saltak
Høyde
5.6 m
Vinduer
2
Dører
0
Synlige etasjer
2
Sør
Materiale
Tre
Taktype
Saltak
Høyde
6.8 m
Vinduer
4
Dører
1
Synlige etasjer
2
Vest
Materiale
Tre
Taktype
Saltak
Høyde
5.6 m
Vinduer
4
Dører
1
Synlige etasjer
2
Øst
Materiale
Tre
Taktype
Saltak
Høyde
6.8 m
Vinduer
5
Dører
1
Synlige etasjer
2

Hendelser

17.04.2026 Ber om status – Øvre Lontjørnshaugane 47
23.03.2026 Gnr 31, bnr 639 - Øvrelontjørnshaugane 47 - Søknad om tiltak - bygging av fritidsbustad