NewConstruction UnderBehandling Fritidsbolig

Ny fritidsbolig med avløpsanlegg i Setrevegen 75, Stryn

📍 Setrevegen 75 , 6783 STRYN

Nøkkelinfo

Sakstype
Nybygg
Bygningstype
Fritidsbolig
Bruksareal
155 m²
Boenheter
1
Kommune
Stryn
Fylke
Vestland
Gnr / Bnr
60 / 199
Saksnummer
2025/972
Fase
Under behandling

Om byggesaken

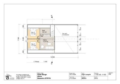
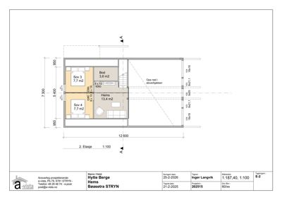
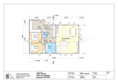
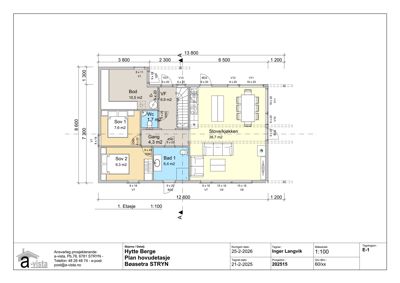
Ny fritidsbolig på ca. 154,9 m² BRA fordelt på to etasjer bygges på en ny fradelt tomt i Setrevegen 75, Stryn. Hytta har saltak med takvinkel på 30 grader, gesimshøyde ca. 3,7 m og mønehøyde ca. 5,8 m. Første etasje inneholder stue/kjøkken, gang, bad, to soverom, wc, bod og vindfang, mens hems og to soverom samt bod er i andre etasje. Bygget har trefasader og pipe. Det etableres privat vannforsyning og et SINTEF-godkjent Klaro 5 PE minirenseanlegg med etterklorering for sanitært avløpsvann, med utslipp til elv. Det er planlagt midlertidig anleggsvei under bygging, men ingen permanent vei eller parkering på tomten. Tomten er omdisponert og fradelt med dispensasjon fra kommunedelplanens omsynssone for bevaring av naturmiljø, og det foreligger godkjent utslippstillatelse for avløpsanlegget.

Produkter og materialer

VVS Minirenseanlegg

Antall: 1

Klaro 5 PE GRP 3 minirenseanlegg med 90% renseeffekt for fosfor og BOF5, inkludert etterklorering

Privat minirenseanlegg for sanitært avløpsvann med utslipp til elv

Betong Ringmur og plate

🧱 Betong

Antall: 1

Ringmur og plate utført av BETONGENTREPRENØR KÅRE BØE AS

Betongarbeid for fundamentering av hytta

Dører Ytterdører og innerdører

🧱 Tre

Antall: 15

Ytterdører og innerdører i tre, inkludert inngangsdør og dører til rom

Dører i tre til hytta, totalt 15 stk

Elektro Elektrisk installasjon

Antall: 1

Elektrisk installasjon iht. krav, ansvarlig Kr. A. Vik AS

Elektrisk installasjon i hytta

Vinduer Fasadevindu

🧱 Tre

Antall: 25

Flere vinduer i ulike størrelser, inkludert store vinduer i gavl

Fasadevinduer i tre til hytta, totalt 25 stk fordelt på to etasjer

Trapper Innvendig trapp

🧱 Tre

Antall: 1

Innvendig trapp mellom etasjer

Innvendig trapp i tre mellom første og andre etasje

Gulv Innvendige gulv

Antall: 1

Gulv i stue/kjøkken, soverom og hems, type ikke spesifisert

Innvendige gulv i hytta

Fasade Trepanel

🧱 Tre

Antall: 1

Trepanel på alle fasader

Trepanel som fasadekledning på hytta

Maling Innvendig og utvendig maling

Antall: 1

Maling av trepanel og innvendige flater

Maling av fasade og innvendige overflater

Annet Arbeidsvei midlertidig

Antall: 1

Midlertidig arbeidsvei for transport av byggematerialer under byggeperioden, skal tilbakeføres

Midlertidig anleggsvei til hyttetomt

Tak Saltak

🧱 Tre med taktekking

Antall: 1

Saltak med 30 graders takvinkel

Saltak på hytta med takvinkel 30 grader

Grunnarbeid Tomtearbeid og oppmåling

Antall: 1

Oppmåling og grensejustering av tomt, terrenginngrep minimalisert og tilbakeført

Grunnarbeid for tomt, inkludert oppmåling og grensejustering

Tømrer Tømrerarbeid og våtrom

Antall: 1

Tømrerarbeid og våtrom utført av STRYN BYGG OG EIGEDOM AS

Tømrerarbeid og våtromsarbeid i hytta

VVS Privat vannforsyning

Antall: 1

Privat vannforsyning etter råd fra rørlegger

Privat vannforsyning til hytta

Fasader

Hytte

Ukjent
Materiale
Tre
Taktype
Flatt tak
Vinduer
4
Dører
2
Synlige etasjer
1
Sør
Materiale
Tre
Taktype
Saltak
Vinduer
5
Dører
1
Synlige etasjer
2
Aust
Materiale
Tre
Taktype
Saltak
Vinduer
3
Dører
3
Synlige etasjer
1
Nord
Materiale
Tre
Taktype
Saltak
Vinduer
3
Dører
0
Synlige etasjer
1
Vest
Materiale
Tre
Taktype
Saltak
Vinduer
3
Dører
0
Synlige etasjer
1
3
Materiale
Tre
Taktype
Saltak
Vinduer
6
Dører
2
Synlige etasjer
2
4
Materiale
Tre
Taktype
Saltak
Vinduer
3
Dører
0
Synlige etasjer
2

Hendelser

22.04.2026 Vedtak: Løyve til plassering av avløpsanlegg og utsleppsløyve for fritidsbustad på gbnr. 60/1
22.04.2026 Gbnr. 60/1 - søknad om utsleppsløyve
22.04.2026 Gbnr. 60/1 - nabovarsel for utsleppssøknad
09.04.2026 Nabosamtykke m.m
08.04.2026 Søknad om dispensasjon frå plan for frådeling frå gbnr. 60/1, grensejustering frå gbnr. 60/4 og oppføring av fritidsbustad på den frådelte parsellen
07.04.2026 Gbnr. 60/1 - søknad om endring av gjeve løyve
26.02.2026 Klage på vedtak - oppheving av vedtak om dispensasjon frå omsynssone i plan for frådeling av hyttetomt frå gbnr. 60/1 på Bøasetra
25.02.2026 Klage på vedtak - oppheving av vedtak om dispensasjon frå omsynssone i plan for frådeling av hyttetomt frå gbnr. 60/1 på Bøasetra
11.02.2026 Klage på vedtak - oppheving av vedtak om dispensasjon frå omsynssone i plan for frådeling av hyttetomt frå gbnr. 60/1 på Bøasetra
02.12.2025 Klage på vedtak - oppheving av vedtak om dispensasjon frå omsynssone i plan for frådeling av hyttetomt frå gbnr. 60/1 på Bøasetra
12.11.2025 Klage på vedtak - oppheving av vedtak om dispensasjon frå omsynssone i plan for frådeling av hyttetomt frå gbnr. 60/1 på Bøasetra
22.08.2025 Brev frå tiltakshavar
22.08.2025 Vedr. fråsegn frå statsforvalter, hytte Bøasetra
12.08.2025 Klage på vedtak - Oppheving av vedtak om dispensasjon frå omsynssone i plan for frådeling av hyttetomt frå gbnr. 60/1 på Bøasetra
11.08.2025 E-post frå tiltakshavar - vedr. gbnr. 60/199
11.08.2025 E-post frå tiltakshavar - gbnr. 60/199
11.07.2025 Vedkomande fråsegn til dispensasjon frå omsynssone for oppføring av hytte - gbnr. 60/199
04.07.2025 Fråsegn - dispensasjon - gbnr. 60/199 - oppføring av hytte
16.06.2025 Vedkomande søknad om dispensasjon og løyve til oppføring av hytte - gbnr. 60/199
12.06.2025 Gbnr. 60/1 - supplering av søknad
10.06.2025 Gbnr. 60/1 - supplering av søknad
28.05.2025 Vedkomande søknad om oppføring av hytte - gbnr. 60/199
05.05.2025 Gbnr. 60/1 - søknad om løyve til tiltak