NewConstruction Igangsettingstillatelse Fritidsbolig

Gjenoppføring av fritidsbolig på Siktesøya 38, Porsgrunn

📍 Siktesøya 38 , 3950 BREVIK

Nøkkelinfo

Sakstype
Nybygg
Bygningstype
Fritidsbolig
Bruksareal
91 m²
Boenheter
1
Kommune
Porsgrunn
Fylke
Telemark
Gnr / Bnr
31 / 43
Saksnummer
2025/6631
Fase
Igangsettingstillatelse

Om byggesaken

Ny gjenoppført fritidsbolig på Siktesøya 38 med et bebygd areal (BYA) på ca. 100 m², tilpasset eksisterende terreng og byggegrop. Bygget har to etasjer med totalt ca. 91,4 m² BRA, inkludert kjeller med flere rom som soverom, bad, bod og vaskerom. Fritidsboligen har saltak og tre som fasademateriale, med flere vinduer og dører fordelt på begge etasjer. Det er tilhørende utomhusanlegg med terrasser som ikke overstiger 0,5 m over terreng. Bygget er tilpasset tidligere godkjente mål og mønehøyde, og det er gitt dispensasjon for plassering i LNFR-område og 100-metersbeltet langs sjø. Eksisterende bod rives som del av tiltaket. Prosjektet inkluderer grunnarbeid, betongarbeid for grunnmur, oppmåling, tekniske installasjoner og våtrom.

Produkter og materialer

Tak Saltak

🧱 Tretak med isolasjon

Antall: 1

Saltak med mønehøyde ca. 20,13 meter, tilpasset eksisterende terreng

Saltak med isolasjon og bærekonstruksjon i tre

Fasade Liggende trepanel

🧱 Tre

Liggende trepanel, ubehandlet som skal gråne naturlig over tid

Fasade med liggende trepanel for naturlig utseende

Vinduer Fasadevindu

🧱 Tre med 3-lags glass

Antall: 14

Vinduer i begge etasjer, inkludert stue, kjøkken, soverom og bad

Fasadevinduer i tre med isolerglass for lys og utsyn

Trapper Innvendig trapp og utvendig trapp i stein

🧱 Tre innvendig, stein utvendig

Antall: 1

Innvendig trapp til hems, utvendig trapp i stein til kjeller

Trapper til hems og kjeller, tilpasset terreng

Mur Pipe

🧱 Murstein eller tilsvarende

Antall: 1

Pipe integrert i bygningsmassen

Pipe for ildsted i fritidsboligen

VVS Sanitærinstallasjoner og våtrom

Sanitærinstallasjoner for bad og vaskerom

VVS-installasjoner for fritidsboligens våtrom

Grunnarbeid Oppmåling, utstikking, terrengarbeid

Oppmåling, utstikking, grunn- og terrengarbeid inkludert overvannshåndtering

Grunnarbeid for tilpasning til eksisterende terreng og byggegrop

Terrasse Terrasse med pergola og takoverbygg

🧱 Tre og glass

Terrasse med pergola uten tett tak, takoverbygg med skråstag

Terrasse og uteoppholdsareal tilpasset terreng, maks 0,5 m over terreng

Isolasjon Vegger, tak og gulv

🧱 Isolasjon i henhold til TEK17

Isolasjon i yttervegger, tak og gulv for energikrav

Isolasjon for å oppfylle energikrav i TEK17

Dører Ytterdører og terrassedører

🧱 Tre eller glassdører

Antall: 5

Dører til inngang, terrasse og bod

Ytterdører og terrassedører tilpasset fritidsbolig

Gulv Innvendige gulv

Gulv i stue, kjøkken, soverom og bad

Innvendige gulv i ulike rom

Betong Grunnmur og fundament

🧱 Betong

Betongarbeid for grunnmur og fundamenter

Grunnmur og fundament i betong for fritidsbolig

Elektro Elektriske installasjoner

Elektriske installasjoner for belysning og strøm

Elektroarbeid for fritidsbolig

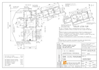
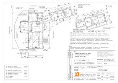
Plantegning

Enebolig 91.4 m²

Etasje 1 61.0 m²

Rom Areal Vinduer Dører
STUE 101 26.6 m² 1 1
KJØKKEN 102 13.5 m² 1 1
GANG 103 2.6 m² 0 1
SOV 104 8.1 m² 1 1
BAD 105 3.0 m² 0 1
BOD 106 4.4 m² 0 1

Etasje 0 30.4 m²

Rom Areal Vinduer Dører
SOV 001 6.1 m² 1 1
BAD 002 6.1 m² 1 1
BOD 003 4.4 m² 0 1
SOV 004 6.3 m² 1 1
VASK 005 6.3 m² 0 1
BOD 006 6.0 m² 0 1
TEKN. BOD 007 4.0 m² 0 1
BOD 008 2.8 m² 0 1

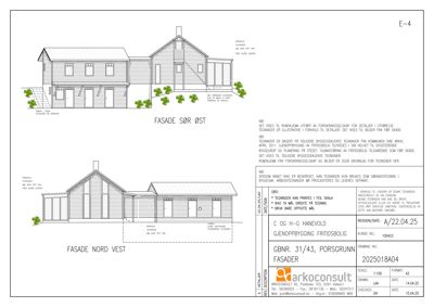
Fasader

Enebolig

Sørøst
Materiale
Tre
Taktype
Saltak
Vinduer
4
Dører
3
Synlige etasjer
2
Nordvest
Materiale
Tre
Taktype
Saltak
Vinduer
3
Dører
2
Synlige etasjer
2

Hendelser

22.04.2026 Supplering av søknad - Gbnr. 31/43, Siktesøya 38
02.12.2025 Igangsettingstillatelse for del av tiltak - Gbnr. 31/43, Siktesøya 38 - Gjenoppføring av brannskadet fritidsbolig
28.11.2025 Gbnr. 31/43, Siktesøya 38 - søknad om igangsettingstillatelse
11.11.2025 Rammetillatelse - Gbnr. 31/43, Siktesøya 38 - Gjenoppføring av brannskadet fritidsbolig samt rive bod
27.10.2025 Supplering av søknad - Gbnr. 31/43, Siktesøya 38
20.10.2025 Dispensasjon innvilget - Gbnr. 31/43, Siktesøya 38 - Gjenoppføring av brannskadet fritidsbolig
16.10.2025 Ingen vesentlige merknader - dispensasjon - Gbnr. 31/43, Siktesøya 38
19.09.2025 Til uttalelse - Gbnr. 31/43, Siktesøya 38 - Gjenoppføring av brannskadet fritidsbolig
15.09.2025 Supplering av søknad - Gbnr. 31/43, Siktesøya 38
14.07.2025 Svarbrev - Gjenoppbygging av brannskadet fritidsbolig med tilhørende utomhusanlegg - Gbnr. 31/43 Siktesøya 38
25.06.2025 Supplering av søknad - Gbnr. 31/43, Siktesøya 38 - Gjenoppføring av brannskadet fritidsbolig
16.06.2025 Svarbrev - Gbnr. 31/43 Siktesøya 38 - Gjennoppbygging av brannskadet fritidsbolig med tilhørende utomhusanlegg
28.05.2025 Søknad om rammetillatelse - Gbnr. 31/43, Siktesøya 38
28.05.2025 Anmodning om prioritering - Gbnr. 31/43, Siktesøya 38 - Gjenoppføring av brannskadet fritidsbolig