NewConstruction UnderBehandling Fritidsbolig

Ny fritidsbolig og naust på Myken, Rødøy kommune

📍 Skålnesveien 44 , 8193 RØDØY

Nøkkelinfo

Sakstype
Nybygg
Bygningstype
Fritidsbolig
Bruksareal
93 m²
Boenheter
1
Kommune
Rødøy
Fylke
Nordland - Nordlánnda
Gnr / Bnr
74 / 71
Saksnummer
2025/404
Fase
Under behandling

Om byggesaken

Ny fritidsbolig og naust oppføres på Myken i Rødøy kommune, på samme plassering som eksisterende naust som rives. Bygget er i to etasjer med saltak og rød trepanelkledning, med samlet BRA på ca. 93 m². Første etasje inneholder naust og teknisk rom, mens andre etasje har stue/kjøkken, bad, to soverom og gang. Byggehøyden er 7,07 meter fra gjennomsnittlig terreng, noe som overskrider maksimal tillatt høyde med ca. 0,5 meter, men er tilpasset krav til stormflo og sikkerhet. Bygget viderefører uttrykket og estetikken til eksisterende bebyggelse og kulturmiljø på Myken. Det er ikke planlagt innlagt vann i første omgang, og tilkobling til vann og avløp vil søkes ved igangsetting. Prosjektet har fått dispensasjon for plassering i strandsonen og byggehøyde.

Produkter og materialer

Maling Utvendig og innvendig maling

🧱 Maling for treverk

Maling av utvendig kledning og innvendige overflater

Overflatebehandling for beskyttelse og estetikk

Trapper Innvendig trapp i L-form

🧱 Tre

Antall: 1

Innvendig trapp mellom etasjer

Trapp for intern adkomst mellom naust og boligdel i 2 etasjer

Fasade Trepanelkledning

🧱 Tre, malt rød

Rød trepanelkledning som harmonerer med eksisterende sjøhusmiljø

Utvendig kledning i tre, malt i rød farge for å videreføre områdets estetikk

Bad Baderomsinnredning og fliser

Antall: 1

Bad med standard baderomsinnredning og flislagte gulv og vegger

Bad med nødvendige sanitærinstallasjoner og overflater

Pipe Vedovn eller peispipe

🧱 Mur eller stål

Antall: 1

Pipe tilknyttet oppvarming i fritidsboligen

Pipe for vedovn eller peis i boligetasjen

Elektro Elektrisk anlegg

Elektrisk installasjon iht. forskrifter for fritidsbolig

Elektrisk anlegg for belysning og strøm i hele bygget

Gulv Innvendige gulvflater

🧱 Tre eller laminat

Gulv i stue/kjøkken, soverom og gang, tilpasset fritidsboligstandard

Innvendige gulvflater i boligetasjen

Grunnarbeid Fundamentering og grunnmur

🧱 Betong og tre

Fundamentering tilpasset strandsonen og eksisterende terreng

Grunnarbeid og fundamentering for nytt sjøhus og naust

VVS Vann og avløp tilkobling

Tilkobling til vann og avløp planlegges ved igangsetting, ikke innlagt vann foreløpig

VVS-installasjoner for vann og avløp, søkes ved igangsettingstillatelse

Vinduer Fasadevindu i tre

🧱 Tre, 3-lags glass

Antall: 14

Vinduer tilpasset tradisjonell sjøhusstil, justert for å harmonere med eksisterende bebyggelse

Fasadevinduer i tre med 3-lags energiglass, tilpasset sjøhusets arkitektur

Dører Ytterdører i tre

🧱 Tre

Antall: 7

Ytterdører i tradisjonell stil til naust og boligdel

Ytterdører i tre til naust, teknisk rom og boligdel

Tømrer Bygging av bærende konstruksjoner

🧱 Tre

Tømrerarbeid for oppføring av to-etasjes sjøhus med naust i første etasje

Tømrerarbeid for konstruksjon, vegger, tak og innvendige skillevegger

Tak Saltak med trepanel

🧱 Tre, takstein eller tilsvarende

Antall: 1

Saltak med rød trepanelkledning, tilpasset eksisterende byggestil

Saltak med tradisjonell kledning og farge, tilpasset kulturmiljø

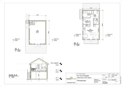
Plantegning

Enebolig 93.1 m²

Etasje 1 39.7 m²

Rom Areal Vinduer Dører
Naust 100 38.0 m² 2 1
Teknisk rom 110 1.7 m² 0 1

Etasje 2 53.4 m²

Rom Areal Vinduer Dører
Stue/Kjøkken 103 25.8 m² 3 1
Bad 106 3.7 m² 0 2
Soverom 107 6.7 m² 1 1
Soverom2 108 4.9 m² 0 1
Gang 109 8.0 m² 0 2

Fasader

Enebolig

Øst
Materiale
Tre
Taktype
Saltak
Høyde
5.2 m
Mønehøyde
7.1 m
Vinduer
4
Dører
1
Synlige etasjer
2
Sør
Materiale
Tre
Taktype
Saltak
Høyde
5.2 m
Mønehøyde
7.1 m
Vinduer
1
Dører
1
Synlige etasjer
2
Nord
Materiale
Tre
Taktype
Saltak
Høyde
5.2 m
Mønehøyde
7.1 m
Vinduer
4
Dører
1
Balkonger
1
Synlige etasjer
2

Naust

Ukjent
Materiale
Tre
Taktype
Saltak
Høyde
10.2 m
Mønehøyde
10.2 m
Vinduer
5
Dører
1
Balkonger
1
Synlige etasjer
2

Eks. Naust

Ukjent
Materiale
Tre
Taktype
Saltak
Høyde
3.1 m
Mønehøyde
9.8 m
Vinduer
6
Dører
1
Synlige etasjer
2

Hendelser

10.03.2026 Supplering - Naust - Eiendom 71/74, Myken
10.02.2026 Gnr. 71, bnr. 74, Myken - Orientering om vedtak i Teknisk utvalg - Søknaden må suppleres med ytterligere dokumentasjon
28.01.2026 Søknad om rammetillatelse og dispensasjon - Sjøhus på gnr. 71, bnr. 74, Myken
12.12.2025 Supplering av søknad gnr. 71 bnr. 74