NewConstruction Ferdigattest Fritidsbolig

Ny fritidsbolig med riving på Skjomenveien 20, Forså

📍 Skjomenveien - Forså 20 , 8523 SKJOMEN

Nøkkelinfo

Sakstype
Nybygg
Bygningstype
Fritidsbolig
Bruksareal
79 m²
Boenheter
1
Kommune
Narvik
Fylke
Nordland - Nordlánnda
Gnr / Bnr
59 / 23
Saksnummer
24/1831
Fase
Ferdigattest

Om byggesaken

Ny fritidsbolig på 78,5 m² BRA oppføres på samme tomt og plassering som eksisterende fritidsbolig som rives. Bygget har saltak og trekledning, fordelt på en etasje med rom som kjøkken/stue, to soverom, tre bad, badstue, hall og gang. Det etableres nytt avløpsanlegg med slamavskiller med utslipp til sjø, og tiltaket er plassert innenfor strandsonen med dispensasjon fra byggeforbud. Bygningen oppfyller dagens tekniske krav, særlig energikrav, og vil være mer energieffektiv enn den gamle. Riving og oppføring utføres i ett trinn, med selvbyggeransvar for tiltakshaver. Det er én trapp i bygget, og fasadene er i tre med saltak og pipe.

Produkter og materialer

Avfallshåndtering Sortering og levering av rivingsavfall

Avfallsplan med sortering av trevirke, metall, plast, farlig avfall etc. Levering til godkjent mottak

Avfallshåndtering ved riving av eksisterende fritidsbolig

Grunnarbeid Tomtearbeid og fundamentering

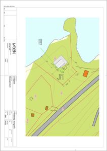
Tomteareal 277,5 m², byggegrunn vurdert iht. TEK17, plassering i strandsonen med dispensasjon

Grunnarbeid for ny fritidsbolig og slamavskiller, inkludert fundamentering

Trapper Innvendig trapp

🧱 Tre

Antall: 1

En trapp i bygget

Innvendig trapp i fritidsboligen

VVS Avløpsanlegg med slamavskiller

Antall: 1

Slamavskiller 4 m³ med utslipp til sjø 2 meter under laveste lavvann, dimensjonert for 5 PE

Nytt sanitært avløpsanlegg med slamavskiller og utslippstillatelse

Isolasjon Isolasjon i vegger og tak

Isolasjon i vegger og tak for å oppfylle dagens energikrav

Isolasjon for energieffektiv fritidsbolig

Vinduer Fasadevindu i tre

🧱 Tre

Antall: 7

3 vinduer i kjøkken/stue, 1 vindu i hvert av to soverom, totalt 7 vinduer

Vinduer til ny fritidsbolig i tre

Bad Bad og badstue

Antall: 3

3 bad inkludert badstue, med nødvendige sanitærinstallasjoner

Bad og badstue i fritidsboligen

Dører Ytterdører og innerdører

🧱 Tre

Antall: 7

2 ytterdører i kjøkken/stue, 1 dør i hvert soverom, 1 dør til bad, badstue og gang

Dører til ny fritidsbolig

Gulv Innvendige gulv

🧱 Tregulv

Tregulv i oppholdsrom, panel i vegger

Innvendige gulv og overflater i fritidsboligen

Tak Saltak med taktekking

🧱 Takshingel

Tak med saltak, takshingel på eksisterende hytte, antatt tilsvarende for ny

Taktekking for ny fritidsbolig

Elektro Elektrisk anlegg

Nytt elektrisk anlegg i fritidsboligen, oppgradert i henhold til TEK17

Elektrisk installasjon i ny fritidsbolig

Tømrer Bygging av fritidsbolig i tre

🧱 Tre

Trekledning, saltak, pipe

Oppføring av ny fritidsbolig i tre med saltak og pipe

Mur Grunnmur

🧱 Betong

Grunnmur for ny fritidsbolig

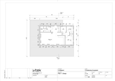
Plantegning

Fritidsbolig 120.0 m²

Etasje 1 120.0 m²

Rom Areal Vinduer Dører
Kjøkken / stue 101 38.0 m² 3 2
Sov 102 10.2 m² 1 1
Sov 103 5.8 m² 1 1
Bad 104 4.2 m² 0 1
Badstue 105 2.5 m² 0 1
Bad 106 5.1 m² 0 1
Hall 107 7.6 m² 0 0
Gang 108 5.1 m² 0 0

Fasader

Fritidsbolig

Nord
Materiale
Tre
Taktype
Saltak
Vinduer
2
Dører
1
Balkonger
1
Synlige etasjer
2
Vest
Materiale
Tre
Taktype
Saltak
Vinduer
2
Dører
1
Balkonger
1
Synlige etasjer
2
Sør
Materiale
Tre
Taktype
Saltak
Vinduer
2
Dører
1
Balkonger
1
Synlige etasjer
1
Øst
Materiale
Tre
Taktype
Saltak
Vinduer
2
Dører
0
Balkonger
1
Synlige etasjer
2

Hendelser

21.04.2026 Vedtak - ferdigattest - riving av eksisterende fritidsbolig og oppføring av ny fritidsbolig - Gbnr. 59/23 - Skjomenveien Forså 20
17.04.2026 Tilbakemelding om mangler gbnr. 59/23 - Skjomenveien Forså 20 - Riving av eksisterende fritidsbolig og oppføring av ny fritidsbolig
17.04.2026 Oppdatert avfallsplan gbnr. 59/23
17.04.2026 Kvittering HRS
15.04.2026 Søknad om ferdigattest gbnr.59/23, Skjomenveien - Forså 20
25.06.2024 Ettersending av dokumentasjon gbnr. 59/23 - Skjomenveien Forså 20
20.06.2024 Svar på henvendelse om krav til ansvarlig foretak for riving av fritidsbolig
20.06.2024 Vedtak - tillatelse til tiltak i ett trinn - Riving av eksisterende fritidsbolig og oppføring av ny fritidsbolig - Gbnr. 59/23 - Skjomenveien Forså 20
20.06.2024 Spørsmål om krav til ansvarlig foretak for riving av fritidsbolig
11.06.2024 Utslippstillatelse for sanitært avløpsvann fra fritidsbolig til slamavskiller med utslipp til sjø på gbnr. 59/23, Skjomenveien – Forså 20
05.06.2024 Vedtak - Dispensasjon fra formål LNFR og pbl §1-8 for oppføring av fritidsbolig med avløpsanlegg- Gbnr. 59/23 - Skjomenveien Forså 20
03.05.2024 Oversender søknad til uttalelse -gbnr. 59/23 - Skjomenveien Forså 20 - Riving av eksisterende fritidsbolig og oppføring av ny fritidsbolig
02.05.2024 Kulturminnefaglig uttalelse - Søknad om dispensasjon for riving av eksisterende fritidsbolig og oppføring av ny fritidsbolig gbnr. 59/23
24.04.2024 Søknad om tillatelse til riving av eksisterende og oppføring av ny fritidsbolig, gbnr. 59/23, Skjomenveien Forså 20
24.04.2024 Søknad om dispensasjon - riving av eksisterende og oppføring av ny fritidsbolig, gbnr. 59/23, Skjomenveien Forså 20