NewConstruction Soeknad Fritidsbolig

Ny fritidsbolig på Skoretjønnheia 20, Vatnestrøm

📍 Skoretjønnheia 20 , 4730 VATNESTRØM

Nøkkelinfo

Sakstype
Nybygg
Bygningstype
Fritidsbolig
Bruksareal
149 m²
Boenheter
1
Kommune
Birkenes
Fylke
Agder
Gnr / Bnr
157 / 77
Saksnummer
2026/891
Fase
Søknad

Om byggesaken

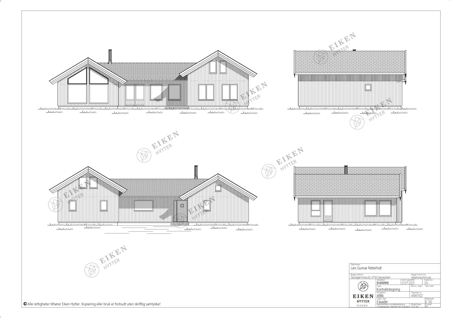
Ny fritidsbolig med totalt bruksareal på ca. 149,3 m² fordelt på to etasjer bygges på eiendommen Skoretjønnheia 20 i Vatnestrøm, Iveland kommune. Bygget har saltak og trekledning, med en hovedetasje på ca. 128,7 m² og en loftsetasje på ca. 20,6 m². Loftsetasjen inneholder to soverom på 7,5 m² hver, en loftstue på 21,7 m² og en trapp på 3,4 m². Fasader er i tre med flere vinduer og dører, og det er pipe på nord- og vestfasade. Prosjektet inkluderer grunnarbeid, betongarbeid og tømrerarbeid, samt tekniske installasjoner som VVS og elektro. Bygget er plassert med minimum 3 meters avstand til nabogrense i henhold til avstandserklæring.

Produkter og materialer

Trapper Innvendig trapp

🧱 Tre

Antall: 1

Innvendig trapp på 3,4 m² til loftsetasje

Trapp mellom etasjer

Tak Saltak

🧱 Takstein eller lignende

Saltak på hele bygget

Taktekking for saltak

Vinduer Fasadevindu

🧱 Tre eller aluminium ramme

Antall: 14

Vinduer fordelt på fasader: Nord 5, Sør 2, Vest 4, Øst 3

Fasadevinduer til fritidsbolig

Elektro Elektriske installasjoner

Elektroinstallasjoner iht. gjeldende forskrifter

Elektriske installasjoner i fritidsbolig

Grunnarbeid Tomtearbeid

Grunnarbeid for fundamentering og opparbeidelse av tomt

Grunnarbeid for ny fritidsbolig

Tømrer Bærekonstruksjon og innvendige arbeider

🧱 Tre

Tømrerarbeid for reisverk, innvendige vegger og tak

Tømrerarbeid for bygging av fritidsbolig

Betong Fundament og støpearbeid

🧱 Betong

Betongarbeid for fundament og bærende konstruksjoner

Betongarbeid til fundament og bærende konstruksjoner

VVS Rørinstallasjon

VVS-installasjoner utført av Bjørnarå Rørleggermester AS

VVS-installasjoner for fritidsbolig

Dører Ytterdør

🧱 Tre eller glass

Antall: 3

Dører på fasader Nord 1, Vest 1, Øst 1

Ytterdører til fritidsbolig

Fasade Trekledning

🧱 Tre

Fasader i tre med saltak

Trekledning til fasader på fritidsbolig

Pipe Murpipe

🧱 Mur

Antall: 2

Pipe på nord- og vestfasade

Pipe for ildsted

Plantegning

Hytte 40.6 m²

Etasje 2 40.6 m²

Rom Areal Vinduer Dører
Soverom 5 Sov 5 7.5 m² 1 1
Soverom 4 Sov 4 7.5 m² 1 1
Loftstue Loftstue 21.7 m² 0 1
Trappe Trapp 3.4 m² 0 0

Fasader

Enebolig

Nord
Materiale
Tre
Taktype
Saltak
Vinduer
5
Dører
1
Synlige etasjer
1
Sør
Materiale
Tre
Taktype
Saltak
Vinduer
2
Dører
0
Synlige etasjer
1
Vest
Materiale
Tre
Taktype
Saltak
Vinduer
4
Dører
1
Synlige etasjer
1
Øst
Materiale
Tre
Taktype
Saltak
Vinduer
3
Dører
1
Synlige etasjer
1

Hendelser

15.04.2026 Søknad om tillatelse til tiltak - Ett-trinns søknadsbehandling