NewConstruction UnderBehandling Fritidsbolig

Ny frittliggende fritidsbolig i Tennisveien 5, Drøbak

📍 Tennisveien 5 , 1449 DRØBAK

Nøkkelinfo

Sakstype
Nybygg
Bygningstype
Fritidsbolig
Bruksareal
35 m²
Kommune
Frogn
Fylke
Akershus
Gnr / Bnr
2 / 87
Saksnummer
26/10273
Fase
Under behandling

Om byggesaken

Ny frittliggende fritidsbolig på 35 m² i én etasje med saltak oppføres i Tennisveien 5, Drøbak. Bygningen inneholder oppholdsrom, soverom og bad, og har gesimshøyde på 2,512 m og mønehøyde på 4,0 m. Fasader utføres i stående mørkbeiset trekledning som tilpasses eksisterende bebyggelse. Bygget plasseres ca. 7,7 meter fra eksisterende fritidsbolig på eiendommen, med begrenset visuell eksponering og uten økt landskapspåvirkning. Bygningen tilknyttes eksisterende vann- og avløpsanlegg, og eksisterende adkomst og parkeringsløsning videreføres. Prosjektet har et samlet utnyttelsesgrad på ca. 10,7 % BYA på tomt på 1 644 m², innenfor tillatt 12 % BYA.

Produkter og materialer

Grunnarbeid Fundamentering og grunnarbeid

Bygget plasseres på tomt med synlig fjell, vurdert for grunnforhold og risiko for skred

Grunnarbeid og fundamentering tilpasset tomtens naturforhold

Dører Ytterdører

Antall: 3

1 dør i oppholdsrom, 2 dører på sørfasade

Ytterdører til bygningen

Fasade Stående trekledning

🧱 Mørkbeiset tre

Fasader i stående mørkbeiset trekledning tilpasset eksisterende bebyggelse

Utvendig kledning av bygningen

Vinduer Fasadevindu

🧱 Tre eller tre/aluminium (ikke spesifisert)

Antall: 6

2 vinduer i oppholdsrom, 4 vinduer på sørfasade

Vinduer i oppholdsrom og øvrige rom

Tømrer Tømrerarbeid

🧱 Trekonstruksjoner

Tømrerarbeid og montering av trekonstruksjoner utføres av Saga Byggservice AS

Tømrerarbeid for oppføring av bygningen

VVS Vann- og avløpsinstallasjon

Tilknytning til eksisterende vann- og avløpsanlegg på eiendommen

Vann- og avløpsinstallasjoner for bygningen

Tak Saltak

Saltak med gesimshøyde 2,512 m og mønehøyde 4,0 m

Taktekking og konstruksjon for fritidsboligen

Gulv Innvendig gulv

Innvendige gulv i oppholdsrom, soverom og bad

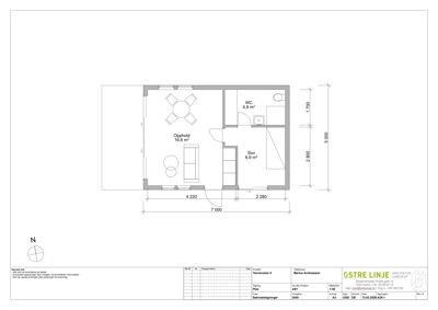
Plantegning

Enebolig 38.4 m²

Etasje 1 38.4 m²

Rom Areal Vinduer Dører
Opphold 101 16.6 m² 2 1
Sov 102 6.9 m² 0 1
WC 103 4.9 m² 0 1

Fasader

Enebolig

Nord
Materiale
Tre
Taktype
Saltak
Vinduer
2
Dører
1
Synlige etasjer
1
Sør
Materiale
Tre
Taktype
Saltak
Vinduer
4
Dører
2
Synlige etasjer
1

Garasje

Øst
Materiale
Tre
Taktype
Saltak
Vinduer
0
Dører
0
Synlige etasjer
1
Vest
Materiale
Tre
Taktype
Saltak
Vinduer
0
Dører
0
Synlige etasjer
1

Hendelser

09.04.2026 26/10273-3 Mangelbrev - 2/87/0/0 - Tennisveien 5 - Nytt anlegg - Nytt bygg - Fritidsbolig
16.03.2026 26/10273-1 Søknad om rammetillatelse - 2/87/0/0 - Tennisveien 5 - Nytt anlegg - Nytt bygg - Fritidsbolig