NewConstruction Rammetillatelse Fritidsbolig

Ny fritidsbolig på Tøftvangen 33, Sunndal

📍 Tøftvangen 33 , 6613 GJØRA

Nøkkelinfo

Sakstype
Nybygg
Bygningstype
Fritidsbolig
Bruksareal
78 m²
Boenheter
1
Kommune
Sunndal
Fylke
Møre og Romsdal
Gnr / Bnr
17 / 94
Saksnummer
26/00965
Fase
Rammetillatelse

Om byggesaken

Ny fritidsbolig på 78,2 m² BYA oppføres i én etasje på Tøftvangen 33 i Sunndal. Bygget består av to soverom, gang, bad og kombinert stue/kjøkken. Hytta bygges av en gjenbrukt tømmerkasse som isoleres og kles utvendig med stående beiset trekledning i brunfarge. Taket utføres som saltak med torvtak. Tomten er relativt flat med minimalt terrengarbeid, og hytta plasseres gunstig i det tørreste hjørnet av tomta, 4 meter fra eiendomsgrensen. Det planlegges innlagt vann og privat gråvannsanlegg med infiltrasjon/rensing. Bygget er tilpasset gjeldende reguleringsplan og estetiske krav, og det er godkjent av kommunen med vilkår om ansvar og dokumentasjon.

Produkter og materialer

Bad Bad med sanitærutstyr

Antall: 1

Bad med dør, uten vindu

Bad med nødvendig sanitærutstyr

VVS Innlagt vann og gråvannsanlegg

Innlagt vann, privat gråvannsanlegg med infiltrasjon/rensing

Vannforsyning og avløpsløsning for fritidsboligen

Isolasjon Utvendig isolasjon av tømmerkasse

Isolering av gjenbrukt tømmerkasse

Isolasjon for å oppnå god varmeisolasjon i vegger

Grunnarbeid Terrengarbeid og fundamentering

Minimalt terrengarbeid, balanse mellom uttak og fylling

Grunnarbeid for fundamentering og tilpasning til terreng

Vinduer Fasadevindu

🧱 Tre eller tilsvarende

Antall: 7

3 vinduer i stue, 1 vindu i hvert soverom

Vinduer i stue og soverom, antall 7 totalt

Gulv Innvendige gulv

Innvendige gulv i stue, soverom og bad

Fasade Stående trekledning

🧱 Tre, beiset brun

Stående kledning, beiset brun

Utvendig kledning av tømmerkasse med stående beiset trekledning

Elektro Elektrisk installasjon

Elektrisk anlegg iht. TEK17

Elektrisk installasjon for belysning og strøm

Maling Beis til utvendig kledning

🧱 Beis

Brun beis til utvendig trekledning

Overflatebehandling av utvendig kledning

Dører Ytterdør og innerdører

🧱 Tre eller tilsvarende

Antall: 4

1 ytterdør, 3 innerdører (bad og soverom)

Dører til inngang og innvendige rom

Tak Saltak med torvtak

🧱 Torv

Saltak med torvtak

Taktekking med torv på saltak

Tømrer Tømmerkasse og lafting

🧱 Gjenbrukt tømmerkasse

Gjenbruk av tømmerkasse som byggemateriale

Bygging av hytte basert på gjenbrukt tømmerkasse

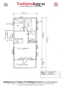
Plantegning

Enebolig 42.0 m²

Etasje 1 42.0 m²

Rom Areal Vinduer Dører
Stue 101 24.0 m² 3 1
Sov 102 10.0 m² 1 1
Sov 103 8.0 m² 1 1
Bad 104 0.0 m² 0 1

Fasader

Enebolig

Vest
Materiale
Tre
Taktype
Saltak
Vinduer
2
Dører
1
Synlige etasjer
2
Sør
Materiale
Tre
Taktype
Saltak
Høyde
2.3 m
Mønehøyde
4.8 m
Vinduer
4
Dører
1
Synlige etasjer
2
Nord
Materiale
Tre
Taktype
Saltak
Høyde
2.3 m
Mønehøyde
4.8 m
Vinduer
2
Dører
1
Synlige etasjer
1

Hendelser

16.04.2026 26/00965-3 17/94, Tøftvangen 33 - søknad om oppføring av fritidsbolig – vedtak
20.03.2026 26/00965-1 17/94, Tøftvangen 33 - søknad om tillatelse i ett trinn