NewConstruction UnderBehandling Fritidsbolig

Ny fritidsbolig med kjeller og hems i Velhusveien 6, Asker

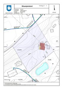
📍 Velhusveien 6 , 1397 NESØYA

Nøkkelinfo

Sakstype
Nybygg
Bygningstype
Fritidsbolig
Bruksareal
92 m²
Boenheter
1
Kommune
Asker
Fylke
Akershus
Gnr / Bnr
41 / 374
Saksnummer
24/974
Fase
Under behandling

Om byggesaken

Ny fritidsbolig på 65 m² BRA med tilhørende kjeller på 27 m² og hems på Velhusveien 6 i Asker. Bygget er tilpasset hellende terreng med saltak og trefasade, og har en gesimshøyde på opptil 4,5 meter på nedsiden. Planløsningen inkluderer stue, kjøkken, bad, soverom og hall i første etasje, samt bod i kjeller. Det er planlagt utvendig VA-tilknytning og trapp over VA-ledning. Bygget erstatter en tidligere fritidsbolig som skal rives, og er prosjektert med hensyn til naturverdier og terrengtilpasning. Det er nødvendig med dispensasjoner for gesimshøyde, antall bygninger på eiendommen og romhøyde på hemsen. Prosjektet har vært gjenstand for lang saksbehandling og midlertidig byggeforbud på grunn av manglende naturkartlegging og dispensasjonssøknader.

Produkter og materialer

Fasade Trepanel

🧱 Tre

Antall: 1

Trepanel på alle fasader

Trepanel som fasademateriale på fritidsboligen.

Maling Utvendig og innvendig maling

Maling av trepanel utvendig og innvendige overflater.

Isolasjon Isolasjon i vegger, tak og gulv

Isolasjon i vegger, tak og gulv for fritidsboligen.

Dører Ytterdører og terrassedører

🧱 Tre

Antall: 6

Ytterdører og terrassedører i tre til fritidsboligen, totalt 6 stk fordelt på fasader og innganger.

Gulv Innvendige gulv

🧱 Gulvbord

Innvendige gulv i gulvbord

Innvendige gulv i tre (gulvbord).

Vinduer Fasadevindu

🧱 Tre

Antall: 14

Fasadevinduer i tre til fritidsboligen, totalt 14 stk fordelt på stue, kjøkken, soverom og fasader.

VVS Sanitæranlegg og utvendig VA

Utvendig VA-ledninger tilkoblet kommunalt nett, innvendig sanitæranlegg

VVS-installasjoner med innvendig sanitæranlegg og utvendig VA-ledninger.

Betong Kjeller og grunnmur

🧱 Betong

Kjeller på 27 m² med betongkonstruksjon

Betongarbeid for kjeller under fritidsboligen.

Grunnarbeid Terrengarbeid og støttemurer

Terrenglinjer og støttemurer må tegnes inn og tilpasses terrenget

Grunnarbeid med terrengtilpasning og støttemurer iht. reguleringsplan.

Tak Saltak

🧱 Tre, taktekking ikke spesifisert

Antall: 1

Saltak med takvinkel ca. 32 grader

Saltak på fritidsboligen med takvinkel ca. 32 grader.

Bad Bad med våtromsstandard

Antall: 1

Bad på 6,43 m² med våtromsstandard

Bad med våtromsstandard i fritidsboligen.

Terrasse Terrasse på terreng

Antall: 1

Terrasse på terreng i tilknytning til fritidsboligen

Terrasse på terreng som del av uteareal.

Trapper Innvendig trapp

Antall: 1

Innvendig trapp mellom etasjer

Innvendig trapp i fritidsboligen.

Elektro Elektrisk anlegg

Elektrisk oppvarming, sikringstavle med jordfeilautomater montert i kjøkken

Elektrisk anlegg for oppvarming og strømforsyning.

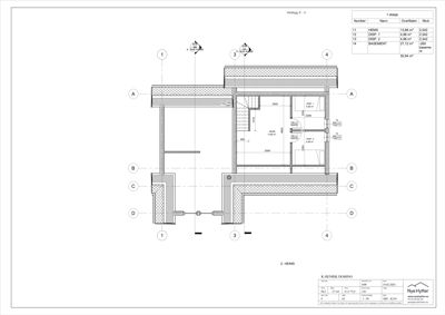
Plantegning

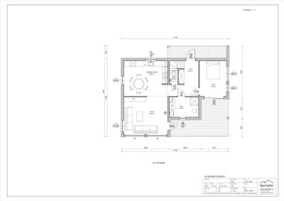
Enebolig 90.2 m²

Etasje 1 90.2 m²

Rom Areal Vinduer Dører
STUE 101 18.0 m² 2 1
KJØKKEN SPISE 102 16.9 m² 1 1
BAD 103 6.4 m² 0 1
SOV 1 104 10.4 m² 1 1
HALL 105 9.8 m² 0 1

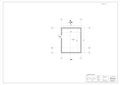
K-Henrik Domino 90.2 m²

Etasje 0 90.2 m²

Rom Areal Vinduer Dører
Bod BOD 27.1 m² 0 1

Kjeller 27.1 m²

Etasje 0 27.1 m²

Rom Areal Vinduer Dører
BASEMENT 27.1 m² 0 1

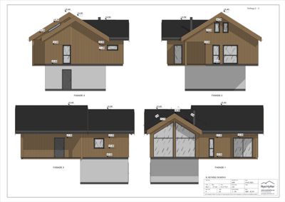
Fasader

Enebolig

Ukjent
Materiale
Tre
Taktype
Saltak
Høyde
4.3 m
Mønehøyde
5.4 m
Vinduer
2
Dører
1
Synlige etasjer
2
Øst
Materiale
Tre
Taktype
Saltak
Høyde
4.6 m
Mønehøyde
8.2 m
Vinduer
1
Dører
1
Synlige etasjer
2
Sør
Materiale
Tre
Taktype
Saltak
Høyde
6.0 m
Mønehøyde
8.0 m
Vinduer
4
Dører
1
Synlige etasjer
2
Nord
Materiale
Tre
Taktype
Saltak
Høyde
6.5 m
Mønehøyde
8.2 m
Vinduer
2
Dører
1
Synlige etasjer
2
Vest
Materiale
Tre
Taktype
Saltak
Høyde
3.8 m
Mønehøyde
8.2 m
Vinduer
4
Dører
1
Synlige etasjer
2

Hendelser

15.04.2026 41/374 Velhusveien 6 - Kvittering på mottatt klage
15.04.2026 41/374 Velhusveien 6 - Klage på vedtak om avvisning av klage
14.04.2026 41/374 Velhusveien 6 - Klage på vedtak om avvisning av klage
23.03.2026 41/374 Velhusveien 6 - Avvisning av klage
23.03.2026 41/374 Velhusveien 4 - Referat fra telefonsamtale
20.03.2026 41/374 Velhusveien 6 - Klage på midlertidig forbud mot tiltak
27.02.2026 41/374 Velhusveien 6 - Svar på henvendelse om videre saksbehandling
17.02.2026 41/374 Velhusveien 6 - Vedrørende søknad om oppføring av fritidsbolig
11.07.2025 41/374 Velhusveien 6 - Vedrørende midlertidig forbud mot tiltak og ufullstendig søknad - Nybygg fritidsbolig
30.06.2025 41/374 Velhusveien 6 - E-post korrespondanse om status i byggesaken
20.06.2025 41/374 Velhusveien 6 - Ber om status i saken
28.05.2025 41/374 Velhusveien 6 - Tilbakemelding på status
23.05.2025 41/374 Velhusveien 6 - Ber om status i saken
29.04.2025 41/374 Velhusveien 6 - Revidert dokumentasjon
15.04.2025 Velhusveien 6 - Ber om forlenget frist for tillbakemelding
07.04.2025 41/374 Velhusveien 6 - informasjon om videre behandling
03.04.2025 41/374 Velhusveien 6 - Kommentarer til saksbehandling og leserinnlegg i Budstikka
07.03.2025 41/374 Velhusveien 6 - Søknaden er fremdeles ufullstendig - nybygg fritidsbolig
26.11.2024 41/374 Velhusveien 6 - Supplerende opplysninger
11.10.2024 41/374 Velhusveien 6 - Ufullstendig søknad
08.09.2024 41/374 Velhusveien 6 - Informasjon om ny saksbehandler - nybygg fritidsbolig
30.08.2024 41/374 Velhusveien 6 - Purrer på status i saken
05.06.2024 41/374 Velhusveien 6 - Purrer på status i saken
19.04.2024 41/374 Velhusveien 6 - Ber om status
20.03.2024 41/374 Velhusveien 6 - Nabomerknad trekkes
15.03.2024 41/374 Velhusveien 6 - Søknad om nybygg fritidsbolig