NewConstruction Rammetillatelse Fritidsbolig

Ny fritidsbolig med infrastruktur på Vetle Grotnes 9, Kysnesstrand

📍 Vetle Grotnes 9 , 5626 KYSNESSTRAND

Nøkkelinfo

Sakstype
Nybygg
Bygningstype
Fritidsbolig
Bruksareal
111 m²
Boenheter
1
Kommune
Ullensvang
Fylke
Vestland
Gnr / Bnr
350 / 122
Saksnummer
2025/4797
Fase
Rammetillatelse

Om byggesaken

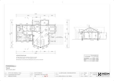
Ny fritidsbolig på 110,6 m² BRA oppføres i en etasje på eiendom Vetle Grotnes 9, Kysnesstrand. Bygget har saltak med 20 graders takvinkel og shingeltekking, og er oppført i tre på ringmur med betongplate i gulvet. Boligen inneholder stue, kjøkken, tre soverom, bad, wc, vindfang og bod. Fasaden er i tre med flere vinduer og dører, og det er pipe på bygget. Bygget er tilknyttet privat vannverk og felles privat avløpsanlegg med godkjent utslipp til sjø. Parkering skjer på felles parkeringsplass i hyttefeltet. Det er etablert tilfredsstillende infrastruktur for vann, avløp, elektrisitet og adkomst, samt godkjent løsning for slokkevann basert på tankbil. Bygget følger reguleringsplanens bestemmelser og TEK17.

Produkter og materialer

Betong Betongarbeider

🧱 Betong

Utførelse av betongarbeider og murerarbeid

Betongarbeider for ringmur og fundamentering

Ventilasjon Ventilasjonssystem

Ventilasjon iht. TEK17 krav

Dører Ytterdører og terrassedører

🧱 Tre

Antall: 7

Ytterdører og dører til bod og vindfang

Grunnarbeid Tomtearbeid og drenering

Minimalt terrenginngrep, drenering rundt bygget

Grunnarbeid for bygging på berggrunn med ringmur

Grunnarbeid Ringmur og betongplate

🧱 Betong

Ringmur av betong, betongplate i gulvet

Fundamentering på ringmur med betongplate

Elektro El-grøfter og tilkobling

El-grøfter med tilhørende ledninger

Elektrisk infrastruktur til fritidsboligen

Tømrer Tømrerarbeid

🧱 Tre

Utførelse av alt tømrerarbeid

Tømrerarbeid for bygging av fritidsboligen

Rekkverk Rekkverk på trapper og eventuelle terrasser

Rekkverk iht. forskriftskrav

Maling Utvendig og innvendig maling

Maling av treflater utvendig og innvendig

Pipe Røykpipe med ovn

Antall: 1

Pipe for vedovn

Vinduer Fasadevindu og skråvinduer

🧱 Tre/alu rammer

Antall: 12

Personsikkerhetsglass, gjennomgående sprosser, skråvinduer må plassmåles

Vinduer i fasade og skråvinduer i takvinkel

VVS Sanitærinstallasjoner og vann- og avløpsanlegg

Privat vannverk tilkoblet, felles privat avløpsanlegg med slamavskiller 16 m³ og utslipp til sjø på 40 meters dyp

Vann- og avløpsinstallasjoner tilknyttet privat anlegg

Fasade Tre fasade med saltak

🧱 Tre

Saltak med 20 graders takvinkel, shingeltekking

Trevegger med saltak og shingel som taktekking

Isolasjon Ytterveggsisolasjon

🧱 Mineralull

Yttervegg: 148 mm + 48 mm innlekting, 150+50 mm isolasjon

Isolasjon i yttervegger

Plantegning

Enebolig 85.9 m²

Etasje 1 85.9 m²

Rom Areal Vinduer Dører
Stue 101 27.7 m² 3 1
Kjøkken 102 13.6 m² 1 1
Gang 103 4.1 m² 0 2
Soverom 1 104 8.6 m² 1 1
Soverom 2 105 5.2 m² 1 1
Soverom 3 106 5.9 m² 1 1
Bad 107 6.1 m² 0 1
Wc 108 2.1 m² 0 1
Vindfang 109 4.5 m² 1 1
Bod 110 4.4 m² 1 1

Fasader

Enebolig

Nord
Materiale
Tre
Taktype
Saltak
Vinduer
4
Dører
1
Synlige etasjer
1
Sør
Materiale
Tre
Taktype
Saltak
Vinduer
3
Dører
1
Synlige etasjer
1
Vest
Materiale
Tre
Taktype
Saltak
Vinduer
3
Dører
1
Synlige etasjer
1
Øst
Materiale
Tre
Taktype
Saltak
Vinduer
2
Dører
1
Synlige etasjer
1

Hendelser

10.04.2026 Eposter vedrørende dokumentasjon på Vetle Grotnes 9
30.03.2026 Vedtak - tillatelse til oppføring av fritidsbolig - gnr. 350, bnr. 122 - Vetle Grotnes 9, 5626 Kysnesstrand
16.03.2026 Svar fra søker på ansvar for prosjektering av slokkevann
25.02.2026 Vedr. søknad i ett trinn for oppføring av fritidsbolig i Vetle Grotnes 7 og 9
12.02.2026 Sak til uttale - oppføring av fritisbolig - Vetle Grotnes 9
12.02.2026 Sak til uttale - spørsmål om byggegrenser - gnr. 350, bnr. 122 - Vetle Grotnes 9, 5626 Kysnesstrand - søknad om tillatelse i ett trinn - ny fritidsbolig
05.12.2025 Gnr. 350, bnr. 122 - Vetle Grotnes 9 - Gjeld svarfrist/oppstart av arbeid
11.11.2025 Gnr. 350, bnr. 122 - Vetle Grotnes 9, 5626 Kysnesstrand - Søknad om tillatelse i ett trinn - Nytt bygg - hytte