NewConstruction Igangsettingstillatelse Fritidsbolig

Ny dagsturhytte med brygge og sanitæranlegg ved Voldstadvika, Frysjøen

📍 Voldstadvika, Frysjøen

Nøkkelinfo

Sakstype
Nybygg
Bygningstype
Fritidsbolig
Bruksareal
6 m²
Kommune
Grue
Fylke
Innlandet
Gnr / Bnr
29 / 6
Saksnummer
20/745
Fase
Igangsettingstillatelse

Om byggesaken

Prosjektet omfatter oppføring av en universelt utformet dagsturhytte på ca. 5,9 m² med pulttak og glassfasader, plassert ved Voldstadvika ved Frysjøen i Grue kommune. Hytta er designet av RAM arkitektur og leveres som prefabrikkerte massivtreelementer montert på fundamenter tilpasset grunnforholdene. Tilhørende anlegg inkluderer universelt utformet badebrygge, fiskebrygge, sanitæranlegg med snurredo uten vann og strøm, samt tilrettelegging av turveier, ramper og parkeringsplass. Prosjektet har fått dispensasjon fra kommuneplanens byggeforbudssone langs vassdrag, og er finansiert gjennom spillemidler, gavemidler, kommunal egenandel og dugnadsinnsats. Leverandør av hytta er Brun Bygg AS, og DNT Finnskogen og Omegn skal drifte anlegget. Fundamentering kan utføres med stripefundament, stålpeler eller mikropæling, avhengig av tomtens forhold. Prosjektet er politisk vedtatt og igangsatt med forventet ferdigstillelse i 2023.

Produkter og materialer

Utendørs Badebrygge og fiskebrygge

🧱 Treverk

Antall: 1

Universelt utformet badebrygge og fiskebrygge ved vannkanten

Tilrettelegging for bading, fiske og båtliv ved dagsturhytta

Vinduer Glassfasader

🧱 Glass med stålramme

Antall: 1

Glassklar, slagfast, UV-bestandig polykarbonat 10 mm, med stålramme RAL 7021

Store glassfelt i fasade A, samt glassfelt B og A i andre fasader

Utendørs Turvei, klopper og ramper

🧱 Grus, treverk

Universelt utformet turvei med grusdekke, klopper og ramper tilpasset terreng og tilgjengelighet

Tilrettelegging av adkomst og turmuligheter rundt dagsturhytta

Sanitæranlegg Snurredo uten strøm

🧱 Trebygg med komposteringskammer og infiltrasjonspakke

Antall: 1

BIOrolla ROLLA Stasjonær Universell med 3m3 tank, alternativ enklere utedo med urinseparasjon

Universelt utformet sanitæranlegg uten vann og kloakk, med lukket infiltrasjon

Tak Pulttak i massivtre

🧱 Massivtre fjellfuru

Antall: 1

Massivtretak 160 mm tykkelse, isolert pipeløp i stål med peis

Tak med isolasjon og pipeløp for vedfyring

Bygningskomponenter Massivtreelementer

🧱 Fjellfuru massivtre

Prefabrikkerte massivtreelementer med limtredrager, stålbjelker og HUP-stålsøyler, behandlet med tømmerolje eller tjære

Hovedkonstruksjon for dagsturhytta med pulttak, glassfasader og isolerte vegger og tak

Elektro Solcelleanlegg

Antall: 1

Enkelt solcellesystem med panel, batteripakke, lyspunkt inne og ute, bevegelsessensor

Solcelleanlegg for belysning i dagsturhytta

Grunnarbeid Tomtetilrettelegging

🧱 Rydding, grusvei, planering

Rydding av tomt, opparbeidelse av grusvei, planering og tilrettelegging for fundamentering

Grunnarbeid for dagsturhytta og tilhørende anlegg

Fundament Mikropæling, stålpeler eller stripefundament

🧱 Betong, stål

Fundamentering tilpasses grunnforhold, med mikropæler boltet til I-bjelker, eller stripefundament i betong

Fundament for dagsturhytta med krav til presisjon for montering av elementer

VVS Komposteringstoalett og infiltrasjon

Antall: 1

Snurredo med komposteringskammer, uten vann og kloakk, lukket infiltrasjonspakke

Sanitæranlegg tilknyttet dagsturhytta

Rekkverk Glassrekkverk og stålrekkverk

🧱 Glass og lakkert stål

Glassrekkverk som opsjon på universelt utformet hytte, stålrekkverk i RAL 7021

Rekkverk for universell utforming og sikkerhet ved bratte skrenter

Dører Ytterdører i glass og massivtre

🧱 Glass og massivtre

Antall: 3

Glassdør med stålramme og håndtak i sort tre, samt massivtre dørpaneler med tømmerolje

Inngangsdører og dører til sanitæranlegg

Tømrer Innvendige og utvendige treflater

🧱 Malmfuru panel, limtre benker

Innvendig og utvendig panel behandlet med tømmerolje, limtre benker med stålbraketter

Innvendige og utvendige treflater i dagsturhytta

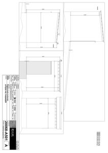
Plantegning

Dagstuehytta 5.9 m²

Etasje 1 5.9 m²

Rom Areal Vinduer Dører
Dagstuehytte 5.9 m² 0 1

Fasader

Dagsturhytte

A
Materiale
Glass
Vinduer
1
Dører
0
Synlige etasjer
1
B
Materiale
Glass
Vinduer
0
Dører
1
Synlige etasjer
1
C
Materiale
Glass
Vinduer
0
Dører
1
Synlige etasjer
1
Ukjent
Vinduer
0
Dører
0
Synlige etasjer
0

Dagsturhytta

Ukjent
Materiale
Tre
Taktype
Pulttak
Høyde
3.3 m
Mønehøyde
3.3 m
Vinduer
0
Dører
0
Synlige etasjer
1

Hendelser

08.04.2026 Varsel om inndragning av spillemidler - søknad 154534, anlegg 78514 - Turvei dagsturhytta - Finnevegen i Grue kommune
30.03.2026 Varsel om inndragning av spillemidler - søknad 148853, anlegg 78514 - dagsturhytte i Grue kommune
07.03.2025 Tilbud om dagsturhytte i 2025, Dagsturhytta Innlandet
20.10.2023 Delutbetaling til anleggene Dagsturhytta anl.nr. 78514 og Turvei Dagsturhytta – Finnevegen anl.nr. 79784 - Grue kommune
02.10.2023 Delutbetaling til anleggene Dagsturhytta (anleggsnr. 78514) og Turvei. Dagsturhytta –Finnevegen (anleggsnr. 79784)
21.09.2023 Endring av trasé. Turvei. Dagsturhytta - Finnevegen. Anlegg nr. 79784.
24.08.2023 Utbetaling av tilskudd fra Sparebankstiftelsen Hedmark til Dagsturhytta Vollstadvika i Grue kommune
15.06.2023 Søknad om gavemidler til DNT FINNSKOGEN OG OMEGN
08.06.2023 Avslag på søknad om spillemiddeltilskudd til anleggsnr. 78 584 for idrett og fysisk aktivitet Dagsturhytta, baderampe ved Voldstadvika, Frysjøen i Grue kommune
08.06.2023 Avslag på søknad om spillemiddeltilskudd til anleggsnr. 78 515 for idrett og fysisk aktivitet Dagsturhytta, toalett ved Voldstadvika, Frysjøen i Grue kommune
07.06.2023 Innvilget søknad om spillemiddeltilskudd til anleggsnr. 79 784 for idrett og fysisk aktivitet Turvei. Dagsturhytta - Finnevegen ved Voldstadvika, Frysjøen i Grue kommune
05.01.2023 Utsettelse på rapporteringsfrist. Forprosjektmidler Grue kommune
02.11.2022 Innlandet fylkeskommune. Tillatelse utvidet bruk avkjørsel - FV 201 Finnskogvegen - 29_ 6 GRUE KOMMUNE
13.10.2022 Kvittering på innsendt søknad om tilskudd til Turvei. Dagsturhytta - Finnevegen ved Voldstadvika, Frysjøen
27.09.2022 Kvittering på innsendt søknad om tilskudd til Dagsturhytta, badebrygge ved Voldstadvika, Frysjøen
27.09.2022 Kvittering på innsendt søknad om tilskudd til Dagsturhytta, toalett ved Voldstadvika, Frysjøen
01.06.2022 Dagsturhytta, brygge m.v. - 29/6
18.05.2022 Avslag på søknad om spillemiddeltilskudd til anleggsnr. 78515 for idrett og fysisk aktivitet Dagsturhytta, toalett ved Voldstadvika, Frysjøen i Grue kommune
18.05.2022 Innvilget søknad om spillemiddeltilskudd til anleggsnr. 78514 for idrett og fysisk aktivitet Dagsturhytta ved Voldstadvika, Frysjøen i Grue kommune
18.05.2022 Avslag på søknad om spillemiddeltilskudd til anleggsnr. 78584 for idrett og fysisk aktivitet Dagsturhytta, badebrygge ved Voldstadvika, Frysjøen i Grue kommune
13.05.2022 Dagsturhytta - bestilling
29.04.2022 Dagsturhytta - fundamentsplan
29.04.2022 Dagsturhytta Innlandet - Grue kommune
09.03.2022 Dagsturhytta- Bestilling
04.03.2022 Svar på søknad om disp. fra kommuneplan vedr. etablering av Dagsturhytta.
28.01.2022 Søknad om dispensasjon vedrørende etablering av Dagsturhytta.
15.12.2021 Dagsturhytta Innlandet
08.12.2021 Kulturvernfaglig uttalelse - Dagsturhytter 2022, kulturminneavklaring
24.11.2021 Div. avtalemaler Dagsturhytta
23.11.2021 Tilsagn om gavemidler fra Sparebankstiftelsen
19.11.2021 Svar- Søknad om midler til forprosjektering av Dagsturhytte
18.11.2021 Dagsturhytta, ramper/materiell og arbeid
18.11.2021 Gavemidler til universelt utformet badeplass
01.11.2021 Utfylt skjema. Tilbakemelding til Innlandet fylkeskommune, Dagsturhytta Innlandet.
22.10.2021 Leverandør for Dagsturhytta Innlandet
21.10.2021 Dagsturhytte, budsjett og finansiering
15.10.2021 Søknad om midler til forprosjektering av Dagsturhytte
01.10.2021 Innsendt søknad om spillemidler Dagsturhytte
01.10.2021 Innsendt søknad om spillemidler Dagsturhytte
01.10.2021 Innsendt søknad om spillemidler Dagsturhytte
05.07.2021 Informasjon og statusoppdatering, Dagsturhytta Innlandet
30.06.2021 Uttalelse Dagsturhytta og badeplass fra rådet for personer med funksjonsnedsettelse
12.05.2021 Fullmaktsskjema Dagsturhytta Innlandet
12.05.2021 Fullmaktsskjema Dagsturhytta Innlandet
07.05.2021 Fullmaktsskjema Dagsturhytta Innlandet
23.04.2021 Dagsturhytta
11.02.2021 Dagsturhytta Innlandet - ønsker hytte i Grue
11.02.2021 Dagsturhytta Innlandet - ønsker hytte i Grue
09.02.2021 DNT Finnskogen og Omegn som samarbeidspartner
15.01.2021 Dagsturhytta Innlandet - invitasjon
25.11.2020 Dagsturhytta Innlandet
25.11.2020 Dagsturhytte i Grue