VerticalExtension UnderBehandling Fritidsbolig

Enkelt påbygg på eksisterende hytte i Sørenmoveien 28

📍 Sørenmovegen 28 , 7960 SALSBRUKET

Nøkkelinfo

Sakstype
Påbygg
Bygningstype
Fritidsbolig
Bruksareal
120 m²
Boenheter
1
Kommune
Nærøysund
Fylke
Trøndelag - Trööndelage
Gnr / Bnr
44 / 32
Saksnummer
2026/1470
Fase
Under behandling

Om byggesaken

Enkelt påbygg på eksisterende fritidsbolig med et areal på ca. 120,5 m². Hytta har tre soverom, gang/entre og WC i én etasje med saltak. Påbygget utvider eksisterende bygningsmasse med et tilbygg som stikker ca. 9 meter ut fra eksisterende fasade. Bygget er plassert innenfor 100-metersbeltet mot sjø og krever dispensasjon. Det er én trapp i eksisterende bygg, og fasaden har flere vinduer og dører fordelt på alle sider. Bygget er planlagt med nødvendige tekniske og ansvarsrettslige tiltak for å oppfylle gjeldende byggtekniske krav.

Produkter og materialer

Fasade Vinduer

Antall: 8

Vinduer fordelt på fasader: Vest 3, Øst 2, Nord 2, Sør 1

Nye og/eller tilpassede fasadevindu for påbygg og eksisterende hytte

Fasade Ytterdører

Antall: 5

Dører fordelt på fasader: Vest 1, Øst 1, Sør 1, samt 2 dører i gang/entre

Ytterdører til påbygg og eksisterende hytte

Trapper Innvendig trapp

Antall: 1

Eksisterende innvendig trapp i hytta

Trapp i eksisterende hytte, mulig tilpasning ved påbygg

Tak Saltak

Antall: 1

Saltak på eksisterende hytte og påbygg

Taktekking og konstruksjon for saltak på påbygg

Tømrer Bygningskonstruksjon

🧱 Tre

Tømrerarbeid for påbygg, inkludert vegger, takstoler og innvendige konstruksjoner

Tømrerarbeid for påbygg på fritidsbolig

VVS Sanitæranlegg

Sanitæranlegg i påbygg, inkludert WC og vanninstallasjoner

VVS-installasjoner for påbygg på fritidsbolig

Maling Utvendig og innvendig maling

Maling av fasade og innvendige overflater i påbygg

Overflatebehandling for påbygg og eksisterende hytte

Isolasjon Vegger og tak

Isolasjon i vegger og tak for påbygg i henhold til TEK17

Isolasjon for påbygg for å oppnå energikrav

Grunnarbeid Fundamentering og grunnmur

Grunnarbeid for påbygg, inkludert fundamentering og eventuell drenering

Grunnarbeid for nytt påbygg på eksisterende hytte

Elektro Elektrisk anlegg

Elektrisk installasjon i påbygg og eventuell oppgradering i eksisterende hytte

Elektroinstallasjoner for påbygg og eksisterende hytte

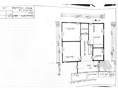
Plantegning

Eksisterende hytte 120.5 m²

Etasje 1 120.5 m²

Rom Areal Vinduer Dører
Sov 12.8 101 35.2 m² 1 1
Sov 11.7 102 32.5 m² 1 1
Sov 12.1 103 33.0 m² 1 1
WC 4.9 104 4.9 m² 0 1
Gang/Entre 17.5 105 17.5 m² 0 2

Fasader

Enebolig

Vest
Taktype
Saltak
Vinduer
3
Dører
1
Synlige etasjer
1
Øst
Taktype
Saltak
Vinduer
2
Dører
1
Synlige etasjer
1
Nord
Taktype
Saltak
Vinduer
2
Dører
0
Synlige etasjer
1
Sør
Taktype
Saltak
Vinduer
1
Dører
1
Synlige etasjer
1

Hendelser

23.04.2026 44/32 - Bernt Mellgård - Tilbakemelding på søknad om tilbygg til fritidsbolig - Mangler ved byggesøknad - Tilbygg fritidsbolig - Sørmoveien 28 - gnr 44 bnr 32
27.03.2026 44/32 - Bernt Mellgård - Søknad om tiltak - Enkelt påbygg på eksisterende hytte - Sørenmoveien 28 - gnr 44 bnr 32