Rehabilitation UnderBehandling Fritidsbolig

Rehabilitering og tilbygg til fritidsbolig i Bjønnes-Solvika 88

📍 Bjønnes-Solvika 88 , 3949 PORSGRUNN

Nøkkelinfo

Sakstype
Rehabilitering
Bygningstype
Fritidsbolig
Bruksareal
86 m²
Boenheter
1
Kommune
Porsgrunn
Fylke
Telemark
Gnr / Bnr
27 / 53
Saksnummer
2026/3607
Fase
Under behandling

Om byggesaken

Eksisterende fritidsbolig på eiendommen Bjønnes-Solvika 88 rehabiliteres og utbedres med utskifting av tak, fasade, vinduer og dører. To frittstående bygg (bod og utedo) og en stor platting rives for å samle bygningsmassen i ett hovedbygg. Det oppføres et tilbygg på ca. 23 m² med pulttak, tilpasset terrenget og skjermet fra sjøen for minimal visuell påvirkning. Ny platting senkes ca. 45 cm og reduseres i størrelse for bedre allmenn tilgang til strandsonen. Totalt BYA øker marginalt fra 84,8 m² til 85,5 m². Hytta tilkobles kommunalt vann, avløp og strøm. Materialvalg skal være vedlikeholdsfritt og fargepaletten tilpasses naturen rundt for å harmonere med svaberg, skog og fjell. Bygget får en gesimshøyde på 4,0 meter og pulttak med 11,87 graders vinkel. Prosjektet forbedrer miljø og allmennhetens tilgang til sjøen.

Produkter og materialer

Vinduer Fasadevindu

🧱 Tre eller vedlikeholdsfritt materiale

Antall: 9

Nye vinduer tilpasset pulttak og fasade, farge tilpasset natur

Utskifting av eksisterende vinduer i hytta med nye vedlikeholdsvennlige vinduer

Isolasjon Isolasjon av vegger og tak

Oppgradering til dagens byggetekniske standard med isolasjon

Isolasjon i vegger og tak ved rehabilitering og tilbygg

Dører Ytterdører

🧱 Tre eller vedlikeholdsfritt materiale

Antall: 3

Nye ytterdører tilpasset fasade og pulttak

Utskifting av ytterdører i eksisterende og tilbygg

VVS Vann- og avløpsinstallasjon

Tilkobling til kommunalt vann- og avløpsnett via sjøkabel

Installasjon av vann og avløp i ny og rehabilitert hytte

Bad Våtrom med bad og toalett

Antall: 1

Etablering av nytt bad/toalett i tilbygg, ombygging av soverom til våtrom

Nytt våtrom i tilbygg og ombygging av eksisterende rom til bad

Terrasse Platting

🧱 Tre eller komposittmateriale

Antall: 1

Ny platting under 50 cm over terreng, mindre og senket ca. 45 cm

Ny uteplass som erstatter eksisterende stor platting

Elektro Elektrisk installasjon

Tilkobling til offentlig strømnett, installasjon av elektrisk anlegg

Elektrisk installasjon i hytte og tilbygg

Fasade Trepanel eller vedlikeholdsfritt kledning

🧱 Tre eller vedlikeholdsfritt materiale, farge dempet og naturtilpasset

Ny kledning som harmonerer med svaberg, skog og fjell

Utskifting av fasadekledning på eksisterende hytte og tilbygg

Gulv Gulvrenovering

Totalrenovering av gulv i eksisterende hytte pga. dårlig stand

Renovering av gulv i eksisterende hytte

Tømrer Bygging av tilbygg og rehabilitering

Oppføring av tilbygg på 23 m², riving av bod, utedo og platting

Tømrerarbeid for tilbygg, riving og rehabilitering

Tak Pulttak

🧱 Taktekking ikke spesifisert, men tilpasset pulttak med god vannavrenning

Antall: 1

Pulttak med 11,87 graders vinkel, gesimshøyde 4,0 m

Nytt pulttak på tilbygg og eksisterende hytte, erstatter saltak

Grunnarbeid Fundamentering og terrengtilpasning

Nedsenking av platting ca. 45 cm, tilpasning til skrånende terreng

Grunnarbeid for ny platting og tilbygg, tilpasset terreng og flomsone

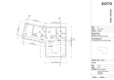
Plantegning

Enebolig 115.0 m²

Etasje 1 62.0 m²

Rom Areal Vinduer Dører
Stue 101 35.0 m² 0 0
Kjøkken 102 15.0 m² 0 0
Gang 103 12.0 m² 0 0
Sov 104 8.0 m² 1 1
Sov 105 5.4 m² 0 1
Sov 106 6.2 m² 1 1
Bod 107 1.9 m² 0 1
Bad 108 3.4 m² 0 1
Toalett 109 2.5 m² 0 1

Etasje 2 53.0 m²

Rom Areal Vinduer Dører
Sov 201 15.0 m² 0 0
Sov 202 12.0 m² 0 0
Bod 203 8.0 m² 0 0
Sov 204 10.0 m² 0 0
Bad + WC 205 8.0 m² 0 0

Fasader

Hytte

Øst
Materiale
Tre
Taktype
Flatt tak
Vinduer
5
Dører
1
Synlige etasjer
1
Vest
Materiale
Tre
Taktype
Flatt tak
Høyde
8.0 m
Mønehøyde
8.4 m
Vinduer
3
Dører
1
Synlige etasjer
1
Nordvest
Materiale
Tre
Taktype
Saltak
Høyde
5.5 m
Mønehøyde
5.5 m
Vinduer
0
Dører
1
Synlige etasjer
1

Hendelser

22.04.2026 Innvilget dispensasjon - Gbnr. 27/53, Bjønnes-Solvika 88 - Rive bod, utedo og terrasse samt oppføring av tilbygg og ombygging av eksisterende fritidsbolig og platting
20.04.2026 Ingen vesentlige merknader - dispensasjon - Gbnr. 27/53 - Bjønnes-Solvika 88 - rive bod og utedo - rehabilitering og oppføring av tilbygg til eksisterende fritidsbolig
26.03.2026 Oversendelse til uttalelse - Gbnr. 27/53 Bjønnes-Solvika 88 - Rive bod og utedo samt rehabilitering og oppføring av tilbygg til eksisterende fritidsbolig - Søknad om dispensasjon
25.03.2026 Rehabilitering og tilbygg til hytte - Gbnr. 27/53, Bjønnes-Solvika 88