Demolition Ferdigattest Fritidsbolig

Riving av gammel bygning og ny hagestue i Dalavegen 25, Årdal

📍 Dalavegen 25 , 6885 ÅRDALSTANGEN

Nøkkelinfo

Sakstype
Riving
Bygningstype
Fritidsbolig
Bruksareal
52 m²
Kommune
Årdal
Fylke
Vestland
Gnr / Bnr
29 / 2
Saksnummer
2024/2493
Fase
Ferdigattest

Om byggesaken

Prosjektet omfatter riving av et gammelt SEFRAK-registrert våningshus kalt Gamlestova, med et areal på ca. 34,6 m², som er i svært dårlig teknisk tilstand med omfattende råteskader og husbukkangrep. Bygningen har høy kulturhistorisk verdi, men er vurdert som teknisk og økonomisk lite hensiktsmessig å rehabilitere. Etter riving er det oppført en ny frittstående hagestue på 17,5 m² med trevegger og saltak. Det foreligger også søknad om påbygg på hovedhuset på eiendommen. Ferdigattester for både riving og hagestue er gitt. Prosjektet inkluderer også dispensasjonssøknad for påbygg i LNF-område med skredfare, som er vurdert og godkjent.

Produkter og materialer

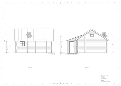
Bygg Frittstående hagestue

🧱 Tre, saltak med flatbankede tønner

Antall: 1

Ny frittstående hagestue på 17,5 m² med trevegger og saltak, oppført på eiendommen etter riving.

Oppføring av ny hagestue som erstatning for riving av gammel bygning.

Dører Ytterdører i tre

🧱 Treverk

Dører i gammel bygning med profilerte lister, ny dørkarm innfelt ved siden av eldre døråpninger.

Dørarbeid i gammel bygning og nye dører i påbygg.

Betong Natursteinsmur fundament

🧱 Naturstein

Tørrmurt natursteinsmur som fundament for gammel bygning, delvis nedraset og ustabil.

Fundamentering og murarbeid for gammel bygning og eventuelt nytt bygg.

Grunnarbeid Fundament og terrengarbeid

Utbedring av grunnmur og terrengnivå rundt bygget anbefalt for å hindre fukt- og råteskader.

Grunnarbeid for å sikre stabilitet og redusere fuktproblemer ved nybygg og vedlikehold.

Tømrer Laftekonstruksjon og treverk

🧱 Lafte tømmer, høvlet takbord, panel, profilerte lister

Rehabilitering eller utskifting av råteskadet og husbukkangrepet laftverk, samt nytt treverk i påbygg.

Tømrerarbeid knyttet til bygging og eventuelt reparasjon av laftehus og påbygg.

Riving Riving av SEFRAK-registrert våningshus

Antall: 1

Omfattende riving av gammelt laftehus med tørrmuret base og kjeller, ca 34,6 m², inkludert fjerning av råteskadet tømmer og delvis demontering av pipe.

Riving av gammelt våningshus med omfattende råteskader og husbukkangrep, inkludert miljøhensyn og avfallshåndtering.

Tak Saltak med flatbankede tønner

🧱 Flatbankede tønner, undertak med høvlede takbord, tidligere nevertekking

Nytt saltak på hagestue, og reparasjon/utskifting av tak på hovedhus og gammel bygning før riving.

Taktekking og konstruksjon for nybygg og vedlikehold.

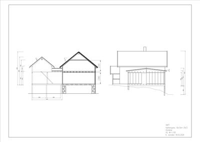
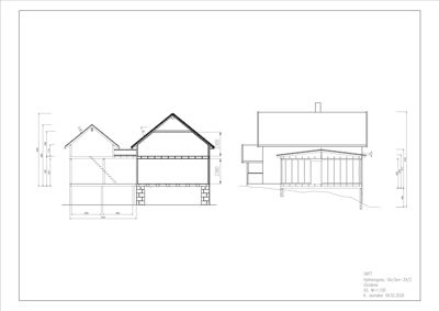
Bygg Påbygg hovedhus

Antall: 1

Søknad om påbygg på eksisterende hovedhus, inkludert plan, snitt og fasadetegninger, samt dispensasjonssøknad for LNF-område og skredfare.

Planlagt påbygg på hovedhus på eiendommen, med godkjent dispensasjon.

Maling Innvendige malte overflater og tapet

Flere lag malte overflater og mønstrete tapeter i gammel bygning, spor etter plassbygget interiør.

Restaurering av innvendige overflater i gammel bygning.

Vinduer Vinduer i tre

🧱 Treverk, glassruter med kitt

Vinduer i gammel bygning med behov for restaurering, enkelte ruter mangler glass eller kitt.

Restaurering eller utskifting av vinduer i gammel bygning og nye vinduer i påbygg.

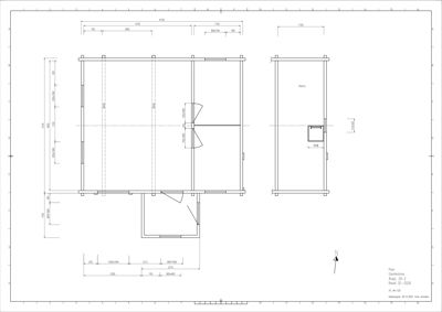
Plantegning

Gamlestova 34.6 m²

Etasje 1 34.6 m²

Rom Areal Vinduer Dører
Hems 101 34.6 m² 0 1

Fasader

Enebolig

Vest
Materiale
Tre
Taktype
Saltak
Høyde
7.0 m
Vinduer
3
Dører
1
Balkonger
1
Synlige etasjer
2
Øst
Materiale
Tre
Taktype
Saltak
Høyde
7.0 m
Vinduer
4
Dører
1
Balkonger
1
Synlige etasjer
2
Syd
Materiale
Tre
Taktype
Saltak
Vinduer
2
Dører
1
Synlige etasjer
1
Nord
Materiale
Tre
Taktype
Saltak
Vinduer
2
Dører
0
Synlige etasjer
1

Hendelser

14.04.2026 Søknad om tillatelse til tiltak - påbygg hovedhus
14.04.2026 Søknad om dispensasjon frå arealdel - påbygg hovedhus
08.04.2026 Delegert vedtak 26/209 - Ferdigattest for riving av SEFRAK-registrert bygning, gnr 29 bnr 2, Dalavegen 25
08.04.2026 Delegert vedtak 26/208 - Ferdigattest for hagestove på gnr 29 bnr 2, Dalavegen 25, Årdal kommune
07.04.2026 Søknad om ferdigattest - Riving av gamlestova
07.04.2026 Søknad om ferdigattest - Hagestova
27.03.2026 Søknad om ferdig attest
05.01.2026 Vedrørande riving av SEFRAK bygning, Årdal 292, formannskaps ved tak 16/125
17.12.2025 Vedtaksbrev - Klage på Delegert vedtak 25/133 -Avslag på søknad om riving av SEFRAK-registrert bygning på gnr 29 bnr 2
17.12.2025 Oversending av vedtaksbrev - Klage på Delegert vedtak 25/133 -Avslag på søknad om riving av SEFRAK-registrert bygning på gnr 29 bnr 2
17.11.2025 Klage på Delegert vedtak 25/133 -Avslag på søknad om riving av SEFRAK-registrert bygning på gnr 29 bnr 2
24.10.2025 Klage på Delegert vedtak 25/133 -Avslag på søknad om riving av SEFRAK-registrert bygning på gnr 29 bnr 2
13.10.2025 Ny informasjon vedrørande rivesøknad - Dalavegen 25
06.10.2025 Delegert vedtak 25/133 - Avslag på søknad om riving av SEFRAK-registrert bygning på gnr 29 bnr 2, Dalavegen 25
20.08.2025 Kommentar til "Tilstands- og kulturhistorisk vurdering - Dalavegen 25
12.08.2025 Tilstands- og kulturhistorisk vurdering - Dalavegen 25
04.04.2025 Kulturminnefagleg fråsegn - riving av SEFRAK-registrert bygning
25.02.2025 Tilvsvar - kulturminnefagleg fråsegn - riving av SEFRAK-registrert bygning - gnr. 29 bnr. 2 - Dalavegen 25
07.02.2025 Kulturminnefagleg fråsegn - riving av SEFRAK-registrert bygning - gnr. 29 bnr. 2 - Dalavegen 25
23.01.2025 Melding om tiltak - oppføring ny hagestove
09.01.2025 Ber om uttale - riving av SEFRAK-registrert bygning, Dalavegen 25, Årdal kommune
30.12.2024 Søknad om tillatelse til tiltak - riving av bygning