Rendering
3D-visualisering (rendering) av en husfasade sett fra ulike vinkler.
1 / 21
Extension
UnderBehandling
Fritidsbolig
Tilbygg på fritidsbolig i Asserøyveien 94, Vallersund
📍 Asserøyveien 94 , 7167 VALLERSUND
Nøkkelinfo
- Sakstype
- Tilbygg
- Bygningstype
- Fritidsbolig
- Bruksareal
- 21 m²
- Boenheter
- 1
- Kommune
- Ørland
- Fylke
- Trøndelag - Trööndelage
- Gnr / Bnr
- 76 / 87
- Saksnummer
- 2026/1030
- Fase
- Under behandling
Om byggesaken
Ny tilbygg på ca. 21 m² til eksisterende fritidsbolig i Asserøyveien 94, Vallersund. Tilbygget plasseres på baksiden av bygningen, lengst unna sjøen, og vil ikke komme nærmere strandlinjen enn eksisterende bygg. Bygget er tilpasset eksisterende bebyggelse med tre som fasademateriale og saltak. Tilbygget gir bedre funksjonalitet med utvidelse av stue/kjøkken og plass til to normale soverom. Bygningen har ett plan og er godt integrert i terrenget, med begrenset visuell påvirkning på landskapet og strandsonen. Det foreligger dispensasjon fra byggeforbudet i 100-metersbeltet mot sjø.
Produkter og materialer
Dører
Ytterdør
Antall: 1
Ytterdør til tilbygg
Tak
Saltak
🧱 Takstein eller lignende
Saltak som eksisterende bygg
Saltak på tilbygg, i samme stil som eksisterende bygg
Elektro
Elektrisk anlegg
Elektrisk installasjon i tilbygg
VVS
Vann og avløp
VVS-installasjoner for tilbygg, inkludert vann og avløp
Grunnarbeid
Fundamentering
Grunnarbeid og fundamentering for tilbygg
Maling
Utvendig og innvendig maling
Maling av fasade og innvendige flater i tilbygg
Gulv
Innvendig gulv
Gulv i tilbygg, sannsynligvis parkett eller laminat
Tømrer
Bygging av tilbygg
🧱 Tre
Tømrerarbeid for oppføring av tilbygg i tre
Isolasjon
Vegger og tak
Isolasjon i vegger og tak for tilbygg
Fasade
Trepanel
🧱 Tre
Fasade i tre, tilpasset eksisterende bygg
Trepanel til fasade på tilbygg for å matche eksisterende bebyggelse
Vinduer
Fasadevindu
Antall: 3
Nye vinduer i tilbygg for lys og utsyn
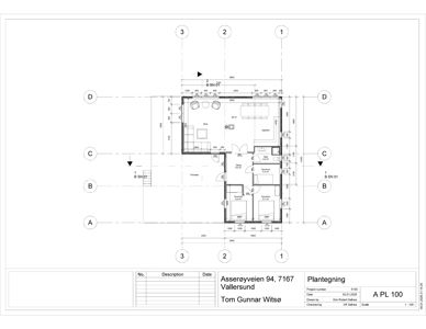
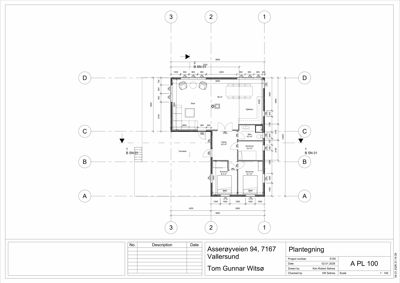
Plantegning
Enebolig 120.9 m²
Etasje 1 120.9 m²
| Rom | Areal | Vinduer | Dører |
|---|---|---|---|
| Stue 101 | 49.0 m² | 1 | 1 |
| Kjøkken 102 | 0.0 m² | 1 | 1 |
| Gang 103 | 9.0 m² | 0 | 2 |
| Bad 104 | 4.0 m² | 0 | 1 |
| Soverom 105 | 5.4 m² | 1 | 1 |
| Soverom 106 | 8.4 m² | 1 | 1 |
| Soverom 107 | 9.1 m² | 1 | 1 |
| Terrasse 108 | 0.0 m² | 0 | 0 |
Fasader
Enebolig
Vest
- Materiale
- Tre
- Taktype
- Saltak
- Vinduer
- 3
- Dører
- 1
- Synlige etasjer
- 1
Sør
- Materiale
- Tre
- Taktype
- Saltak
- Vinduer
- 3
- Dører
- 1
- Synlige etasjer
- 1
Øst
- Materiale
- Tre
- Taktype
- Saltak
- Vinduer
- 2
- Dører
- 1
- Synlige etasjer
- 1
Nord
- Materiale
- Tre
- Taktype
- Saltak
- Vinduer
- 2
- Dører
- 1
- Synlige etasjer
- 1
Hendelser
22.04.2026
Fylkeskommunens uttalelse til søknad om dispensasjon fra PBL § 1-8 for oppføring av tilbygg til fritidsbolig - 76/87. Ørland kommune
15.04.2026
Til uttalelse - Dispensasjonssøknad fra 100 metersbeltet mot sjø for tilbygg
15.04.2026
Til uttalelse - Dispensasjonssøknad fra 100 metersbeltet mot sjø for tilbygg
14.04.2026
Nabovarsel for dispensasjon
14.04.2026
Søknad om dispensasjon
11.04.2026
Bekrefter mottak av søknad om oppføring av tilbygg til fritidsbolig - Gnr 76 bnr 87 - Asserøyveien 94 - Saken er fordelt til saksbehandler
26.03.2026
Asserøyveien 94 Søknad om tillatelse til tiltak uten ansvarsrett 76/87