Extension UnderBehandling Fritidsbolig

Tilbygg og påbygg til fritidsbolig i Maursetlia 18

📍 Austre Maursetlia 18 , 5785 VØRINGSFOSS

Nøkkelinfo

Sakstype
Tilbygg
Bygningstype
Fritidsbolig
Bruksareal
83 m²
Boenheter
1
Kommune
Eidfjord
Fylke
Vestland
Gnr / Bnr
17 / 40
Saksnummer
2026/338
Fase
Under behandling

Om byggesaken

Ny tilbygg og påbygg til eksisterende fritidsbolig på Maursetlia 18, Eidfjord. Tilbygget øker bygningsarealet med ca. 32,2 m², og samlet BYA blir 83,2 m². Bygget får tre soverom, teknisk rom, lager, gang, og kombinert stue/kjøkken. Taket heves med ca. 71 cm for å få en takflate uten knekk, bedre isolasjon og klimatilpasning. Fasaden er i tre med saltak, og det etableres overbygg ved inngangsparti. Fundamentering skjer direkte på fjell, og tiltaket er vurdert å ikke øke flomrisiko. Bygget har 1 etasje, 1 trapp, og flere vinduer og dører fordelt på fasadene.

Produkter og materialer

Fasade Trepanel

🧱 Tre

Trepanel på alle fasader

Trepanel som fasademateriale for tilbygg og påbygg

Tak Saltak

🧱 Tre med taktekking

Antall: 1

Takheving med ca. 71 cm for å få takflate uten knekk, bedre isolasjon

Saltak med forbedret takkonstruksjon for tilbygg og påbygg

VVS Vann og avløp

Ingen innlagt vann, men tilknytning til avløp vurdert

VVS-installasjoner for tilbygg og påbygg

Tømrer Bygningskonstruksjon

🧱 Tre

Tømrerarbeid for tilbygg og påbygg, inkludert takheving og overbygg

Tømrerarbeid for oppføring av tilbygg og påbygg

Trapper Innvendig trapp

Antall: 1

En innvendig trapp i bygget

Innvendig trapp i tilbygg/påbygg

Dører Ytterdører

🧱 Tre

Antall: 4

Dører på fasade vest (1), nord (1), sør (1), og øst (1 garasjeport)

Ytterdører og garasjeport til tilbygg og påbygg

Elektro Elektrisk installasjon

Elektrisk installasjon i tilbygg og påbygg

Elektroarbeid for nytt tilbygg og påbygg

Rekkverk Overbygg rekkverk

Rekkverk ved overbygg inngangsparti

Rekkverk for overbygg ved inngang

Grunnarbeid Fundamentering på fjell

Fundamentering direkte på fjell, vurdert som erosjonssikker

Grunnarbeid og fundamentering for tilbygg og påbygg

Isolasjon Takisolasjon

Isolering av takkonstruksjon etter dagens standard

Isolasjon for tak i tilbygg og påbygg

Vinduer Fasadevindu

🧱 Tre/Aluminium

Antall: 7

Vinduer fordelt på fasader: 3 på vest, 2 på nord, 3 på sør, 0 på øst

Fasadevinduer for tilbygg og påbygg, tilpasset fritidsbolig med saltak

Maling Utvendig og innvendig maling

Maling av trepanel utvendig og innvendige overflater

Maling og overflatebehandling for tilbygg og påbygg

Gulv Innvendige gulv

Innvendige gulv i tilbygg og påbygg

Gulvbelegg og overflater i tilbygg og påbygg

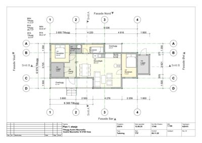
Plantegning

Enebolig 83.2 m²

Etasje 1 83.2 m²

Rom Areal Vinduer Dører
Soverom 101 6.8 m² 1 1
Lager 102 3.8 m² 0 1
Teknisk rom 103 2.1 m² 0 0
Gang 104 4.6 m² 0 2
Soverom 105 3.9 m² 0 1
Stova/kjøk 106 28.3 m² 1 0
Soverom 107 7.3 m² 1 1
Lager 108 4.2 m² 0 1
Overbygg 109 8.1 m² 0 0
Overbygg 110 2.9 m² 0 0

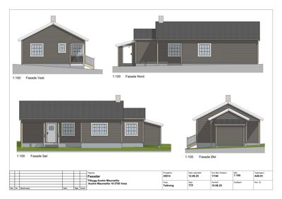
Fasader

Enebolig

Vest
Materiale
Tre
Taktype
Saltak
Vinduer
3
Dører
1
Balkonger
1
Synlige etasjer
1
Nord
Materiale
Tre
Taktype
Saltak
Vinduer
2
Dører
1
Synlige etasjer
1
Sør
Materiale
Tre
Taktype
Saltak
Vinduer
3
Dører
1
Synlige etasjer
1
Øst
Materiale
Tre
Taktype
Saltak
Vinduer
0
Dører
0
Synlige etasjer
1

Hendelser

13.04.2026 Tilbakemelding til supplering av søknad om tilbygg - gnr/bnr 17/40
07.04.2026 Søknad om dispensasjon frå byggegrensa mot riksveg 7 - gnr/bnr 17/40 - Austre Maursetlia 18
17.03.2026 Supplering av søknad - Gnr/bnr 17/40 - Austre Maursetlia 18
16.03.2026 Merknad til søknad om tilbygg og påbygg - gnr/bnr 17/40 - Austre Maursetlia 18
04.03.2026 Oversending av søknad om dispensasjon til uttale
13.02.2026 Søknad om løyve i eitt trinn - tilbygg og påbygg - gnr/bnr 17/40 - Austre Maursetlia 18