Extension UnderBehandling Fritidsbolig

Tilbygg, fasadeendring og terrengjustering på fritidsbolig i Bodøveien 2296

📍 Bodøveien 2296 , 8050 TVERLANDET

Nøkkelinfo

Sakstype
Tilbygg
Bygningstype
Fritidsbolig
Bruksareal
282 m²
Boenheter
1
Kommune
Bodø
Fylke
Nordland - Nordlánnda
Gnr / Bnr
115 / 32
Saksnummer
2026/25
Fase
Under behandling

Om byggesaken

Prosjektet omfatter en fritidsbolig med totalt bebygd areal på 281,5 m², inkludert eksisterende bygg, ulovlige og nye tilbygg, samt en frittstående redskapsbod/lager på 69 m². Det er gjennomført vesentlige terrenginngrep, inkludert sprengning av ca. 150 m³ fjell, opparbeidelse av vei til naust og plenområde. Kjelleretasjen er innredet til varig opphold med kjellerstue, bad og vaskerom, og det er etablert nytt trapperom og utvidelse av soverom. Fasadeendringer inkluderer nytt trapperom og støttemur mellom garasje og fritidsbolig. Garasje er revet og det foreligger tillatelse for ny garasje. Tiltakene ligger i LNFR-område med dispensasjon fra byggegrenser mot vassdrag, sjø og riksvei, samt dispensasjon for overskridelse av utnyttelsesgrad. Bygningen har saltak og trekledning, med flere vinduer og dører, og en balkong/plattning på 28,3 m². Terrenginngrepene er vurdert som nødvendige og utført på fjell med tilfredsstillende stabilitet.

Produkter og materialer

Tømrer Trekonstruksjoner for tilbygg og redskapsbod

🧱 Tre

Trekonstruksjoner for tilbygg, trapperom, redskapsbod og fasadeendringer

Tømrerarbeid for oppføring og endring av bygningsdeler

Terrasse Balkong/plattning

🧱 Tre

Antall: 1

Balkong/plattning på 28,3 m², platting under 0,5 m høyde

Utendørs balkong/plattning tilknyttet fritidsboligen

Garasjeport Garasjeport til ny garasje

Antall: 1

Garasjeport til ny garasje med dispensasjon fra byggegrense

Garasjeport for ny garasje som skal oppføres

Bygningskomponenter Vinduer

🧱 Tre med 3-lags energiglass

Antall: 10

Flere vinduer i fasader, inkludert større vindu i bad og stue/kjøkken

Vinduer til fritidsboligen i tilbygg og eksisterende bygg

Isolasjon Isolasjon i vegger og tak

Isolasjon i tilbygg og eksisterende bygg for varmeisolering

Isolasjon for energieffektivitet og komfort

Grunnarbeid Terrenginngrep og sprengning

Sprengning og utgraving av ca. 150 m³ fjell, opparbeidelse av vei til naust, plenområde med masser skavet av berg

Vesentlige terrenginngrep for tilrettelegging av tomt og adkomst

Trapper Innvendig og utvendig trapp

Antall: 2

Nytt trapperom i tilbygg, trapp i terreng flyttet

Trapper i nytt trapperom og utvendig trapp til inngangsparti

Mur Støttemur

🧱 Betong

Antall: 1

Støttemur mellom garasje og fritidsbolig

Støttemur for terrengstøtte ved garasje og bolig

VVS Bad og vaskerom installasjoner

Bad/vaskerom i kjeller og 1. etasje med nødvendige VVS-installasjoner

Sanitærinstallasjoner for bad og vaskerom

Elektro Elektriske installasjoner

Elektriske installasjoner i tilbygg og eksisterende bygg

Elektrisk anlegg for belysning, varme og utstyr

Bygningskomponenter Dører

🧱 Tre

Antall: 9

Ytterdører og innerdører i tilbygg og eksisterende bygg

Dører til fritidsboligen og tilbygg

Fasade Tilbygg med nytt trapperom og fasadeendringer

🧱 Tre

Nytt trapperom, utvidelse av soverom, fasadeendringer ut over tidligere tillatelse

Materialer og konstruksjoner for tilbygg og fasadeendringer på fritidsboligen

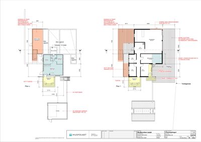
Plantegning

Enebolig 147.8 m²

Etasje 0 46.6 m²

Rom Areal Vinduer Dører
Kjellerstue 001 21.1 m² 0 1
Vaskerom 002 4.7 m² 0 1
Bod 003 1.6 m² 0 1
Kontor 004 5.5 m² 0 1
Trapperom 005 8.6 m² 0 1

Etasje 1 101.2 m²

Rom Areal Vinduer Dører
Stue/kjøkken 101 46.3 m² 1 1
Bad/vaskerom 102 17.4 m² 0 1
Sov 103 11.4 m² 0 1
Sov 104 7.7 m² 0 1
V.F. 105 16.8 m² 0 1
Trapperom 106 8.3 m² 0 1
SOV. 107 11.0 m² 1 1
UTEBOD 108 4.0 m² 1 1
BALKONG/PLATTING 109 28.3 m² 0 1

Fasader

Enebolig

Nord
Materiale
Tre
Taktype
Saltak
Vinduer
5
Dører
2
Synlige etasjer
2
Øst
Materiale
Tre
Taktype
Saltak
Vinduer
1
Dører
0
Synlige etasjer
2
Vest
Materiale
Tre
Taktype
Saltak
Vinduer
1
Dører
1
Synlige etasjer
2
Sør
Materiale
Tre
Taktype
Saltak
Vinduer
2
Dører
1
Synlige etasjer
2

Hendelser

14.04.2026 Foreløpig svar - behov for tilleggsdokumentasjon
25.03.2026 Søknad om igangsettingstillatelse - Bodøveien 2296
05.02.2026 Rammetillatelse - Bodøveien 2296
15.01.2026 Geoteknisk notat
14.01.2026 Utdyping av spørsmål til sak Bodøveien 2296
14.01.2026 Supplering av søknad
13.01.2026 Rammesøknad - Bodøveien 2296