Extension UnderBehandling Fritidsbolig

Tilbygg, garasje og drivhus til fritidsbolig i Ellestrandveien 29

📍 Ellestrandveien 29 , 4560 VANSE

Nøkkelinfo

Sakstype
Tilbygg
Bygningstype
Fritidsbolig
Bruksareal
125 m²
Boenheter
1
Kommune
Farsund
Fylke
Agder
Gnr / Bnr
55 / 2
Saksnummer
25/01644
Fase
Under behandling

Om byggesaken

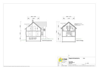
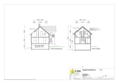
Prosjektet omfatter et nytt tilbygg på fritidsboligen i Ellestrandveien 29 med et bruksareal på 62 m², en frittstående garasje på 44 m² og et drivhus på 19,9 m². Tilbygget er i to etasjer med flere rom som bad, soverom, kjøkken og stue, og har tradisjonell materialbruk tilpasset det eksisterende SEFRAK-registrerte våningshuset fra 1700-tallet. Garasjen er i tre med saltak tekket med tegl, og har en garasjeport. Drivhuset har 12 vinduer og 2 dører, og er på 19,9 m². Bygningene har saltak med teglstein, og tilbygg og garasje har tilpassede fasader i tre. Prosjektet inkluderer også nødvendige grunnarbeider, tekniske installasjoner og overflater for å sikre funksjonell og estetisk helhet.

Produkter og materialer

Betong Fundament og kjeller

Kjeller/lager på 16,8 m² under tilbygg, betongfundament for garasje og drivhus

Betongarbeid for kjeller og fundamenter

VVS Sanitærinstallasjoner

Bad, WC og badstu i tilbygg, installasjon av vannklosett og sanitærutstyr

VVS-installasjoner for bad, WC og badstu i tilbygg

Grunnarbeid Fundamentering og drenering

Nødvendig grunnarbeid for tilbygg, garasje og drivhus

Grunnarbeid for fundamentering, drenering og tilpasning til terreng

Fasade Trepanel

🧱 Tre

Tradisjonell materialbruk tilpasset eksisterende SEFRAK-registrert bygg

Utvendig kledning for tilbygg og garasje i tre, tilpasset eksisterende bygg

Tak Saltak med teglstein

🧱 Teglstein

Saltak tekket med teglstein, grå og rød farge på garasje, tilbygg tilpasset eksisterende takstein

Taktekking for tilbygg og garasje med teglstein, tilpasset eksisterende bygg

Dører Ytterdører og garasjeport

Antall: 6

Garasje har 1 garasjeport og 1 dør, drivhus har 2 dører, tilbygg har flere ytterdører

Ytterdører til tilbygg, garasje og drivhus, inkludert garasjeport

Vinduer Fasadevindu og drivhusvinduer

Antall: 15

Drivhus har 12 vinduer, garasje har 5 vinduer fordelt på fasader, tilbygg har flere vinduer i ulike rom

Vinduer til drivhus, garasje og tilbygg, tilpasset byggestil

Elektro Elektrisk anlegg

Elektrisk installasjon i tilbygg, garasje og drivhus

El-installasjoner for belysning, strømuttak og tekniske anlegg

Terrasse Terrasse/uteareal

Ingen spesifikk terrasse nevnt, men vanlig for fritidsbolig

Mulig terrasse eller uteareal rundt tilbygg og drivhus

Tømrer Bjelkelag og trekonstruksjoner

🧱 Tre

Bjelkelag 148 mm, sperr 198 mm med 20 cm isolasjon, trekonstruksjoner for tilbygg og garasje

Tømrerarbeid for bjelkelag, vegger og takstoler

Isolasjon Mineralull

🧱 Mineralull

20 cm isolasjon i tak, isolasjon i vegger iht. TEK17

Isolasjon for vegger og tak i tilbygg

Maling Utvendig og innvendig maling

Maling av trepanel utvendig og innvendige overflater

Overflatebehandling for fasader og innvendige vegger

Gulv Innvendige gulv

Gulv i tilbygg og garasje, antatt parkett eller fliser i boligrom

Innvendige gulvflater i tilbygg og garasje

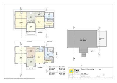
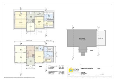
Plantegning

Enebolig 228.3 m²

Etasje 1 88.2 m²

Rom Areal Vinduer Dører
Stue 101 13.8 m² 2 1
Spis 102 9.0 m² 0 1
Kjøkken 103 10.4 m² 0 1
Gang 104 8.4 m² 0 2
Soverom 105 12.4 m² 1 1
WC 106 2.8 m² 0 1
Badstu 107 2.6 m² 0 1
Bad 108 7.8 m² 0 1
Garderobe WIC 109 4.8 m² 0 1

Etasje 2 78.1 m²

Rom Areal Vinduer Dører
Soverom 201 13.7 m² 1 1
Soverom 202 9.3 m² 1 1
Kontor 203 8.4 m² 1 1
Gang 204 10.7 m² 1 2
Gang 205 5.3 m² 1 1
Soverom 206 12.3 m² 1 1
Garderobe WIC 207 7.4 m² 0 1
Bad 208 8.5 m² 0 1

Etasje 0 62.0 m²

Rom Areal Vinduer Dører
Redskap / lager 001 16.8 m² 0 1

Drivhus 19.9 m²

Etasje 1 19.9 m²

Rom Areal Vinduer Dører
Drivhus 101 19.9 m² 12 2

Fasader

Garasje

Vest
Materiale
Tre
Taktype
Saltak
Takmat.
Tegl
Høyde
2.7 m
Mønehøyde
4.0 m
Vinduer
0
Dører
1
Synlige etasjer
1
Sør
Materiale
Tre
Taktype
Saltak
Takmat.
Tegl
Høyde
2.7 m
Mønehøyde
4.0 m
Vinduer
2
Dører
1
Synlige etasjer
1
Øst
Materiale
Tre
Taktype
Saltak
Takmat.
Tegl
Høyde
2.7 m
Mønehøyde
4.0 m
Vinduer
3
Dører
0
Synlige etasjer
1
Nord
Materiale
Tre
Taktype
Saltak
Takmat.
Tegl
Høyde
2.7 m
Mønehøyde
4.0 m
Vinduer
0
Dører
0
Synlige etasjer
1

Hendelser

22.04.2026 25/01644-13 Supplering - Dispensasjonssøknad byggegrense mot kommunal vei - 55/2, Ellestrandveien 29
21.04.2026 25/01644-12 Uttalelse til byggesak
21.04.2026 25/01644-11 Mangelbrev - manglende dispensasjon fra byggegrense til kommunal vei
14.04.2026 25/01644-10 Tilbakemelding fra ansvarlig søker
14.04.2026 25/01644-9 Svar fra Agder Fylkeskommune
22.01.2026 25/01644-8 Anmodning om uttalelse - oppdaterte tegningene av tilbygg på Ellestrandveien 29
05.01.2026 25/01644-7 Supplering av søknad - ny nabovarsling, oppdatert situasjonsplan og tegninger samt søknad for garasje og drivhus - 55/2, Ellestrandveien 29
18.11.2025 25/01644-6 Uttalelse - dispensasjonssak - 55/2 - Ellestrandveien 29
05.11.2025 25/01644-4 Bildene av huset før de omsøkte endringene
05.11.2025 25/01644-5 Korrigert dispensasjonssøknad med kommentar
30.10.2025 25/01644-3 Oversendelse av dispensasjonssak til uttalelse, 55/2, Ellestrandveien 29
28.10.2025 25/01644-2 Mangelbrev - kommunen etterlyser tegninger og foto av tiltaket
29.08.2025 25/01644-1 Rammesøknad - oppføring av tilbygg til fritidsbolig - 55/2, Ellestrandveien 29