Extension UnderBehandling Fritidsbolig

Tilbygg med sjøbuer og kaiutviding på Engevikvegen 250

📍 Engevikvegen 250 , 6926 KRAKHELLA

Nøkkelinfo

Sakstype
Tilbygg
Bygningstype
Fritidsbolig
Bruksareal
89 m²
Boenheter
1
Kommune
Solund
Fylke
Vestland
Gnr / Bnr
52 / 11
Saksnummer
2024/600
Fase
Under behandling

Om byggesaken

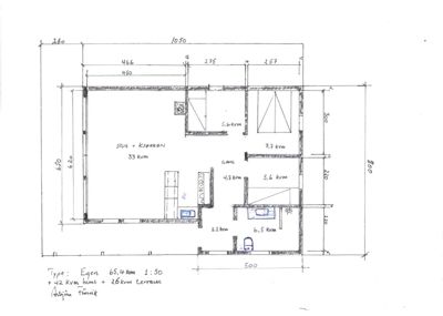
Prosjektet omfatter oppføring av to sjøbuer på henholdsvis ca. 15,75 m² og 10 m² med et takoverbygg mellom sjøbuene på ca. 22,5 m², plassert oppå en eksisterende og utvidet kai. Kaiområdet er utvidet fra opprinnelig godkjent 20 m² til ca. 30 meter lengde og 2,5-4 meter bredde, med betongkonstruksjon og flytebrygge. I tillegg inngår utviding av terrasse rundt en eksisterende fritidsbolig fra 2004 med totalt BRA på 89 m², fordelt på 1. etasje, loft og kjeller. Hytten er fundamentert på fjell og sprengsteinsfylling, med trekonstruksjon, trekledning og saltak med metallpanner. Innvendig består hytten av gang, bad, stue/kjøkken, fire soverom, vaskerom, bod og verksted. Det er installert luft-til-luft varmepumpe, vedovn, varmekabler og elektrisk oppvarming. Tiltaket inkluderer også rehabilitering av eksisterende hytte og mur bak hytta. Det foreligger dispensasjonssøknader for overskridelser i etasjetall, mønehøyde og utnyttingsgrad, samt for tiltak i 100-metersbeltet mot sjø. Prosjektet er godt tilpasset terrenget og har fått positiv foreløpig tilbakemelding fra kommunen og Kystverket.

Produkter og materialer

Elektro Automatsikringer med jordfeilautomater

Automatsikringer med jordfeilautomater og 7 kurser, anbefalt kontroll av autorisert elektriker

Elektrisk anlegg i fritidsboligen

Tømrer Bindingsverk og trekledning

🧱 Tre, 150 mm isolert bindingsverk, liggende trekledning

Trekonstruksjon over grunnmur, isolert bindingsverk med liggende trekledning

Bygningskonstruksjon og fasade for fritidsboligen

Vinduer Isolerglassvinduer i malte trekarmer

🧱 Tre, 2-lags isolerglass

Antall: 14

Vinduer med 2-lags isolerglass i malte trekarmer

Vinduer til fritidsboligen

Grunnarbeid Fundamentering på fjell og sprengsteinsfylling

🧱 Fjell, sprengsteinsfylling

Fundamentering på fjell og sprengsteinsfylling, grunnmur i betong

Grunnarbeid for fritidsboligen og kai

Terrasse Tretak og terrasse rundt hytte

🧱 Tre

Stor terrasse rundt hytta, utvidet i forhold til opprinnelig godkjent størrelse

Utviding av terrasse rundt fritidsboligen

Trapper Innvendig malt tretrapp

🧱 Tre

Antall: 1

Innvendig malt tretrapp med heltre trinn, mangler håndløper

Innvendig trapp i fritidsboligen

Grunnarbeid Kaiutviding

🧱 Betong, jernbaneskinner og tredekke

Kai utvidet til ca. 30 meter lengde og 2,5-4 meter bredde, med betongkonstruksjon og flytebrygge

Utviding av eksisterende kai med betongfundament og flytebrygge

Kjøkken Kjøkkeninnredning med integrerte hvitevarer

🧱 Heltre benkeplate, hvite profilerte fronter

Antall: 1

Kjøkken med heltre benkeplate, integrert oppvaskmaskin, kjøl- og fryseskap, ventilator med avtrekk

Kjøkkeninnredning i fritidsboligen

VVS Varmepumpe, vedovn, varmekabler, varmtvannsbereder

Luft-til-luft varmepumpe i gang, vedovn i stue, varmekabler i bad, stue, kjøkken og gang, 115 liters varmtvannsbereder i kjeller

Oppvarmings- og varmtvannsløsninger i fritidsboligen

Ventilasjon Naturlig avtrekk og kjøkkenventilator

Naturlig avtrekk fra bad, ventilator med avtrekk fra kjøkken, tilluft via spalteventiler i vinduer

Ventilasjonsløsninger i fritidsboligen

Gulv Fliser, eikeparkett og furugulv

🧱 Fliser, heltre eik, furu

Fliser med varmekabler i gang, bad, stue/kjøkken; heltre eik i stue/kjøkken og loftstue; furugulv i soverom

Gulvbelegg i fritidsboligen

Fasade Sjøbuer

🧱 Tre

Antall: 2

Sjøbuer på ca. 15,75 m² og 10 m² med takoverbygg på 7,5 m x 3 m mellom sjøbuene

Oppføring av to sjøbuer med takoverbygg på eksisterende og utvidet kai

Bad Heldekkende fliser, baderomsinnredning

🧱 Fliser, glassbyggestein, malt panel

Antall: 1

Bad med fliser på gulv og vegger, dusjkrok med glassbyggestein, servant, toalett og baderomsinnredning

Bad i fritidsboligen

Dører Ytterdører og skyvedør med isolerglassfelt

🧱 Tre, isolerglass

Antall: 5

Malt profilert ytterdør med isolerglassfelt, skyvedør med isolerglass i malte trekarmer, glatt finert ytterdør i kjeller

Ytterdører og skyvedør til fritidsboligen

Tak Saltak med metallpanner

🧱 Metallpanner

Saltak med metallpanner, taket ble skiftet fra torvtak til takplater i 2019

Nytt tak med metallpanner på fritidsboligen

Mur Betongmur og støttemur

🧱 Betong

Betongmur bak hytta, støttemur og betongplattinger rundt bygget

Murer og fundamenter til fritidsboligen og uteområder

Fasader

Egen

Nord
Materiale
Tre
Taktype
Flatt tak
Vinduer
1
Dører
0
Synlige etasjer
1
Vest
Materiale
Tre
Taktype
Saltak
Vinduer
6
Dører
1
Synlige etasjer
2
Sør
Materiale
Tre
Taktype
Saltak
Høyde
3.4 m
Mønehøyde
8.4 m
Vinduer
4
Dører
0
Synlige etasjer
2
Øst
Materiale
Tre
Taktype
Saltak
Vinduer
3
Dører
0
Synlige etasjer
2

Hendelser

13.04.2026 Ingen merknad til nabovarsel gbnr 52/11
09.04.2026 Spørsmål om kai på gbnr 52/11 - kopi av e-post til Kystverket
08.04.2026 Oversending dispensasjonssøknad for etasjetal og utnyttingsgrad gbnr 52/11
24.03.2026 Tilbakemelding - svar på førebels tilbakemelding
19.03.2026 Vedkjem byggjesøknad gbnr 52/11
18.03.2026 Førebels tilbakemelding - Søknad om dispensasjon for løyve til bygging av sjøbuer og endring av kai og hytte gbnr 52/11
16.03.2026 Søknad om dispensasjon for løyve til bygging av sjøbuer og endring av kai og hytte gbnr 52/11
15.08.2024 Byggetiltak på fritidseigedomen gbnr 52/11 Engevik i Solund kommune