Extension UnderBehandling Fritidsbolig

Tilbygg og uthus på fritidsbolig i Gardsøyveien 22, Vega

📍 Gardsøyveien 22 , 8984 VEGA

Nøkkelinfo

Sakstype
Tilbygg
Bygningstype
Fritidsbolig
Bruksareal
228 m²
Boenheter
1
Kommune
Vega
Fylke
Nordland - Nordlánnda
Gnr / Bnr
34 / 57
Saksnummer
2025/376
Fase
Under behandling

Om byggesaken

Prosjektet omfatter tilbygg og ombygging av en eksisterende fritidsbolig på 184 m² fordelt på to etasjer, samt gjenoppføring av et uthus på eksisterende grunnmur med et areal på ca. 45 m². Tilbygget inkluderer stue, soverom og vindfang, og bygges i tradisjonell stil med stående panel og tilpasset takform. Uthuset bygges med flatt tak og består av to rom, et kaldt og et varmt, til bruk for lagring og enkel tilberedning av fisk og skalldyr. Begge byggene ligger innenfor 100-metersbeltet langs sjøen og i LNF-område, og det er gitt dispensasjon fra byggeforbudet. Byggene får tilknytning til offentlig vann og avløp. Fasader og materialvalg er tilpasset eksisterende bygg og området. Prosjektet inkluderer også uteplasser/altaner på til sammen ca. 61 m².

Produkter og materialer

Gulv Oppretting og oppgradering

Oppretting av gulv i eksisterende bygg, oppgradering til dagens krav

Gulvoppgradering i eksisterende fritidsbolig

Tak Saltak og flatt tak

🧱 Taktekking ikke spesifisert

Tilbygg har saltak tilpasset eksisterende bygg, uthus har flatt tak

Taktekking for tilbygg og uthus

VVS Vann og avløp tilkobling

Tilknytning til offentlig vann og avløp for bolig og uthus

Vann- og avløpsinstallasjoner for tilbygg og uthus

Elektro El-installasjoner

El-installasjoner prosjektert av ansvarlig søker

Elektriske installasjoner i tilbygg og uthus

Terrasse Uteplatt/altan

Antall: 2

To uteplasser på til sammen ca. 61 m², delvis overbygd

Uteplasser/altaner tilknyttet fritidsboligen

Mur Eksisterende grunnmur for uthus

🧱 Betong/stein

Antall: 1

Gjenbruk av eksisterende grunnmur for uthus

Grunnmur til uthus benyttes fra tidligere fjøs

Isolasjon Isolasjon i tilbygg

Tilbygg bygges i henhold til TEK17 med isolasjon

Isolasjon i vegger, tak og gulv i tilbygget

Fasade Stående panel

🧱 Tre

Fasader kles med stående panel i tre, tilpasset eksisterende bygg

Yttervegger kles med stående trepanel for tilbygg og uthus

Dører Ytterdører og dører til uthus

Antall: 10

Ytterdører til bolig og uthus, antall fra plantegninger og fasader

Ytterdører for tilbygg, eksisterende bygg og uthus

Trapper Innvendig trapp i hytte

Antall: 1

En innvendig trapp i fritidsboligen mellom etasjer

Innvendig trapp i fritidsboligen

Vinduer Fasadevindu

Antall: 8

Vinduer i tilbygg og eksisterende bygg, antall fra plantegninger

Fasadevinduer for tilbygg og eksisterende fritidsbolig

Maling Utvendig maling

Utvendig maling av panel og treverk

Maling av utvendige flater på tilbygg og uthus

Bad Bad med sanitærutstyr

Antall: 2

Bad i begge etasjer i fritidsboligen, oppgradert til dagens krav

Bad med sanitærinstallasjoner i fritidsboligen

Plantegning

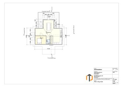
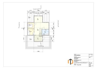
Hytte 184.0 m²

Etasje 2 63.5 m²

Rom Areal Vinduer Dører
Soverom 201 10.3 m² 1 1
Stue/kjøkken 202 44.8 m² 3 1
WC 203 1.7 m² 0 1
Bad 204 7.5 m² 0 1
Gang 205 3.9 m² 0 2

Etasje 1 120.5 m²

Rom Areal Vinduer Dører
Uteplatt 108 33.2 m² 0 0
Stue 103 9.8 m² 1 2
Soverom 104 6.8 m² 1 1
Soverom 105 7.1 m² 1 1
Stue 102 25.5 m² 0 1
Bad 106 7.1 m² 0 1
VF 101 8.9 m² 0 1
Uteplatt 107 34.7 m² 0 0

Uthus 44.6 m²

Etasje 1 44.6 m²

Rom Areal Vinduer Dører
Reskapssbod - Kald 010 29.5 m² 0 1
Reskapssbod - varm 011 15.1 m² 0 1

Fasader

Uthus

Nord
Materiale
Tre
Taktype
Flatt tak
Vinduer
3
Dører
0
Synlige etasjer
1
Sør
Materiale
Tre
Taktype
Flatt tak
Vinduer
1
Dører
1
Synlige etasjer
1
Vest
Materiale
Tre
Taktype
Flatt tak
Vinduer
0
Dører
1
Synlige etasjer
1
Øst
Materiale
Tre
Taktype
Flatt tak
Vinduer
0
Dører
1
Synlige etasjer
1

Hendelser

08.04.2026 Melding om vedtak - søknad om dispensasjon - 1815/34/57
16.03.2026 Kulturminnefaglig uttalelse - byggesak på høring - Vega kommune - gnr 34 bnr 57 - Gardsøyveien 22
30.01.2026 Oversendelse av byggesak på høring
07.01.2026 Supplering av søknad - 34/57 - Gardsøyveien 22
19.12.2025 Svar - Gardsøyveien 22 - VA-kart
19.12.2025 Gardsøyveien 22 - VA-kart
17.12.2025 Søknad om dispensasjon
09.12.2025 Mangelbrev - søknad om rammetillatelse - 1815/34/57
03.12.2025 Gardsøyveien 22 Søknad om rammetillatelse 34/57