Extension Soeknad Fritidsbolig

Tilbygg til fritidsbolig i Gerdvegen 7

📍 Gerdvegen 7 , 2880 NORD-TORPA

Nøkkelinfo

Sakstype
Tilbygg
Bygningstype
Fritidsbolig
Bruksareal
35 m²
Kommune
Nordre Land
Fylke
Innlandet
Gnr / Bnr
77 / 15
Saksnummer
2026/6806
Fase
Søknad

Om byggesaken

Ny tilbygg på 35 m² til eksisterende fritidsbolig i Gerdvegen 7, bestående av to soverom og en stue. Tilbygget plasseres ved forlengelse av østveggen og har saltak med shingel som takmateriale. Fasaden bygges i tre, og det er planlagt flere nye vinduer og en dør i tilbygget. Bygget vil komme nærmere nabogrensen enn 4 meter, med godkjennelse fra nabo. Pipe er trukket fra søknaden. Tilbygget har en etasje med gesimshøyde på 2,45 meter.

Produkter og materialer

Fasade Trepanel

🧱 Tre

Tilbygg i tre med saltak og shingel takmateriale, farge grå på tak

Fasademateriale i tre til tilbygget med saltak og shingel som taktekking

Vinduer Fasadevindu

Antall: 4

Nye vinduer i tilbyggets fasade mot nord-øst

Maling Utvendig og innvendig maling

Maling av utvendige og innvendige flater i tilbygget

Elektro Elektrisk installasjon

Elektrisk anlegg for belysning og stikkontakter i tilbygget

Isolasjon Vegger og tak

Isolasjon for vegger og tak i tilbygget for å oppnå forskriftsmessig standard

Dører Ytterdør

Antall: 1

Ny ytterdør i tilbygget

Grunnarbeid Fundamentering og grunnmur

Grunnarbeid for nytt tilbygg, inkludert fundamentering og grunnmur

Tømrer Bygging av tilbygg

Tømrerarbeid for oppføring av tilbygg med to soverom og stue

Tak Saltak med shingel

🧱 Shingel

Saltak med shingel som takmateriale, gesimshøyde 2,45 m

Taktekking for tilbygget med saltak og shingel

VVS Ventilasjon

Ventilasjon i tilbygget, uten vann eller avløp

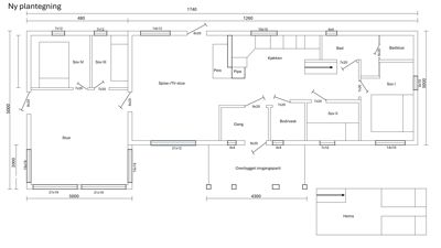
Plantegning

Enebolig 63.0 m²

Etasje 1 63.0 m²

Rom Areal Vinduer Dører
Stue 101 35.0 m² 1 1
Kjøkken 102 15.0 m² 1 1
Bad 103 13.0 m² 0 1
Gang 104 5.0 m² 0 2
Bod/vask 105 8.0 m² 1 1
Sov I 106 12.0 m² 1 1
Sov II 107 10.0 m² 1 1
Sov III 108 10.0 m² 1 1
Sov IV 109 10.0 m² 1 1
Bad 110 6.0 m² 0 1
Badstue 111 5.0 m² 1 1
Peis 112 2.0 m² 0 0
Pipe 113 1.0 m² 0 0

Fasader

Enebolig

Syd-vest
Materiale
Tre
Taktype
Saltak
Vinduer
4
Dører
1
Synlige etasjer
1
Syd-øst
Materiale
Tre
Taktype
Saltak
Høyde
4.5 m
Mønehøyde
6.5 m
Vinduer
2
Dører
1
Balkonger
1
Synlige etasjer
2
Nord-vest
Materiale
Tre
Taktype
Saltak
Vinduer
1
Dører
0
Synlige etasjer
1

Eksisterende

Nord-øst
Materiale
Tre
Taktype
Flatt tak
Takmat.
Shingel
Høyde
2.5 m
Vinduer
2
Dører
1
Synlige etasjer
1

Ny

Nord-øst
Materiale
Tre
Taktype
Saltak
Takmat.
Shingel
Høyde
2.5 m
Vinduer
4
Dører
1
Synlige etasjer
1

Hendelser

21.04.2026 Gbnr. 77/15 - Oppføring av pipe trekkes fra søknad om oppføring av tilbygg til fritidsbolig - Gerdvegen 7
20.04.2026 Gbnr. 77/15 - Tilbakemelding om mangler ved mottatt søknad om oppføring av tilbygg til fritidsbolig - Gerdvegen 7
08.04.2026 Gbnr. 77/15 - Byggesøknad