Extension UnderBehandling Fritidsbolig

Ny anneks med varig opphold på Indre Elleodden 1, Drøbak

📍 Indre Elleodden 1 , 1444 DRØBAK

Nøkkelinfo

Sakstype
Tilbygg
Bygningstype
Fritidsbolig
Bruksareal
30 m²
Kommune
Frogn
Fylke
Akershus
Gnr / Bnr
1 / 162
Saksnummer
26/10510
Fase
Under behandling

Om byggesaken

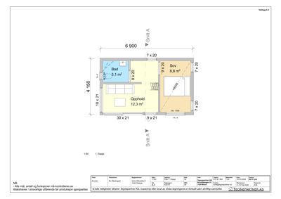
Ny frittstående anneks på 30 m² BYA med flatt tak og trekledning oppføres på eiendommen Indre Elleodden 1 i Drøbak. Bygget har ett plan med rominndeling bestående av oppholdsrom (12,3 m²), bad (3,1 m²) og soverom (8,8 m²). Anneksets fasader er i tre med liggende kledning, og det har flere vinduer fordelt på alle fasader samt dører mot sør og øst. Bygget erstatter et eksisterende anneks på 12 m² som rives. Grunnarbeider, mur, membran og radonsperre inngår i prosjektet, samt innvendige rør- og sanitæranlegg. Bygget er tilpasset eksisterende fritidsbolig med samme materialbruk og detaljering, og det er tatt hensyn til kulturmiljø og terreng. Det er én trapp i bygget, og det er planlagt tilknytning til offentlig avløpsanlegg.

Produkter og materialer

Vinduer Fasadevindu

🧱 Tre/aluminium ikke spesifisert

Antall: 6

Vinduer fordelt på fasader: 1 vest, 1 nord, 2 sør, 2 øst

Fasadevindu i anneksets fasader

Trapper Innvendig trapp

Antall: 1

En trapp i bygget

Innvendig trapp i anneks

Grunnarbeid Fundamentering, mur, membran, radonsperre

Grunnarbeider, mur, membran og radonsperre iht. ansvarsrett og gjennomføringsplan

Grunnarbeid og fundamentering for anneks

Elektro Elektriske installasjoner

Elektriske installasjoner antatt nødvendig for oppholdsrom og bad

Elektroinstallasjoner i anneks

Dører Ytterdør

🧱 Ikke spesifisert

Antall: 2

Dører på sør- og østfasade

Ytterdører til anneks

VVS Innvendig rør- og sanitæranlegg

Sanitærinstallasjoner for bad og kjøkkenfunksjoner

VVS-installasjoner i anneks

Gulv Innvendig gulvbelegg

Ikke spesifisert, men nødvendig for oppholdsrom, bad og soverom

Innvendige gulvflater i anneks

Tak Flatt tak

🧱 Ikke spesifisert

Flatt tak på anneks

Tak med flatt tak som vist på fasadetegninger

Fasade Liggende trekledning

🧱 Tre

Liggende kledning som samsvarer med eksisterende fritidsbolig

Utvendig kledning i tre med liggende bord

Plantegning

Enebolig 30.2 m²

Etasje 1 30.2 m²

Rom Areal Vinduer Dører
Opphold 101 12.3 m² 2 1
Bad 102 3.1 m² 0 1
Sov 103 8.8 m² 2 1

Fasader

Anneks

Vest
Materiale
Tre
Taktype
Flatt tak
Høyde
4.2 m
Vinduer
1
Dører
0
Synlige etasjer
1
Nord
Materiale
Tre
Taktype
Flatt tak
Vinduer
1
Dører
0
Synlige etasjer
1
Sør
Materiale
Tre
Taktype
Flatt tak
Vinduer
2
Dører
1
Synlige etasjer
1
Øst
Materiale
Tre
Taktype
Flatt tak
Vinduer
2
Dører
1
Synlige etasjer
1

Hendelser

14.04.2026 26/10510-2 Supplering av søknad - 1/162/0/0 - Indre Elleodden 1 - 1/162/0/0 - Indre Elleodden 1 - Nytt bygg - Anneks - Fritidsbolig
08.04.2026 26/10510-1 Søknad om tillatelse i ett trinn med ansvar - 3 uker - 1/162/0/0 - Indre Elleodden 1 - Nytt bygg - Anneks - Fritidsbolig