Extension UnderBehandling Fritidsbolig

Tilbygg og rammetillatelse for fritidsbolig på Justøygavlen 82

📍 Justøygavlen 82 , 4780 BREKKESTØ

Nøkkelinfo

Sakstype
Tilbygg
Bygningstype
Fritidsbolig
Bruksareal
120 m²
Boenheter
1
Kommune
Lillesand
Fylke
Agder
Gnr / Bnr
10 / 103
Saksnummer
2025/3119
Fase
Under behandling

Om byggesaken

Ny tilbygg på eksisterende fritidsbolig på Justøygavlen 82, med et samlet bruksareal på ca. 90,3 m² for tilbygg og totalt 120 m² for hele eiendommen inkludert eksisterende anneks. Bygget har saltak med teglstein på trefasader mot nord og sør, og flatt tak på betongfasader mot øst og vest. Planløsningen omfatter stue, kjøkken, gang, tre soverom, to bad, vaskerom, teknisk rom og garasje. Romhøyden er hovedsakelig 2,5 meter, med enkelte områder på 1,89 meter som ikke regnes med i målbart areal. Fasaden kombinerer tre og betong, og det er pipe på saltakssidene. Det er en trapp i bygget, og uteareal med plattinger og overdekket inngang. Prosjektet er i fase med rammesøknad og dokumenttilsyn under behandling.

Produkter og materialer

Maling Innvendig og utvendig maling

Maling av innvendige og utvendige flater

Tak Saltak med teglstein

🧱 Teglstein

Saltak med teglstein på trefasader

Saltak med teglstein som taktekking på trefasader

Fasade Betongfasade

🧱 Betong

Betongfasader mot øst og vest med flatt tak

Betongfasader på øst- og vestsiden med flatt tak

Vinduer Fasadevindu

Antall: 10

4 vinduer nord, 4 vinduer sør, 3 vinduer øst, 2 vinduer vest

Fasadevinduer i tre og betongfasader, totalt 13 vinduer

Dører Ytterdører

Antall: 4

1 dør nord, 1 dør sør, 1 dør øst, 1 dør vest

Ytterdører fordelt på alle fasader

Gulv Innvendige gulv

Innvendige gulv i stue, kjøkken, soverom, bad, vaskerom og teknisk rom

Garasjeport Garasjeport

Antall: 1

Garasje på 19 m² med port

Garasje med port integrert i tilbygget

Fasade Trefasade

🧱 Tre

Trefasader mot nord og sør med saltak og teglstein

Trepanel til fasader på nord- og sørsiden med saltak og teglstein som takmateriale

Trapper Innvendig trapp

Antall: 1

1 trapp i bygget

Innvendig trapp i eneboligen

Betong Betongkonstruksjoner

Betongkonstruksjoner for fasader og fundamenter

Grunnarbeid Fundamentering og grunnmur

Grunnarbeid og fundamentering for tilbygget og garasje

Isolasjon Bygningsisolasjon

Isolasjon i vegger, tak og gulv for å oppfylle TEK17 krav

Elektro Elektriske installasjoner

Elektriske installasjoner for belysning, strøm og tekniske anlegg

Tak Flatt tak

Flatt tak på betongfasader

Flatt tak på betongfasader

VVS Sanitærinstallasjoner

Bad, vaskerom og teknisk rom med nødvendige VVS-installasjoner

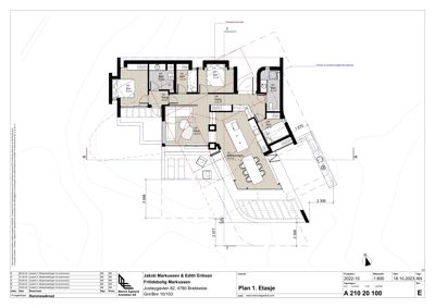
Plantegning

Enebolig 119.5 m²

Etasje 1 119.5 m²

Rom Areal Vinduer Dører
Stue 101 31.4 m² 1 1
Kjøkken 102 18.6 m² 0 1
Gang 103 12.6 m² 0 2
Sov 104 7.5 m² 1 1
Bad 105 6.0 m² 0 1
Sov 106 8.8 m² 1 1
Sov 107 4.5 m² 1 1
Bad 108 4.3 m² 0 1
Vaskerom 109 4.0 m² 0 1
Teknisk 110 11.2 m² 0 1
Garasje 111 19.0 m² 0 1
Gang 100 10.2 m² 0 1

Fasader

Fritidsbolig

Nord
Materiale
Tre
Taktype
Saltak
Takmat.
Tegl
Høyde
3.9 m
Mønehøyde
5.4 m
Vinduer
4
Dører
1
Synlige etasjer
1
Sør
Materiale
Tre
Taktype
Saltak
Takmat.
Tegl
Høyde
3.9 m
Mønehøyde
5.4 m
Vinduer
4
Dører
1
Synlige etasjer
1
Øst
Materiale
Betong
Taktype
Flatt tak
Høyde
3.3 m
Mønehøyde
15.4 m
Vinduer
3
Dører
1
Synlige etasjer
1
Vest
Materiale
Betong
Taktype
Flatt tak
Høyde
3.3 m
Mønehøyde
15.4 m
Vinduer
2
Dører
1
Synlige etasjer
1

Hendelser

17.04.2026 Gnr 10 bnr 103 Justøygavlen 82 - Tilbakemelding på ansvarlig søkers tilsvar på tilsynsrapporten
20.03.2026 Tilbakemelding på kommunens tilsynsrapport for tiltak på Justøygavlen gnr 10 bnr 103 (82) Brekkestø
27.02.2026 Svar på utsettelse av frist på tilbakemelding av tilsynsrapport
26.02.2026 Ber om utsettelse av frist på tilbakemelding av tilsynsrapport
11.02.2026 Gnr 10 bnr 103 Justøygavlen 82 - Tilsynsrapport
19.12.2025 Gnr 10 bnr 103 Justøygavlen 82 - Foreløpig svar
26.11.2025 Gnr 10 bnr 103 Justøygavlen 82 - Svar på tilsyn i byggesak
26.11.2025 Gnr 10 bnr 103 Justøygavlen 82 - Oversender dokumenter i forbindelse med tilsyn
19.11.2025 Utsatt frist for innsending av dokumenter
05.11.2025 Gnr 10 bnr 103 Justøygavlen 82 - Varsel om dokumenttilsyn