Extension Soeknad Fritidsbolig

Tilbygg og riving av fritidsbolig på Kråkenesvegen 72

📍 Kråkenesvegen 72 , 6710 RAUDEBERG

Nøkkelinfo

Sakstype
Tilbygg
Bygningstype
Fritidsbolig
Bruksareal
113 m²
Boenheter
1
Kommune
Kinn
Fylke
Vestland
Gnr / Bnr
328 / 28
Saksnummer
2026/3240
Fase
Søknad

Om byggesaken

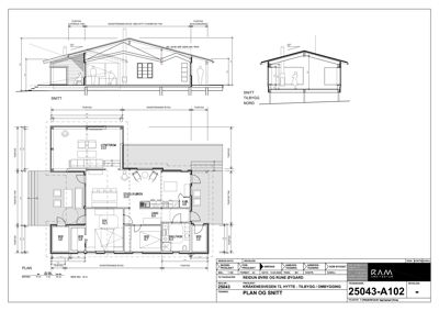
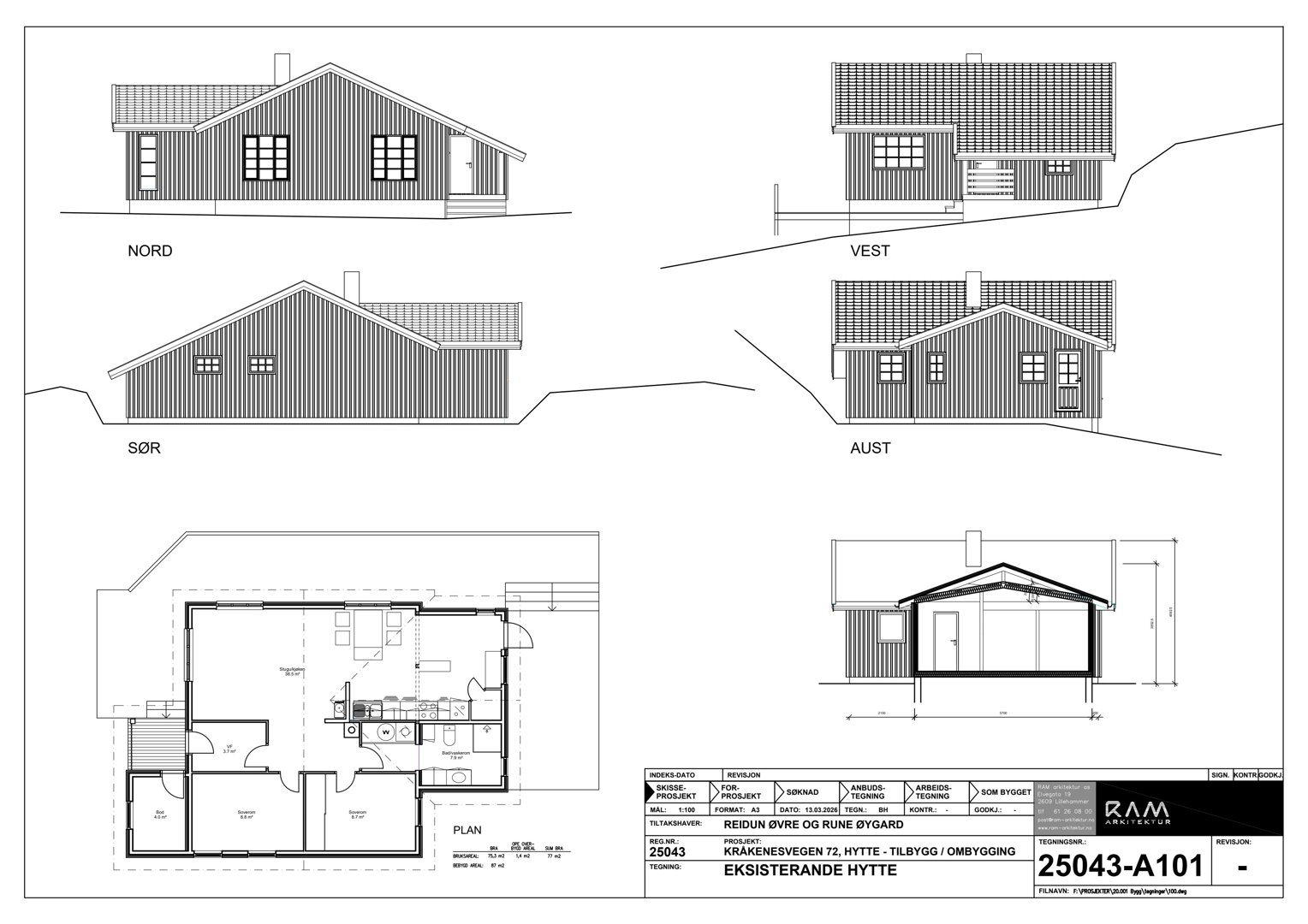
Ny ombygging og tilbygg av eksisterende fritidsbolig på Kråkenesvegen 72 med et samlet bruksareal på 113 m² etter utvidelse. Tilbygget er på ca. 38 m² med overbygd areal på 9,6 m², og det planlegges riving av deler av eksisterende bygg. Bygget får nytt, slakt og samlet tak med mønehøyde ca. 0,5 meter over dagens nivå, og fasader og tak fornyes med malt trekledning og stålplatetak. Hytta får flere boder, bad/vaskerom, stue/kjøkken, utsiktsrom og soverom, med totalt 7 vinduer og 10 dører i tilbygget og eksisterende del. Vannforsyning er tilkoblet Kråkenes vassverk, og kloakkløsning med vakuumtoalett opprettholdes. Prosjektet inkluderer også riving av deler av eksisterende bygg og oppgradering av fasader.

Produkter og materialer

Bad Sanitærutstyr og overflater

Bad og vaskerom med sanitærinstallasjoner og overflater

VVS Vannforsyning og kloakkløsning

Tilkobling til Kråkenes vassverk og vakuumtoalett fra Jets, eksisterende kloakkløsning opprettholdes

Vann- og avløpssystem for hytta

Fasade Trekledning

🧱 Malt trekledning

Måla trekledning i rød farge for fasader

Fasadebekledning for tilbygget og ombygde deler av hytta

Tømrer Trekonstruksjoner og montering

🧱 Tre

Tømrerarbeid for oppføring av tilbygget og ombygging av eksisterende bygg

Tak Stålplatetak

🧱 Stålplater

Nytt slakt og samlet tak med stålplatetak, vurdert i rød farge

Nytt tak på tilbygget og eksisterende bygg med stålplater

Dører Ytterdører og innerdører

Antall: 10

Dører til rom og utvendige dører i tilbygget og eksisterende bygg

Isolasjon Bygningsisolasjon

Isolasjon for vegger, tak og gulv i tilbygget og ombygde deler

Betong Grunnarbeid og fundamentering

Grunnarbeid og fundamentering for tilbygget og ombygde deler

Vinduer Fasadevindu

Antall: 7

Vinduer i ulike rom som utsiktsrom, stue/kjøkken, soverom og boder

Gulv Innvendige gulv

Gulvbelegg i stue, kjøkken, bad og øvrige rom

Plantegning

Enebolig 113.0 m²

Etasje 1 113.0 m²

Rom Areal Vinduer Dører
Utsiktsrom 101 23.0 m² 1 1
Stue/Kjøkken 102 33.9 m² 1 1
Gang 103 8.9 m² 0 2
Sov 104 14.7 m² 1 1
Bod 105 3.8 m² 1 1
Bod 106 2.8 m² 1 1
Bod 107 8.7 m² 1 1
Bad/Vask 108 6.5 m² 0 1
Bod 109 3.5 m² 1 1
Kjøll 110 0.8 m² 0 0

Hendelser

16.04.2026 Svar på mail - Gbnr 328/28 - Kråkenesvegen 72
16.04.2026 Svar på mail frå tiltakshavar
15.04.2026 Tilbakemelding om mangler - 328/28 - Kråkenesvegen 72 - Endringer, tilbygg og riving
15.04.2026 Tilsvar frå søkar på mail - gbnr 328/28 - Kråkenesvegen 72
08.04.2026 Mailkorrespondanse frå tiltakshaver
17.03.2026 Søknad om rammetillatelse gbnr 328/28