Extension UnderBehandling Fritidsbolig

Tilbygg og fasadeendring på fritidsbolig i Lervikveien 44

📍 Lervikveien 44 , 1870 ØRJE

Nøkkelinfo

Sakstype
Tilbygg
Bygningstype
Fritidsbolig
Bruksareal
28 m²
Boenheter
1
Kommune
Marker
Fylke
Østfold
Gnr / Bnr
59 / 13
Saksnummer
2025/1201
Fase
Under behandling

Om byggesaken

Ny tilbygg på totalt 28,4 m² fordelt med 25,2 m² på nordsiden og 3,2 m² på sørsiden av eksisterende fritidsbolig. Tilbygget inkluderer blant annet et nytt bad på 2,8 m² og et soverom på bakkeplan for bedre tilgjengelighet. Bygningen får nye og større vindusflater på alle fasader, inkludert oppløft med vinduer mot øst og Haldenvassdraget. Hytta har saltak med teglstein og trekledning, og består av to etasjer med flere rom som stue, kjøkken, spisestue og flere soverom. Det planlegges også fjerning av et frittliggende uthus på eiendommen for å samle bebyggelsen.

Produkter og materialer

Maling Fasademaling

🧱 Miljøtilpasset maling

Fasademaling tilpasset eksisterende trefasade for å harmonisere med omgivelsene

Maling av trefasade på tilbygg og eksisterende bygg

Tak Saltak med teglstein

🧱 Teglstein

Antall: 1

Saltak med teglstein som takmateriale på eksisterende og tilbygg

Taktekking med teglstein på saltak

Bad Bad i tilbygg

Antall: 1

Nytt bad på 2,8 m² i tilbygget

Bad med nødvendige sanitærinstallasjoner

Tømrer Tilbygg konstruksjon

🧱 Tre

Tilbygg på 28,4 m² med rom som bad, soverom, stue og kjøkken

Tømrerarbeid for oppføring av tilbygg og fasadeendring

Fasade Vinduer

🧱 Tre med 3-lags energiglass

Antall: 15

Nye og større vindusflater på alle fasader, inkludert 6 store vinduer mot øst og 4 mindre vinduer i oppløft mot Haldenvassdraget

Vinduer i tre med energiglass for fasadeendring og oppløft

Grunnarbeid Fundamentering og grunnmur

Grunnarbeid for tilbygg på ny tomt som inkluderer kjøp av naboeiendom

Fundamentering og grunnarbeid for tilbygg

Elektro Elektrisk anlegg

Elektrisk installasjon i tilbygg og fasadeendring

Elektrisk anlegg for belysning, stikkontakter og tekniske installasjoner

Fasade Dører

🧱 Tre

Antall: 3

Dører i tilbygg og eksisterende fasade, inkludert 1 dør på østfasade

Ytterdører i tre til tilbygg og eksisterende bygg

Ventilasjon Ventilasjon bad og kjøkken

Ventilasjon for nytt bad og kjøkken i tilbygg

Ventilasjonsanlegg for våtrom og kjøkken

Trapper Innvendig trapp

🧱 Tre

Antall: 1

Innvendig trapp mellom etasjer i fritidsboligen

Trapp i tre for forbindelse mellom etasjer

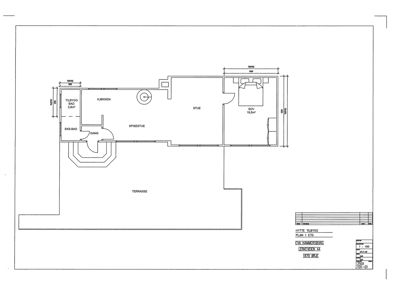
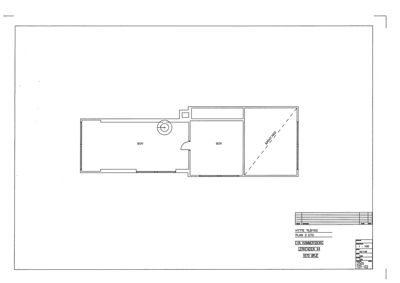
Plantegning

Hytte tilbygg 60.3 m²

Etasje 1 60.3 m²

Rom Areal Vinduer Dører
Stue 101 22.0 m² 2 1
Sov 102 19.5 m² 1 1
Kjøkken 103 10.0 m² 1 1
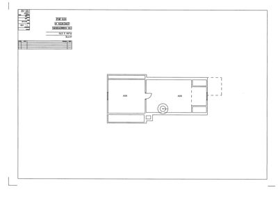
Spisestue 104 8.8 m² 0 0
Gang 105 0.0 m² 0 1
EKS-BAD 106 0.0 m² 0 1
TILBYGG BAD 107 2.8 m² 0 1

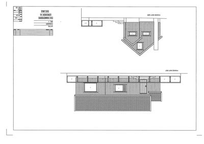
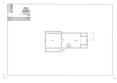
Etasje 2 0.0 m²

Rom Areal Vinduer Dører
SOV 201 0.0 m² 2 1
SOV 202 0.0 m² 2 1
Apen ned 203 0.0 m² 2 0
Sov S01 0.0 m² 1 1
Sov S02 0.0 m² 1 0

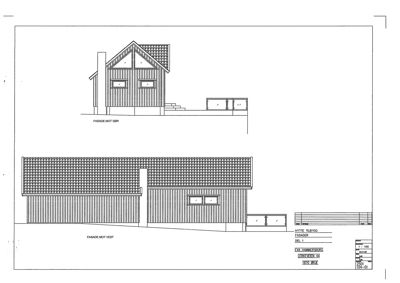
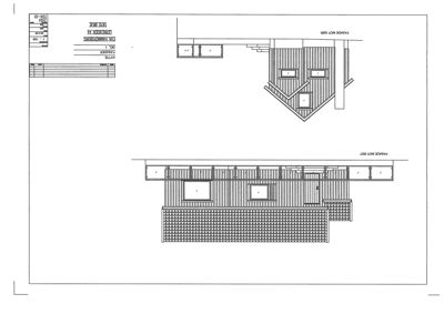
Fasader

Hytte

Nord
Materiale
Tre
Taktype
Saltak
Takmat.
Tegl
Vinduer
4
Dører
0
Synlige etasjer
2
Øst
Materiale
Tre
Taktype
Saltak
Takmat.
Tegl
Vinduer
6
Dører
1
Balkonger
1
Synlige etasjer
1
Sør
Materiale
Tre
Taktype
Saltak
Takmat.
Tegl
Vinduer
3
Dører
0
Synlige etasjer
1
Vest
Materiale
Tre
Taktype
Saltak
Takmat.
Tegl
Vinduer
2
Dører
0
Synlige etasjer
1

Hendelser

20.04.2026 Uttalelse til søknad om dispensasjon for oppføring av tilbygg til fritidsbolig og fasadeendring - Lervikveien- gnr 59 bnr 13
26.03.2026 Oversender søknad til uttalelse - Tilbygg til fritidsbolig og fasadeendringer - Lervikveien- gnr 59 bnr 13
05.12.2025 Søknad om dispensasjon - Lervikveien- gnr 59 bnr 13