Extension Ferdigattest Fritidsbolig

Ny utvendig trapp på Lille Kirkholmen 50, Kragerø

📍 Lille Kirkholmen 50 , 3783 KRAGERØ SKJÆRGÅRD

Nøkkelinfo

Sakstype
Tilbygg
Bygningstype
Fritidsbolig
Boenheter
1
Kommune
Kragerø
Fylke
Telemark
Gnr / Bnr
12 / 1237
Saksnummer
2025/4925
Fase
Ferdigattest

Om byggesaken

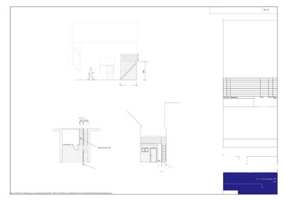
Ny utvendig trapp med bredde 72,5 cm montert direkte på vestfasaden av en fritidsbolig på Lille Kirkholmen 50. Trappen erstatter en tidligere fellestrapp fra 2009 som ble revet i 2022, og er plassert innenfor eiendommens grenser med ca. 11 meter til strandlinjen. Trappen er en enkel, lett trekonstruksjon som gir tryggere adkomst til platting og uteareal på baksiden av hytta, samt forbedret rømningsvei og adkomst for nødetater. Tiltaket er tilpasset tett hyttebebyggelse i området og har dispensasjon fra byggeforbudet i strandsonen. Trappen har to etasjer, er i tre med saltak, og har ett vindu og en dør i fasaden.

Produkter og materialer

Grunnarbeid Fundament for trapp

🧱 Ikke spesifisert

Antall: 1

Fundament for utvendig trapp montert på fasade

Grunnarbeid for oppføring av trapp

Dører Ytterdør

🧱 Ikke spesifisert

Antall: 1

En dør i fasaden ved trappen

Vinduer Fasadevindu

🧱 Tre eller annet ikke spesifisert

Antall: 1

Ett vindu i fasaden ved trappen

Fasade Trepanel

🧱 Tre

Fasade i tre, saltak

Fasade på fritidsbolig hvor trappen monteres

Tømrer Montering av trekonstruksjon

🧱 Tre

Antall: 1

Montering av utvendig trapp i tre

Tømrerarbeid for oppføring av trapp

Maling Utendørs maling/impregnering

🧱 Maling/impregnering

Overflatebehandling av treverk utendørs

Maling eller impregnering av trapp og fasade for værbestandighet

Trapper Utvendig trapp i tre

🧱 Tre

Antall: 1

Bredde 72,5 cm, montert på vestfasade, enkel og lett trekonstruksjon

Ny utvendig trapp montert på fritidsboligens vestfasade for adkomst til platting og uteareal, erstatter tidligere fellestrapp

Fasader

Hovedbygg

Ukjent
Materiale
Tre
Taktype
Saltak
Vinduer
1
Dører
1
Synlige etasjer
2

Hendelser

21.04.2026 Bekreftelse på mottatt klage på administrativt vedtak - Gbnr. 12/1237 - Lille Kirkholmen 50 - Søknad om utvendig trapp. Dispensasjon
25.03.2026 Ferdigattest - Gbnr. 12/1237 - Lille Kirkholmen 50 - Søknad om utvendig trapp. Dispensasjon
20.03.2026 Søknad om ferdigattest - Gbnr. 12/1237 - Lille Kirkholmen 50 - Søknad om utvendig trapp. Dispensasjon
03.02.2026 Tillatelse til tiltak uten ansvarsrett. Dispensasjon. Gbnr. 12/1237 - Lille Kirkholmen 50 - Søknad om utvendig trapp. Dispensasjon
03.02.2026 Fakturagrunnlag - Gbnr. 12/1237 - Lille Kirkholmen 50 - Søknad om utvendig trapp. Dispensasjon
16.01.2026 Statsforvalterens merknad til høring - Gbnr. 12/1237 - Lille Kirkholmen 50 - Søknad om utvendig trapp. Dispensasjon
13.01.2026 Anmodning om forhåndsuttalelse - Gbnr. 12/1237 - Lille Kirkholmen 50 - Søknad om utvendig trapp. Dispensasjon
08.01.2026 Trapp Waleniussen - Tomtegrense - Gbnr. 12/1237 - Lille Kirkholmen 50 - Søknad om utvendig trapp. Dispensasjon
16.12.2025 Anmodning om tilsyn og frist for innsending av byggesøknad - Gbnr. 12/1237 - Lille Kirkholmen 50 - Søknad om utvendig trapp. Dispensasjon
15.12.2025 Søknad om tillatelse uten ansvarsrett og dispensasjon - Gbnr. 12/1237 - Lille Kirkholmen 50 - Søknad om utvendig trapp. Dispensasjon
15.12.2025 Bekreftelse på mottatt søknad - Gbnr. 12/1237 - Lille Kirkholmen 50 - Søknad om utvendig trapp. Dispensasjon