Extension UnderBehandling Fritidsbolig

Tilbygg til hytte på Marivann 2, Drammen

📍 Marivann 2 , 3057 SOLBERGELVA

Nøkkelinfo

Sakstype
Tilbygg
Bygningstype
Fritidsbolig
Bruksareal
11 m²
Kommune
Drammen
Fylke
Buskerud
Gnr / Bnr
246 / 161
Saksnummer
26/03397
Fase
Under behandling

Om byggesaken

Ny tilbygg på ca. 10,77 m² BRA til eksisterende fritidsbolig på Marivann 2 i Drammen kommune. Tilbygget etableres på hyttas bakside og inneholder et nytt soverom med plass til dobbeltseng, som skal erstatte dagens soveplass i teknisk rom med litiumbatteri og elektriske installasjoner. Bygget har fallende tak med romhøyde fra ca. 235 cm til 208 cm, og gulvet senkes trinnvis for å oppnå bedre takhøyde. Tilbygget gir bedre brannsikkerhet og funksjonalitet ved å skille sovefunksjon fra teknisk rom. Bygget plasseres lavt i terrenget, skjermet av vegetasjon, og har begrenset visuell påvirkning. Det kreves dispensasjon fra kommuneplanens arealdel for overskridelse av tillatt utnyttelse og byggegrense mot vassdrag.

Arbeidsomfang

- Søknad om dispensasjon fra byggegrense mot vassdrag for å utføre tilbygg til eksisterende hytte. - Tiltaket innebærer et fysisk tilbygg til den eksisterende hyttestrukturen. - Behov for dispensasjon fra kommuneplan og byggegrensebestemmelser på grunn av nærhet til vassdrag.

Produkter og materialer

Fasade Trepanel

🧱 Tre

Tilbygg på hyttas bakside med trepanel, tilpasset eksisterende fasade

Fasademateriale for tilbygget, tilpasset eksisterende hytte

Tømrer Bygging av tilbygg i tre

🧱 Tre

Tilbygg i tre med rammeverk 2x6 og senket gulv

Tømrerarbeid for oppføring av tilbygg med rammeverk og tilpasning til eksisterende bygg

Tak Fallende tak med takvinkel ca. 5 grader

Tak med fallende høyde fra ca. 235 cm til 208 cm innvendig, takvinkel ca. 5 grader

Tak for tilbygget med fallende høyde for å oppnå tilfredsstillende romhøyde

Gulv Nedtrinn og repos

Gulvkonstruksjon senkes ca. 20 cm i tilbygget, med to nedtrinn på ca. 10 cm og et mellomliggende repos på ca. 35 cm

Gulvløsning med trinn for å oppnå bedre romhøyde og naturlig overgang til eksisterende hytte

Grunnarbeid Fundamentering med pilarer

Fundamentering med pilarer for senket gulvkonstruksjon

Grunnarbeid for tilbyggets fundamentering og senket gulv

Dører Innvendig dør til soverom

Antall: 1

Dør fra eksisterende stue til nytt soverom i tilbygget

Vinduer Ingen vinduer i tilbygget

Antall: 0

Tilbygget har ingen vinduer

Elektro Elektriske installasjoner i teknisk rom

Eksisterende teknisk rom inneholder 48 V litiumbasert batteripakke og elektriske installasjoner til solcelleanlegg

Teknisk rom med batteripakke og elektriske installasjoner som skal separeres fra soverom

VVS Ingen vannklosett eller sanitærinstallasjoner

Ingen installasjon av vannklosett eller avløp i tilbygget

Ingen nye sanitærinstallasjoner planlagt i tilbygget

Brannvern Brannsikkerhetstiltak

Tiltaket gir bedre brannsikkerhet ved å skille soveplass fra teknisk rom med batteripakke

Brannsikkerhetstiltak ved fysisk separasjon av soverom og teknisk rom

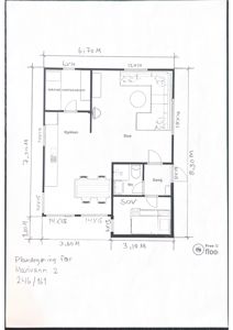
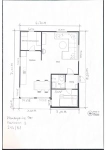
Plantegning

Enebolig 56.7 m²

Etasje 1 56.7 m²

Rom Areal Vinduer Dører
Teknisk rom/soverom 101 6.0 m² 0 1
Kjøkken 102 15.0 m² 0 1
Stue 103 24.0 m² 1 1
Gang 104 4.0 m² 1 2
Sov 105 9.7 m² 0 1
Wc 106 2.0 m² 0 1
Soverom 107 15.5 m² 0 1

Fasader

Enebolig

Nord
Materiale
Tre
Taktype
Valmtak
Vinduer
1
Dører
0
Synlige etasjer
1
Sør
Materiale
Tre
Taktype
Valmtak
Vinduer
1
Dører
1
Synlige etasjer
1
Vest
Materiale
Tre
Taktype
Flatt tak
Vinduer
2
Dører
0
Synlige etasjer
1
Øst
Materiale
Tre
Taktype
Flatt tak
Vinduer
2
Dører
0
Synlige etasjer
1

Tilbygg

Sør
Høyde
2.4 m
Vinduer
0
Dører
0
Synlige etasjer
1

Hendelser

08.04.2026 Marivann 2, anmodning om ny uttalelse fra Statsforvalteren i Østfold, Buskerud, Oslo og Akershus
08.04.2026 Marivann 2, anmodning om ny uttalelse fra Buskerud fylkeskommune
07.04.2026 Marivann 2, søknad om dispensasjon fra byggegrense mot vassdrag søknad
27.03.2026 Marivann 2, tilbakemelding angående dispensasjon fra vassdrag dispensasjon
27.03.2026 Marivann 2 – Ettersending av opplysninger / avklaring om dispensasjon og nabovarsel dispensasjon
27.03.2026 Marivann 2, tilbakemelding
26.03.2026 Marivann 2, Ettersending av opplysninger
26.03.2026 Marivann 2, vi trenger flere opplysninger for å behandle søknaden din søknad
20.03.2026 Marivann 2 – revidert søknad søknad
10.03.2026 Marivann 2, fristutsettelse til 24.03.2026
10.03.2026 Marivann 2, anmodning om fristutsettelse til 24.03.2026
10.03.2026 Marivann 2, vi vurderer å avslå søknaden din søknad
06.03.2026 Marivann 2, Tilbygg, dispensasjon fra kommuneplan, uttalelse dispensasjon
04.03.2026 Marivann 2, Uttalelse, dispensasjon - tilbygg til hytte dispensasjon
26.02.2026 Marivann 2, vi trenger flere opplysninger for å behandle søknaden din søknad
06.02.2026 Marivann 2, anmodning om uttalelse fra Statsforvalteren i Østfold, Buskerud, Oslo og Akershus
06.02.2026 Marivann 2, anmodning om uttalelse fra Buskerud fylkeskommune
03.02.2026 Marivann 2, Søknad om tillatelse til tiltak uten ansvarsrett med vedlegg søknad