Extension UnderBehandling Fritidsbolig

Tilbygg og VA-anlegg til hytte på Nesveien 632, Moss

📍 Nesveien 632 , 1514 MOSS

Nøkkelinfo

Sakstype
Tilbygg
Bygningstype
Fritidsbolig
Bruksareal
98 m²
Boenheter
1
Kommune
Moss
Fylke
Østfold
Gnr / Bnr
1 / 3050
Saksnummer
2025/1869
Fase
Under behandling

Om byggesaken

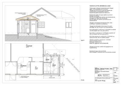
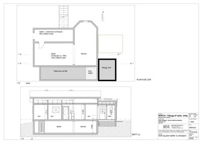
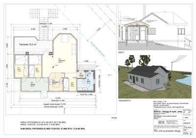
Prosjektet omfatter et tilbygg på ca. 10,4 m² bebygd areal (7,8 m² bruksareal) til en eksisterende fritidsbolig fra 1947 på Nesveien 632, Moss. Tilbygget plasseres på hyttas nordøstfasade og inneholder bad med toalett, dusj, servant, samt en liten gang med utgang til terreng. Taket forlenges og bygges som saltak med ulik takvinkel, tilpasset eksisterende bygg. Det etableres også et privat VA-anlegg bestående av en tett tank for svartvann, et nedgravd gråvannsrenseanlegg (Odin GVR-1) med biologisk rensetrinn, pumpekum, alarm og et oppbygd jordhaugsfilter for etterpolering før utslipp til stedlige masser. Anlegget er dimensjonert for 5 personer og har serviceavtale. Eiendommen ligger i LNF-område og innenfor 100-metersbeltet langs sjø, med restriktive byggegrenser. Søknaden har vært gjenstand for dispensasjonsbehandling, hvor tilbygg er trukket tilbake etter varslet avslag, mens VA-anlegget er godkjent med utslippstillatelse. Fundamentering skjer på fjell, og tiltaket vurderes ikke å medføre vesentlige ulemper for natur, landskap eller allmenne interesser.

Produkter og materialer

Isolasjon Yttervegger

🧱 Glava Proff 34

200 mm isolasjon i yttervegger, u-verdi 0,22 W/m2K

Isolasjon i yttervegger tilbygg

Tak Saltak med kaldt loft

🧱 Tre, isolasjon

Luftet tak med kaldt loft, isolasjon 250 mm, u-verdi 0,18 W/m2K

Nytt tak på tilbygg

Dører Ytterdør

🧱 Tre

Antall: 1

Ytterdør bredde 90 cm med utgang til terreng fra gang i tilbygg

Dør til utgang fra tilbygg

Elektro Alarm og pumpekontroll

Alarm med lyd- og/eller lysvarsel for VA-anlegg

Elektronisk overvåkning av VA-anlegg

Bad Våtromsinnredning

Bad med toalett, dusj, servant, veggventil med avtrekksvifte

Innredning og ventilasjon for bad i tilbygg

Vinduer Fasadevindu

🧱 Tre/Aluminium

Antall: 3

Vinduer i fasade nordøst, tilpasset eksisterende bygg

Nye vinduer til tilbygget

VVS Privat avløpsanlegg

Tett tank for svartvann, Odin GVR-1 gråvannsrenseanlegg med biofilter, pumpekum, alarm, jordhaugsfilter 1x10 m infiltrasjonsfilter

Privat avløpsanlegg med kildeseparering og infiltrasjonsfilter

Grunnarbeid Graving og fundamentering

Fundamentering på fjell, graving for VA-anlegg og infiltrasjonsfilter, terrengtilpasning

Grunnarbeid for tilbygg og VA-anlegg

Gulv Isolasjon og betonggulv

🧱 Trykkfast isolasjon, betong

Gulv på grunn med 200 mm trykkfast isolasjon og støpt betonggulv

Isolert gulv i tilbygg

Serviceavtale Årlig service

Antall: 1

Årlig servicebesøk av Odin Miljø AS for gråvannsanlegg

Serviceavtale for VA-anlegg

Fasade Trepanel kledning

🧱 Tre

Tilbygg tilpasset eksisterende hytte med trepanel, saltak med takvinkel 16-26 grader

Kledning og taktekking for tilbygg til hytte

VVS Teknisk rom i kjeller

Teknisk rom i kjeller for bereder, trykktank og tekniske installasjoner

Rom for tekniske installasjoner til VA-anlegg

Plantegning

Enebolig 97.8 m²

Etasje 0 0.0 m²

Rom Areal Vinduer Dører
Kjeller 001 0.0 m² 0 0
Teknisk 002 0.0 m² 0 0
Kryp-kjeller 003 0.0 m² 0 0
Tilbygg, bad 004 0.0 m² 0 0
kjeller kjeller 8.8 m² 0 0

Etasje 1 97.8 m²

Rom Areal Vinduer Dører
Sov 101 7.7 m² 0 1
Sov 102 7.4 m² 0 1
Gang 103 8.8 m² 0 2
Opphold 104 29.0 m² 2 1
Kjøkken 105 6.5 m² 0 1
Sov 106 4.3 m² 0 1
gang 109 1.3 m² 0 1
BAD 106 6.3 m² 0 1
Terrasse Terrasse 15.2 m² 0 0
gang 107 1.9 m² 0 1
Sov 108 5.5 m² 1 1

Fasader

Enebolig

Nordøst
Materiale
Tre
Taktype
Saltak
Vinduer
3
Dører
0
Synlige etasjer
1
Sørvest
Materiale
Tre
Taktype
Saltak
Vinduer
3
Dører
0
Synlige etasjer
2
Sørøst
Materiale
Tre
Taktype
Flatt tak
Vinduer
3
Dører
1
Synlige etasjer
1
Nordvest
Materiale
Tre
Taktype
Saltak
Vinduer
6
Dører
1
Balkonger
1
Synlige etasjer
2

Hendelser

16.04.2026 Nesveien 632 - 1/3050 - ett-trinns søknad - etablering av / opppgradert privat avløpsanlegg
14.04.2026 Nesveien 632 - 1/3050 - svar på delvis trekking av søknad - tilbygg og VA-anlegg
04.03.2026 Nesveien 632 - 1/3050 - tilbakemelding etter varsel om avslag - tilbygg
26.02.2026 Nesveien 632 - 1/3050 - anmodning om omprosjektering - varsel om avslag - tilbygg
14.01.2026 Nesveien 632 - 1/3050 - uttalelse - tilbygg og VA-anlegg
13.01.2026 Nesveien 632 - 1/3050 - uttalelse til søknad om dispensasjon for oppføring av tilbygg og VA anlegg til hytte
19.12.2025 Nesveien 632 - 1/3050 - oversender søknad til uttalelse - tilbygg og VA-anlegg
24.11.2025 Nesveien 632 - 1/3050 - supplering av søknad
31.10.2025 Nesveien 632 - 1/3050 - foreløpig svar på søknad - fortsatt mangler - tilbygg og VA-anlegg
06.08.2025 Nesveien 632 - 1/3050 - tilbakemelding til saksbehandler - tilbygg og VA-anlegg
28.07.2025 Nesveien 632 - 1/3050 - foreløpig svar på søknad - tilbygg og VA-anlegg
28.07.2025 Nesveien 632 - 1/3050 - svar på henvendelse - tilbygg og VA-anlegg
25.07.2025 Nesveien 632 - 1/3050 - tilbakemelding - tilbygg
30.06.2025 Nesveien 632 - 1/3050 - ett-trinnssøknad - tilbygg
25.03.2025 Nesveien 632 - 1/3050 - referat fra forhåndskonferanse - tilbygg
21.03.2025 Nesveien 632 - 1/3050 - innkalling til forhåndskonferanse - tilbygg
05.03.2025 Nesveien 632 - 1/3050 - forhåndskonferanse - tilbakemelding
20.02.2025 Nesveien 632 - 1/3050 - tilleggsinformasjon til anmodning om forhåndskonferanse
19.02.2025 Nesveien 632 - 1/3050 - forhåndskonferanse - bestilling 07.03.2025