Extension UnderBehandling Fritidsbolig

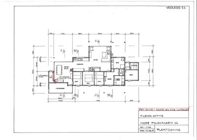
Tilbygg med pipe og ildsted på fritidsbolig i Indre Foldhaugen 66, Aure

📍 Nils Bakkes vei 1 , 6507 KRISTIANSUND N

Nøkkelinfo

Sakstype
Tilbygg
Bygningstype
Fritidsbolig
Kommune
Kristiansund
Fylke
Møre og Romsdal
Gnr / Bnr
82 / 16
Saksnummer
20/04563
Fase
Under behandling

Om byggesaken

Tilbygg på fritidsbolig med montering av pipe og Scan 67 1600 vedovn, utført med Tolmer Vision ventilert stålskorstein. Bygget har stående trekledning og pipe med godkjent stålpipesystem. I tillegg gjelder saken detaljregulering for et nytt leilighetsbygg i Aure sentrum på Aurdalsvegen 32, med inntil 8 leiligheter, parkeringskjeller, heis, universell utforming, uteoppholdsarealer, lekeplasser, støyskjerming og tilknytning til kommunalt vann- og avløpsnett. Leilighetsbygget har saltak og pulttak, og fasader i jordfarger med trepanel. Det er planlagt godkjente tekniske løsninger for brannvern, slokkevann og adkomst. Det foreligger godkjente ansvarsretter for prosjektering og utførelse av pipe, ildsted og øvrige bygningsarbeider.

Produkter og materialer

Maling Innvendig maling og overflatebehandling

Standard innvendige overflater i leiligheter og fellesarealer

Innvendige overflater i leilighetsbygg og fritidsbolig

Vinduer Fasadevindu

🧱 Tre/aluminium eller tilsvarende

3-lags energiglass, vendt mot stille side for å oppfylle støykrav

Vinduer i leilighetsbygg med god isolasjon og støybeskyttelse

Trapper Innvendig trapp og heis

Antall: 1

Heis fra parkeringskjeller til leiligheter, trapp i fellesareal

Vertikal kommunikasjon i leilighetsbygg

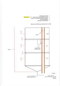
Ildsted Vedovn Scan 67 1600

🧱 Støpejern, rustfritt stål, keramisk glass

Antall: 1

Effekt 5 kW, CE-merket, med elektronisk luftregulering Zensoric, selvlukkende dør, friskluftstilførsel Ø100 mm

Vedovn med høy virkningsgrad og miljøvennlig forbrenning, montert i tilbygget fritidsbolig

Terrasse Uteoppholdsareal og lekeplasser

Opparbeidede uteområder med benker, lekeapparater, universell utforming

Felles utearealer for leilighetsbyggets beboere

Rekkverk Sikkerhetsrekkverk på balkonger og trapper

I henhold til gjeldende forskrifter for sikkerhet

Rekkverk for balkonger og trapper i leilighetsbygg

Pipe Tolmer Vision ventilert stålskorstein

🧱 Rustfritt stål, isolasjon, galvanisert og pulverlakkert stål

Antall: 1

EN 1856-1:2009, T450-N1-D-V2-L99050-G50, dimensjon Ø125 mm innvendig, Ø220 mm utvendig

Ventilert stålskorstein for tilkobling til vedovn, montert som del av tilbygg på fritidsbolig

Elektro Elektriske installasjoner

Elektrisk oppvarming, belysning, lading av elbil på parkeringsplasser

Elektriske anlegg i leilighetsbygg og fritidsbolig

Dører Ytterdører og balkongdører

🧱 Tre eller aluminium

Universelt utformet, tilpasset leilighetsbygg

Dører til leiligheter og fellesarealer

Betong Parkeringskjeller og fundamenter

🧱 Lavkarbonbetong klasse ekstrem

Bruksareal 422 m² underetasje, bærekonstruksjon for leilighetsbygg

Betongkonstruksjoner for parkeringskjeller og fundamentering av leilighetsbygg

VVS Sanitærinstallasjoner

Tilknytning til kommunalt vann- og avløpsnett, inkl. overvannshåndtering

Vann- og avløpsinstallasjoner for leilighetsbygg og fritidsbolig

Grunnarbeid Omlegging av overvannsledning

Overvannsledning må flyttes for å unngå konflikt med bygg

Omlegging av eksisterende kommunal overvannsledning i forbindelse med opparbeidelse av tomt for leilighetsbygg

Fasade Trekledning, stående panel

🧱 Tre

Jordfarger, i tråd med illustrasjonsplan

Fasade på tilbygget fritidsbolig med stående trekledning

Plantegning

Leilighetsbygg 1,327.0 m²

Etasje 0 422.0 m²

Rom Areal Vinduer Dører
Bod 2 001 0.0 m² 0 0
Parkering 002 0.0 m² 0 0
Bod 6 003 0.0 m² 0 0

Etasje 1 452.5 m²

Rom Areal Vinduer Dører
Leilighet 1 101 0.0 m² 0 0
Leilighet 2 102 0.0 m² 0 0
Leilighet 3 103 0.0 m² 0 0
Leilighet 4 104 0.0 m² 0 0
Gang 105 2.3 m² 0 2
Sov-1 106 10.2 m² 1 1
Sov-2 107 9.2 m² 1 1
Sov 108 10.0 m² 1 1
Gang 109 8.0 m² 0 4
Vaske-rom 110 4.0 m² 0 1
Bad 111 6.0 m² 0 1
Badstu 112 4.0 m² 0 1
Bod 113 6.0 m² 0 1

Etasje 2 452.5 m²

Rom Areal Vinduer Dører
Leilighet 5 201 0.0 m² 0 0
Leilighet 6 202 0.0 m² 0 0
Leilighet 7 203 0.0 m² 0 0
Leilighet 8 204 0.0 m² 0 0
Bad 205 4.7 m² 0 1
Bod-Tek 206 8.8 m² 0 1

Fasader

Naust

Nord
Materiale
Tre
Taktype
Pulttak
Takmat.
Tegl
Høyde
5.3 m
Vinduer
0
Dører
0
Synlige etasjer
1
Øst
Materiale
Tre
Taktype
Saltak
Høyde
5.3 m
Mønehøyde
5.3 m
Vinduer
0
Dører
0
Synlige etasjer
1
Sør
Materiale
Tre
Taktype
Flatt tak
Takmat.
Tegl
Høyde
2.7 m
Vinduer
1
Dører
1
Synlige etasjer
1
Vest
Materiale
Tre
Taktype
Valmtak
Høyde
2.7 m
Mønehøyde
4.7 m
Vinduer
0
Dører
1
Synlige etasjer
1

Hendelser

13.04.2026 20/04563-212 Avslag på søknad om bruksendring for lagerbygg med to leiligheter - Gnr 208 bnr 2
19.02.2026 20/04563-211 Vedr. PLAN-22-00280-52 - Melding om vedtak - detaljregulering Aurdalsvegen 32 – sluttbehandling/egengodkjenning
12.01.2026 20/04563-210 Vedr. BYGG-26-00006-2 - Vedtak piperehabilitering Gnr 205 Bnr 3, John Magne Nordheim,
15.12.2025 20/04563-208 Vedr. BYGG-24-00095-13 - Vedtak midlertidig brukstillatelse - fritidsbolig, Gnr 216 bnr 309 Bjørge Thor Helge
15.12.2025 20/04563-209 Vedr. BYGG-24-00060-23 - Vedtak midlertidig brukstillatelse, tomannsbolig, Gnr 216 bnr 35 F&A Eiendom AS
12.12.2025 20/04563-207 Vedr. BYGG-22-00201-11 - Vedtak endringssøknad - tilbygg fritidsbolig, Gnr 82 bnr 16 Bakken Kjell Bjørnar - Kopi av brev til tiltakshaver
05.12.2025 20/04563-206 Vedr. BYGG-21-00248-28 - Vedtak ferdigattest - fritidsbolig og naust, Gnr 29 bnr 2 fnr 1 Hiltula Janiche
26.11.2025 20/04563-205 Vedr. BYGG-25-00305-2 - Vedtak - Rehabilitering av pipe, Gnr 222 bnr 1
25.11.2025 20/04563-204 Vedr. BYGG-25-00263-9 - Vedtak ferdigattest - ny skorstein, Gnr 32 bnr 12
20.11.2025 20/04563-201 20/04563-200 - Vedr. BYGG-21-00016-47 - Gnr 208 bnr 2 Tømmervåg - oversendelse av vedtak