Extension Ferdigattest Fritidsbolig

Tilbygg og septiktank til fritidsbolig på Njárgamáttat 147

📍 Njárgamáttat 147 , 9713 RUSSENES

Nøkkelinfo

Sakstype
Tilbygg
Bygningstype
Fritidsbolig
Bruksareal
88 m²
Boenheter
1
Kommune
Porsanger - Porsángu - Porsanki
Fylke
Finnmark - Finnmárku - Finmarkku
Gnr / Bnr
4 / 99
Saksnummer
2025/5028
Fase
Ferdigattest

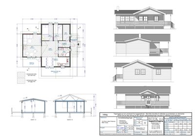
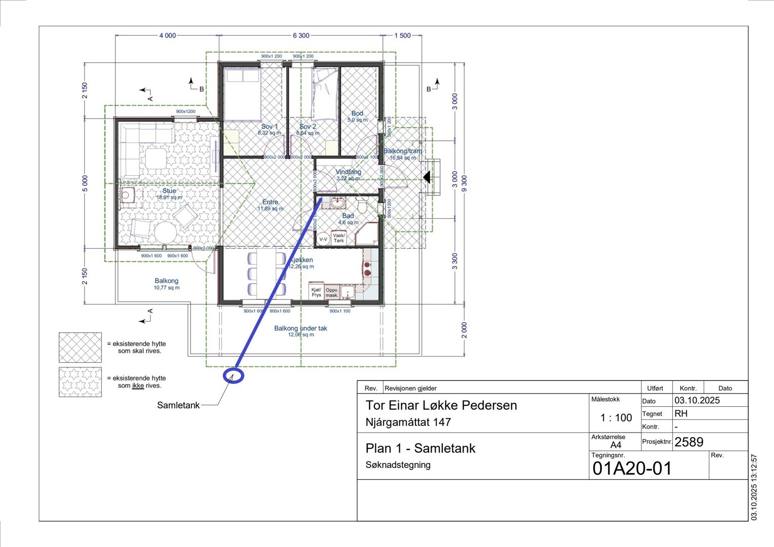
Om byggesaken

Ny tett septiktank på 2 m³ (Ø120 x 191 cm) installert i tilknytning til eksisterende fritidsbolig på Njárgamáttat 147. Tilbygget omfatter et isolert bygg med fundamentering, ferdigstilt høsten 2025, inkludert sanitærinstallasjoner for avløp og tilkobling til septiktank. Bygget har et samlet areal på ca. 87,9 m² tilbygg, med rom som bad, bod, og balkonger, samt tekniske installasjoner utført av Rør Team AS og elektroarbeid av Elektro Team AS. Prosjektet inkluderer også rivning av eksisterende tilbygg og opparbeidelse av grunnarbeid med drenering og singel. Ferdigattest er utstedt, og prosjektet er fullført i henhold til gjeldende regelverk.

Produkter og materialer

Grunnarbeid Drenering og singel

🧱 Singel, drensrør, fiberduk

Drenering med singel og fiberduk rundt tilbygg og septiktank

Grunnarbeid med drenering og singel for tilbygg og septiktank

Tømrer Bygging av tilbygg

Oppføring av isolert tilbygg med fundamentering og lukket bygg

Tømrerarbeid for tilbyggets konstruksjon og isolasjon

Tak Taktekking

Tak med isolasjon og taktekking

Taktekking og isolasjon for tilbygg

Fasade Kledning

Isolert veggkonstruksjon med utvendig kledning

Yttervegger med isolasjon og kledning for tilbygg

Riving Riving av eksisterende tilbygg

Riving av eksisterende tilbygg utført av Johan Isaksen AS

Riving og bortkjøring av eksisterende tilbygg før nybygg

Elektro El-installasjoner

El-installasjoner i tilbygg utført av Elektro Team AS

Elektriske installasjoner for tilbygg

Mur Fundamentering

Fundamentering for tilbygg og samletank

Grunnarbeid og fundamentering for tilbygg og septiktank

Vinduer Fasadevindu

Antall: 5

Fasadevindu i tilbyggets rom (bad, bod, vindfang, balkong/trapp)

Dører Ytterdører og balkongdører

Antall: 7

Ytterdører til rom og balkonger i tilbygg

VVS Sanitærinstallasjoner

Montering av avløp og tilkobling til tett septiktank 2 m³

Sanitærinstallasjoner for avløp og septiktank

Betong Grunnmur

Grunnmur for tilbygg

Betongmur for tilbyggets fundamentering

Plantegning

Enebolig 120.5 m²

Etasje 1 120.5 m²

Rom Areal Vinduer Dører
Stue 101 18.9 m² 1 1
Kjøkken 102 12.3 m² 1 1
Entre 103 11.9 m² 0 2
Sov 1 104 8.3 m² 1 1
Sov 2 105 6.5 m² 1 1
Bad 106 4.6 m² 0 1
Vindfang 107 3.3 m² 1 1
Bod 108 5.0 m² 1 1
Balkong 109 10.8 m² 0 1
Balkong under tak 110 12.1 m² 0 1
Balkong/trapp 111 16.5 m² 1 1

Hendelser

14.04.2026 Njárgamáttat 147 Søknad om ferdigattest 4/99
05.01.2026 Ferdigattest - tilbygg til fritidsbolig - Gnr/bnr 4/99 - Tillatelse i ett trinn - Bygningstekniske installasjoner - Njárgamáttat 147- tiltakshaver Tor Einar Løkke Pedersen
02.01.2026 Gnr/bnr 4/99 - Søknad om ferdigattest - Njárgamáttat 147- tiltakshaver Tor Einar Løkke Pedersen
31.10.2025 Tillatelse til tiltak - Gnr/bnr 4/99 - Tillatelse i ett trinn - Bygningstekniske installasjoner - Ny anlegg - Njárgamáttat 147- tiltakshaver Tor Einar Løkke Pedersen
15.10.2025 Njárgamáttat 147 Søknad om tillatelse i ett trinn 4/99