Extension UnderBehandling Fritidsbolig

Tilbygg på fritidsbolig i Nord-Markane 481, Stryn

📍 Nord-Markane 481 , 6783 STRYN

Nøkkelinfo

Sakstype
Tilbygg
Bygningstype
Fritidsbolig
Bruksareal
57 m²
Boenheter
1
Kommune
Stryn
Fylke
Vestland
Gnr / Bnr
53 / 6
Saksnummer
2025/1193
Fase
Under behandling

Om byggesaken

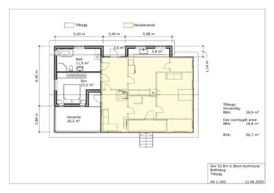
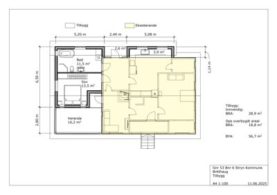
Ny tilbygg på 56,7 m² BYA til eksisterende fritidsbolig på Nord-Markane 481 i Stryn. Tilbygget inkluderer 28,9 m² innvendig BRA med bad, soverom, gang og kjøkken, samt 18,8 m² åpent overbygget areal og veranda på 16,2 m². Bygget får trekledning, saltak og nye vinduer i tre. Det etableres nytt lukket infiltrasjonsanlegg med septiktank og pumpestasjon for avløp, samt oppgradert vann- og avløpsinstallasjon. Eksisterende kjøkken oppgraderes, og stue omgjøres til gang/inngangsparti. Grunnarbeid, betong og tømrerarbeid utføres hovedsakelig av tiltakshaver selv med faglig bistand. Prosjektet omfatter også dispensasjon fra LNF-formål og søknad om utslippstillatelse.

Produkter og materialer

Dører Ytterdører

🧱 Tre

Antall: 5

Ytterdører i tre, inkludert inngangsdør og verandadør

Dører til inngang, veranda og innvendige rom i tilbygget

Kjøkken Kjøkkeninnredning

Antall: 1

Oppgradert kjøkken i eksisterende bygg

Oppgradering av eksisterende kjøkken med nye installasjoner

Grunnarbeid Graving og fundamentering

Graving og betongarbeid for fundament og grunnmur

Grunnarbeid for tilbygget utført av tiltakshaver med fagbistand

VVS Infiltrasjonsanlegg og septiktank

Antall: 1

4 m3 septiktank med pumpestasjon og infiltrasjonsgrøft på 50 m²

Nytt lukket infiltrasjonsanlegg med septiktank og pumpestasjon for avløp

Trapper Innvendig trapp

Antall: 1

Innvendig trapp i tilbygget

Trapp i tilbygget for etasjeadkomst

Vinduer Fasadevindu

🧱 Tre

Antall: 14

Nye vinduer i tre i tilbygget og eksisterende bygg

Vinduer i tilbygget og eksisterende bygg, inkludert mål fra tegninger

Tømrer Tømrerarbeid

🧱 Tre

Tømrerarbeid for oppføring av tilbygget

Tømrerarbeid utført av tiltakshaver og fagpersoner

Maling Innvendig og utvendig maling

Maling av fasade og innvendige flater

Maling av treflater utvendig og innvendig i tilbygget

Betong Fundament og grunnmur

🧱 Betong

Betongarbeid for fundament og grunnmur

Betongarbeid i grunnen for tilbygget

Bad Baderomsinnredning

Antall: 1

Nytt bad på 11,5 m² med sanitærinstallasjoner

Bad med innlagt vann og avløp, sanitærutstyr og fliser

Elektro Elektrisk installasjon

Elektriske installasjoner i tilbygget og eksisterende bygg

Elektrisk anlegg for belysning og strøm i tilbygget

Terrasse Veranda

🧱 Tre

Antall: 1

Veranda på 16,2 m² med tilhørende dør og vindu

Ny veranda som del av tilbygget

VVS Sanitærinstallasjoner

Innlagt vann og avløp, inkl. nytt bad og kjøkken

Vann- og avløpsinstallasjoner i tilbygget og eksisterende bygg

Gulv Innvendige gulv

Gulv i tilbygget og eksisterende bygg, type ikke spesifisert

Innvendige gulv i tilbygget og oppgradert del av eksisterende bygg

Fasade Trekledning

🧱 Tre

Ny kledning med etterisolering

Fasade med trekledning og etterisolering på tilbygget

Tak Saltak

🧱 Tre med taktekking

Saltak på tilbygget

Nytt saltak på tilbygget i tre

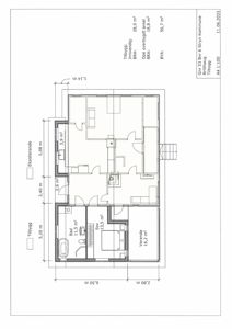
Plantegning

Enebolig 56.7 m²

Etasje 1 56.7 m²

Rom Areal Vinduer Dører
Veranda 101 16.2 m² 1 1
Sov 102 13.5 m² 0 1
Bad 103 11.5 m² 0 1
Gang 104 2.6 m² 0 1
Kjøkken 105 18.8 m² 1 1

Fasader

Enebolig

Aust
Materiale
Tre
Taktype
Saltak
Vinduer
5
Dører
0
Synlige etasjer
2
Sør
Materiale
Tre
Taktype
Saltak
Vinduer
4
Dører
1
Balkonger
1
Synlige etasjer
2
Nord
Materiale
Tre
Taktype
Saltak
Vinduer
4
Dører
1
Synlige etasjer
2
Vest
Materiale
Tre
Taktype
Saltak
Vinduer
4
Dører
1
Balkonger
1
Synlige etasjer
2

Hendelser

22.04.2026 Gbnr. 53/6 - oppdatert gjennomføringsplan
17.04.2026 Vedkomande innsendt gjennomføringsplan og ansvarserklæringer
01.04.2026 Gbnr. 53/6 - erklæring om ansvarsrett og gjennomføringsplan
30.03.2026 Vedkomande ettersendt dokumentasjon
24.03.2026 Gbnr. 53/6 - dokumentasjon
10.03.2026 Gbnr. 53/6 - søknad om dispensasjon frå LNF-føremål
23.01.2026 Grunneigaravtale
03.12.2025 Gbnr. 53/6 - søknad om utsleppsløyve
25.09.2025 Vedkomande søknad om utsleppsløyve på gbnr. 53/6 på Fen
09.09.2025 Gbnr. 53/6 - søknad om utsleppsløyve
21.07.2025 Vedkomande søknad om tilbygg på fritidsbustad gbnr. 53/6
16.07.2025 Planteikning med eksisterande areal
19.06.2025 Vedkommande søknad om løyve til tiltak gbnr. 53/6
17.06.2025 Gbnr. 53/6 - søknad om løyve til tiltak