Extension Soeknad Fritidsbolig

Tilbygg, fasadeendring og VA-tilknytning på fritidsbolig i Norderhaugveien 76

📍 Norderhaugveien 76 , 1684 VESTERØY

Nøkkelinfo

Sakstype
Tilbygg
Bygningstype
Fritidsbolig
Bruksareal
53 m²
Boenheter
1
Kommune
Hvaler
Fylke
Østfold
Gnr / Bnr
53 / 129
Saksnummer
2023/1734
Fase
Søknad

Om byggesaken

Ny tilbygg på 7 m² til eksisterende fritidsbolig på 45,6 m², med samme materialbruk, takform og arkitektoniske uttrykk som eksisterende bygg. Tilbygget inneholder bad og muliggjør innlegging av vann og avløp, samtidig som eksisterende utedo på 2 m² rives. Det etableres ny pipe og ildsted, og det gjennomføres mindre fasadeendringer med innsetting av nye vinduer, tilpasset eksisterende uttrykk. Totalt bruksareal etter tiltaket blir 52,6 m². Det legges ny VA-ledning med preisolerte rør og varmekabel, med terrengtilpasset grøft og pumpestasjon for avløp. Fasaden er i tre med rød farge, saltak og flatt tak på tilbygget. Tiltaket er innenfor kommuneplanens rammer og innebærer en miljøforbedring ved tilknytning til offentlig vann og avløp.

Produkter og materialer

Fasade Dører

🧱 Tre med hvite rammer

Antall: 0

Dører justert til mer tradisjonelt uttrykk med hvite rammer

Dører i tilbygget og fasadeendringer

Gulv Plating

🧱 Tre

Antall: 2

Eksisterende plating 9,5 m² og ny plating 9,4 m² mot sør

Utendørs platting mot sør

Tak Saltak og flatt tak

🧱 Tre og taktekking som eksisterende

Saltak på eksisterende bygg, flatt tak på tilbygget, samme takform som eksisterende

Tak på eksisterende hytte og tilbygget

Grunnarbeid Terrengarbeid og grøfting

Terreng tilbakeføres med stedegne masser, minimal terrenginngrep, grøft legges med massehåndtering

Grøfting for VA-ledninger med terrengtilpasning og massehåndtering

Pipe Stålpipe

🧱 Combi Stålpipe system

Antall: 1

Ny pipe og ildsted med Combi stålpipe system

Pipe og ildsted tilknyttet tilbygget

VVS Vann- og avløpsledninger

🧱 PE100 PN16 preisolert rør med varmekabel

Grunn grøft med VL ø32mm og SPP ø40mm SDR11 PE100 PN16 preisolert med varmekabel, pumpestasjon for avløp

Privat stikkledning for vann og spillvann med nødvendige terrengarbeider og teknisk utstyr

Elektro Varmekabel

Varmekabel på preisolerte VA-rør

Varmekabel for frostbeskyttelse av VA-ledninger

Tømrer Trekonstruksjoner

🧱 Tre

Tømrerarbeid for tilbygget og montering av trekonstruksjoner

Bygging av tilbygget i tre med tilpasset arkitektur

Fasade Vinduer

🧱 Tre med hvite rammer

Antall: 6

Vinduer tilpasset eksisterende uttrykk, samlet glassareal under 50% av fasadeareal, hvite rammer

Nye vinduer i tilbygget og fasadeendringer, tilpasset eksisterende hytte

Bad Innvendig bad

Antall: 1

Nytt bad på 4 m² i tilbygget

Bad med sanitærinstallasjoner i tilbygget

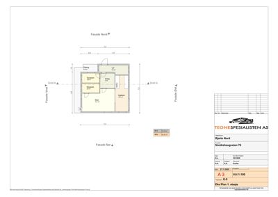
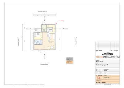
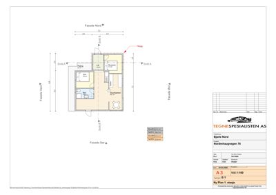
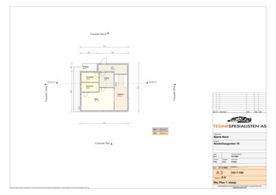
Plantegning

Enebolig 58.2 m²

Etasje 1 58.2 m²

Rom Areal Vinduer Dører
Stue/Kjøkken 101 28.1 m² 1 1
Soverom 102 6.5 m² 1 1
Soverom 103 7.4 m² 1 1
Bad 104 4.0 m² 0 1
Vaskerom 105 3.9 m² 0 1
Plating 106 9.5 m² 0 0
Plating 107 9.5 m² 0 0
Ny.Plating 108 9.4 m² 0 0

Fasader

Enebolig

Øst
Materiale
Tre
Taktype
Flatt tak
Vinduer
6
Dører
0
Synlige etasjer
1
Sør
Materiale
Tre
Taktype
Saltak
Vinduer
3
Dører
1
Synlige etasjer
1
Vest
Materiale
Tre
Taktype
Saltak
Vinduer
2
Dører
0
Synlige etasjer
1
Nord
Materiale
Tre
Taktype
Saltak
Vinduer
2
Dører
1
Synlige etasjer
1

Eksisterende fritidsbolig

Ukjent
Materiale
Tre
Taktype
Flatt tak
Vinduer
4
Dører
1
Synlige etasjer
1

Hendelser

15.04.2026 Oppdaterte tegninger - bad, VA, fasadeendring, pipe og ildsted - 53/129 - Norderhaugveien 76
15.04.2026 Uttalelse - høring - dispensasjon - bad - fasadeendring - ildsted - 53/129 - Norderhaugveien 76
01.04.2026 Uttalelse - søknad om dispensasjon for oppføring av tilbygg til hytte - fasadeendring og fremføring av vann og avløp - bad, VA, fasadeendring, pipe og ildsted - 53/129 - Norderhaugveien 76
30.03.2026 Supplering av søknad - bad, VA, fasadeendring, pipe og ildsted - 53/129 - Norderhaugveien 76
26.03.2026 Høring - dispensasjon og tillatelse - bad, VA, fasadeendring, pipe og ildsted - 53/129 - Norderhaugveien 76
26.03.2026 Supplering av søknad - bad, VA, fasadeendring, pipe og ildsted - 53/129 - Norderhaugveien 76, Vesterøy
26.03.2026 Foreløpig tilbakemelding - 53/129 - Norderhaugveien 76
06.03.2026 Søknad ett-trinn - bad, VA, fasadeendring, pipe og ildsted - 53/129 - Norderhaugveien 76