Extension UnderBehandling Fritidsbolig

Tilbygg og lager til hytte på Oldedalsvegen 1296, Olden

📍 Oldedalsvegen 1283 , 6788 OLDEN

Nøkkelinfo

Sakstype
Tilbygg
Bygningstype
Fritidsbolig
Bruksareal
16 m²
Kommune
Stryn
Fylke
Vestland
Gnr / Bnr
108 / 1
Saksnummer
2025/2236
Fase
Under behandling

Om byggesaken

Ny tilbygg på 6 m² til WC/bad og et 10 m² overbygg til terrasse bygges på eksisterende campinghytter på Oldedalsvegen 1296. Hyttene er i tre med pult- og valmtak tekket med teglstein. Tilbygget inkluderer et lite toalettrom og vindfang, med samlet areal på ca. 25 m² for hyttene. Bygget har tre fasader i treverk med pult- og valmtak. Grunnundersøkelser viser stabile grunnforhold uten fare for kvikkleireskred. Det er søkt om dispensasjon for bygging nær fylkesveg, og det foreligger dialog med kommunen om dette. Vannforsyning er privat, og avløpsanlegg er godkjent og installert, med tilkobling til hyttene planlagt.

Produkter og materialer

Isolasjon Vegger og tak

Isolasjon i vegger og tak for tilbygget

Grunnarbeid Fundamentering

Fundamentering for tilbygg og terrasseoverbygg

Grunnarbeid og fundamentering for tilbygget og terrasseoverbygg

VVS Sanitæranlegg

Tilkobling til privat vann og godkjent privat avløpsanlegg, installasjon av toalett og bad

VVS-installasjoner for toalett og bad i tilbygget

Vinduer Fasadevindu

Antall: 2

Vinduer i fasade nord og øst

Fasadevinduer i tilbygget og eksisterende hytter

Terrasse Overbygg terrasse

🧱 Tre

Antall: 10

10 m² overbygg til terrasse

Overbygg til terrasse i tre på 10 m²

Dører Ytterdør

Antall: 3

Dører i fasade øst og vest, samt inngang til vindfang

Ytterdører til tilbygget og eksisterende hytter

Elektro Elektrisk installasjon

Elektrisk installasjon i tilbygget og eksisterende hytter

Gulv Innvendig gulv

Innvendige gulv i tilbygget, sannsynligvis tre eller laminat

Fasade Trepanel

🧱 Tre

Trepanel på fasader nord, sør, øst og vest

Utvendig kledning i tre på tilbygget og eksisterende hytter

Tak Pulttak og valmtak

🧱 Teglstein

Pulttak og valmtak tekket med teglstein

Taktekking på tilbygget og eksisterende hytter

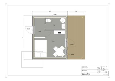
Plantegning

Hytte 25.3 m²

Etasje 1 25.3 m²

Rom Areal Vinduer Dører
Stue/sov 101 9.7 m² 1 1
Vindfang 102 2.6 m² 0 1
Toalett 103 3.0 m² 0 0

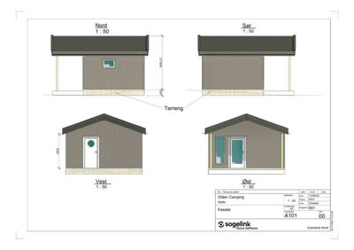
Fasader

Hytte

Nord
Materiale
Tre
Taktype
Pulttak
Takmat.
Tegl
Høyde
3.5 m
Vinduer
1
Dører
0
Synlige etasjer
1
Sør
Materiale
Tre
Taktype
Pulttak
Takmat.
Tegl
Høyde
3.5 m
Vinduer
0
Dører
0
Synlige etasjer
1
Vest
Materiale
Tre
Taktype
Valmtak
Takmat.
Tegl
Høyde
2.2 m
Vinduer
0
Dører
1
Synlige etasjer
1
Øst
Materiale
Tre
Taktype
Valmtak
Takmat.
Tegl
Vinduer
1
Dører
1
Synlige etasjer
1

Hendelser

22.04.2026 Svar - tilbygg/lager - Olden Camping
09.04.2026 Arkivsak 2025/2266 og Arkivsak 2025/2236 Olden Camping
12.03.2026 Gbnr. 108/1 - søknad om utsleppsløyve
08.12.2025 Gbnr. 108/1 - retting på innsendt søknad 05.12.25
05.12.2025 Gbnr. 108/1 - søknad om løyve til tiltak utan ansvarsrett