Extension UnderBehandling Fritidsbolig

Tilbygg og terrasser til hytte på Sjusjøen Pihl 840

📍 Øyungen 1 , 2387 BRUMUNDDAL

Nøkkelinfo

Sakstype
Tilbygg
Bygningstype
Fritidsbolig
Bruksareal
15 m²
Boenheter
1
Kommune
Ringsaker
Fylke
Innlandet
Gnr / Bnr
527 / 1
Saksnummer
23/27438
Fase
Under behandling

Om byggesaken

Nyoppført tilbygg på hytte med et bruksareal på ca. 14,7 m², inkludert fasadeendringer og flytting av inngangsparti. Tilbygget består av isolert hoveddel med rom som soverom og oppholdsrom. Det er også oppført terrasser som er større enn reguleringsplanens tillatte areal og høyde, med terrasser som overstiger 50 cm over terreng. Tilbygget har saltak og trekledning, og det er utført elektriske arbeider. Prosjektet omfatter også fasadeendringer med innkledning under eksisterende takoverbygg. Det foreligger manglende ferdigattest for tilbygg og terrasser.

Produkter og materialer

Tømrer Bygging av tilbygg og terrasser

🧱 Tre

Tømrerarbeid for oppføring av tilbygg og terrasser

Tømrerarbeid for konstruksjon av tilbygg og terrasser

Terrasse Terrasse på pilarer

🧱 Tre

Terrasser oppført høyere enn 50 cm over terreng, større enn regulert areal

Terrasser som krever dokumentasjon og eventuelt dispensasjon

Fasade Trekledning

🧱 Tre

Innkledning av vegger under eksisterende takoverbygg

Trekledning for fasadeendring på tilbygg og eksisterende hytte

Elektro Elektriske installasjoner

Elektriske arbeider utført av EL Installasjon AS

Elektriske installasjoner i tilbygg og hytte

Dører Ytterdører

Antall: 3

Dører i tilbygg og eksisterende hytte, inkludert inngangsdør flyttet til nytt soverom

Ytterdører for tilbygg og eksisterende hytte

Vinduer Fasadevindu

🧱 Tre/Aluminium (ikke spesifisert)

Antall: 9

Vinduer i tilbygg og eksisterende hytte, inkludert 3 på stue, 1 på kjøkken, 1 på soverom

Fasadevinduer for tilbygg og eksisterende hytte

Tak Saltak med teglstein

🧱 Teglstein

Saltak med teglstein på tilbygg og eksisterende hytte

Taktekking med teglstein på saltak

Grunnarbeid Fundamentering for tilbygg og terrasser

Fundamentering for tilbygg og terrasser på pilarer

Grunnarbeid og fundamentering for tilbygg og terrasser

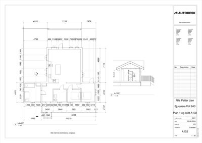
Plantegning

Enebolig 112.3 m²

Etasje 1 112.3 m²

Rom Areal Vinduer Dører
Stue 101 42.5 m² 3 2
Kjøkken 102 12.8 m² 1 1
Gang 103 14.2 m² 0 3
Bad 104 6.5 m² 0 1
Sove 1 105 11.5 m² 1 1
Sove 2 106 11.8 m² 1 1
Spisestue 107 0.0 m² 0 0
Kjøkken 108 0.0 m² 1 0

Fasader

Enebolig

Sør
Materiale
Tre
Taktype
Saltak
Takmat.
Tegl
Høyde
4.4 m
Mønehøyde
4.4 m
Vinduer
3
Dører
0
Balkonger
1
Synlige etasjer
1
Øst
Materiale
Tre
Taktype
Saltak
Takmat.
Tegl
Høyde
4.1 m
Mønehøyde
4.1 m
Vinduer
4
Dører
1
Synlige etasjer
1
Nord
Materiale
Tre
Taktype
Saltak
Vinduer
2
Dører
0
Balkonger
1
Synlige etasjer
2
Vest
Materiale
Tre
Taktype
Saltak
Vinduer
4
Dører
1
Balkonger
1
Synlige etasjer
2

Hendelser

21.04.2026 Oppført terrasse er ikke i henhold til bestemmelsene for hytte og tilbygg mangler ferdigattest, gnr 527 bnr 1 fnr 1562, Sjusjøen- Pihl 840, Sjusjøen
20.04.2026 Melding om bygg - Tilbygg hytte, gnr 527 bnr 1 fnr 1562, Sjusjøen- Pihl 840, Sjusjøen
12.07.2023 Oppført tilbygg til hytte mangler ferdigattest samt at oppført terrasser virker for store - gnr 527 bnr 1 fnr 1562 - Sjusjøen-Pihl 840
10.07.2023 Mangler ferdigattest for tilbygg og utført for store terasser - Tilbygg hytte, gnr 527 bnr 1 fnr 1562, Sjusjøen- Pihl 840, Sjusjøen