Extension UnderBehandling Fritidsbolig

Ny stølshus med tilbygg i Seksevegen 62, Ullensvang

📍 Seksevegen 60 , 5773 HOVLAND

Nøkkelinfo

Sakstype
Tilbygg
Bygningstype
Fritidsbolig
Bruksareal
40 m²
Kommune
Ullensvang
Fylke
Vestland
Gnr / Bnr
184 / 10
Saksnummer
2026/745
Fase
Under behandling

Om byggesaken

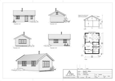
Ny stølshus på totalt 39,5 m² BRA oppføres på samme plassering som eksisterende stølshus fra 1956, som rives. Bygget får saltak med 28 graders takvinkel, liggende kledning i tre og tretak. Det nye stølshuset inkluderer et påbygg på 9,8 m² i lengderetning, tilpasset eksisterende fundament og bredde. Bygget inneholder oppholdsrom med kombinert stove/kjøkken/soverom, gang og bod, og skal ha tørrtoalett. Fundamenteringen skjer på stripefundament på fast fjell med lav høyde for å redusere inngrep. Materialer fra riving håndteres miljøvennlig. Bygget er tilpasset lokal byggestil og nærliggende hytter, og skal ivareta jakt- og fiskerettigheter i området. Vann hentes fra bekk, og det er ikke innlagt vann eller VA-anlegg.

Produkter og materialer

Tømrer Innvendige konstruksjoner

🧱 Tre

Oppholdsrom med kombinert stove/kjøkken/soverom, gang og bod

Innvendige tømrerarbeider for rominndeling og konstruksjon

Fasade Liggende trepanel

🧱 Tre

Liggande kanta kledning i tre, tilpasset lokal byggestil

Ytterkledning i liggende trepanel for stølshus

Tak Saltak med tretak

🧱 Tre

Saltak med 28 graders takvinkel, tretak

Taktekking med tretak på saltak

VVS Vannforsyning fra bekk

Vann hentes fra bekk, ikke innlagt vann

Vannforsyning uten innlagt vann, hentes fra bekk

Isolasjon Vegg- og takisolasjon

Isolasjon for å oppfylle TEK17 krav

Isolasjon i vegger og tak for energieffektivitet

Grunnarbeid Stripefundament på fast fjell

🧱 Betong

Stripefundament på fast fjell med lav høyde for å redusere inngrep

Fundamentering av bygget på stripefundament

VVS Tørrtoalett

Antall: 1

Tørrtoalett, ingen innlagt vann eller VA-anlegg

Sanitærløsning med tørrtoalett

Maling Utvendig maling

Maling av trepanel for beskyttelse og estetikk

Overflatebehandling av ytterkledning

Dører Ytterdør i tre

🧱 Tre

Antall: 1

En ytterdør i tre

Betong Fundament og gulv

🧱 Betong

Fundamentering og gulv på stripefundament

Betongarbeid for fundament og gulv

Vinduer Fasadevindu

🧱 Tre

Antall: 2

To fasadevinduer i tre, tilpasset byggestil

Plantegning

Hovedbygg 88.5 m²

Etasje 0 88.5 m²

Rom Areal Vinduer Dører
Vaskerom NAOST 6.5 m² 0 0
Bod BOD 2.3 m² 0 0

Fasader

Stolshus

Ukjent
Materiale
Tre
Taktype
Saltak
Vinduer
2
Dører
1
Synlige etasjer
1

Hendelser

13.04.2026 Ber om at etterspurt dokumentasjon fra fylkeskommunene oversendes
13.04.2026 Dokumentasjon frå søkjar vedr riving og oppføring av nytt stølshus i Munkabu
13.04.2026 Ber om dokumentasjon ang søknad om riving og oppføring av nytt stølshus på Munkabu - 26/745
13.04.2026 Spørsmål fra tilsynsutvalget til søker om å lage en skisse av hytta
13.04.2026 Opplysningar frå søkjar om riving og oppføring av ny hytte Munkabu
13.04.2026 Angående forhåndskonferanse og anmodning om opplysninger om VA
13.03.2026 Søknad om riving og oppføring av nytt stølshus på Munkabu - Hardangervidda nasjonalpark
13.03.2026 Opplysingar til riving og oppføring av ny hytte Munkabu
13.03.2026 Opplysninger fra tiltakshaver og eposter fra kommunen
06.03.2026 Tilsynsutvalget ber om mer informasjon om bygget som skal rives
06.03.2026 Oversendelse av tilsynsutvalget spml til tiltakshaver samt anmodning om utdyping on VVS
06.03.2026 Oversendelsesbrev - sak til uttale - riving av eksisterende og oppføring av nytt stølshus med tilbygg i Hardangervidda nasjonalpark
06.03.2026 Byggesak etterspør referat fra forhåndskonferanse
06.03.2026 Foreløpig svar til tilsynsutvalget
26.02.2026 Gnr 184, bnr 10 - Seksevegen 62 - Søknad om tiltak - bygge hytte i Munkabu