Extension Rammetillatelse Fritidsbolig

Tilbygg, innbygging og VA-anlegg på fritidsbolig, Skåtøyveien 4

📍 Skåtøyveien 4 , 3780 SKÅTØY

Nøkkelinfo

Sakstype
Tilbygg
Bygningstype
Fritidsbolig
Bruksareal
59 m²
Boenheter
1
Kommune
Kragerø
Fylke
Telemark
Gnr / Bnr
30 / 470
Saksnummer
2025/4367
Fase
Rammetillatelse

Om byggesaken

Tiltaket omfatter oppgradering av eksisterende fritidsbolig på Skåtøyveien 4 med et tilbygg på ca. 5,8 m² som skal inneholde teknisk rom for VA-anlegg, innbygging av eksisterende takoverbygde arealer på ca. 5,8 m² for å flytte sikringsskap innendørs, fasadeendringer med nye og endrede vinduer og dører, riving av deler av taket og oppbygging av nytt tak med limtredrager og nye sperrer, flytting av pipe og ildsted, samt etablering av nytt VA-anlegg med nedgraving av vann- og avløpsrør og pumpekum tilkoblet kommunalt nett via sjøledning. Det fjernes eksisterende trapper og plattinger som erstattes med nye, lavere trapper og plattinger, og gulvet i inngangspartiet senkes for bedre tilgjengelighet. Tiltaket er plassert i strandsonen og krever dispensasjon, som er innvilget med vilkår om hensyn til naturmangfold og gyteperioder for torsk. VA-anlegget legges skånsomt uten mudring i sjø, og tiltaket forbedrer både miljø, sikkerhet og funksjonalitet for fritidsboligen.

Produkter og materialer

VA Vann- og avløpsrør i sjø

🧱 PE-plastrør

Vannledning Ø32 mm PE, avløpsledning Ø40 mm PE, legges på sjøbunnen med lodd, uten mudring

VA-ledninger legges i sjø med skånsom metode for å unngå skade på ålegras og bløtbunn

Tak Takreparasjon og oppbygging

🧱 Limtredrager, nye sperrer, shingel taktekking

Riving av deler av taket på stuefløy mot sørøst, oppbygging med limtredrager og nye sperrer i henhold til dagens krav

Rehabilitering av tak for bedre bæring og værbestandighet

Tømrer Innbygging av takoverbygget areal

🧱 Tre

Antall: 2

Innbygging av eksisterende takoverbygget areal på ca. 1.4 m² i underetasje og 4.4 m² i hovedetasje

Innbygging for økt BRA og bedre funksjonalitet uten økning i BYA

Fasade Dører

🧱 Tre, ytterdør godkjent som rømningsvei

Antall: 3

Flytting av ytterdør, ny dør med tilstrekkelig høyde og bredde for rømningsvei, fjerning av dør i soverom erstattet med vindu

Dørendringer for bedre tilgjengelighet og sikkerhet

Terrasse Platting med rekkverk

🧱 Tre

Antall: 1

Erstatningsplatting ca. 3.4 m² med trapp, fjernet eksisterende platting ca. 3.6 m²

Ny platting med trapp, omtrent samme størrelse som eksisterende, lavere høyde for bedre terrengtilpasning

Fasade Vinduer

🧱 Tre/alu, to-rams med sidesving

Antall: 11

Nye og endrede vinduer, bytte fra husmorvinduer med kryss-sprosser til to-rams vinduer med sidesving, fjernelse av avlange fastkarmvinduer og tredelte vinduer

Vindusutskifting for bedre lysinnslipp og arkitektonisk harmoni

Grunnarbeid VA-anlegg nedgraving

Nedgraving av vann- og avløpsrør, pumpekum, tilkobling til kommunalt VA-nett via sjøledning ca. 60 meter fra eiendom

Grøft med dybde 30-40 cm for VA-rør, inkl. pumpekum og tilkobling til kommunalt nett

Trapper Utendørs trapp

🧱 Tre

Antall: 2

Fjerning av eksisterende trapper, erstatning med lavere/kortere trapp på sørøst-siden

Erstatning av trapper for bedre tilgjengelighet og redusert terrenginngrep

Elektro Sikringsskap

🧱 Elektrisk skap

Antall: 1

Flytting av utvendig sikringsskap inn i innbygget takoverbygget areal for økt brannsikkerhet og beskyttelse mot korrosjon

Innbygging av sikringsskap for bedre sikkerhet og driftssikkerhet

Pipe Stålpipe og ildsted

🧱 Stål

Antall: 1

Fjerning av eksisterende pipe, ny plassering og installasjon av ny stålpipe og ildsted

Flytting og oppgradering av pipe og ildsted

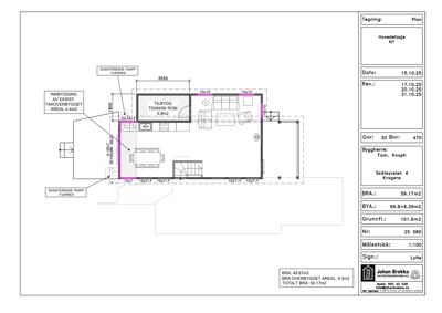
Plantegning

Enebolig 59.2 m²

Etasje 1 59.2 m²

Rom Areal Vinduer Dører
Teknisk rom 101 5.8 m² 0 1
Stue 102 53.4 m² 4 2

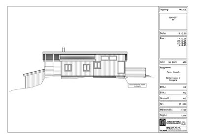
Fasader

Enebolig

Sørvest
Materiale
Tre
Taktype
Flatt tak
Vinduer
5
Dører
1
Balkonger
1
Synlige etasjer
1
Sørøst
Materiale
Tre
Taktype
Saltak
Vinduer
3
Dører
1
Balkonger
1
Synlige etasjer
2
Nordvest
Materiale
Tre
Taktype
Saltak
Vinduer
3
Dører
1
Balkonger
1
Synlige etasjer
2

Hendelser

17.04.2026 Fakturagrunnlag - Gbnr. 30/470 - Skåtøyveien 4 - Søknad om VA-anlegg, tilbygg, innbygging, fasadeendring og flytting av pipe/ ildsted. Dispensasjon
17.04.2026 Ett-trinnstillatelse - Gbnr. 30/470 - Skåtøyveien 4 - Søknad om VA-anlegg, fasadeendring, erstatning av tak og flytting av pipe/ ildsted
13.04.2026 Melding om vedtak - Gbnr. 30/470 - Skåtøyveien 4 - Søknad om VA-anlegg, tilbygg, innbygging, fasadeendring og flytting av pipe/ ildsted. Dispensasjon
04.03.2026 Etterspør status - Gbnr. 30/470 - Skåtøyveien 4 - Søknad om VA-anlegg, tilbygg, innbygging, fasadeendring og flytting av pipe/ ildsted. Dispensasjon
04.03.2026 Tilbakemelding om status - Gbnr. 30/470 - Skåtøyveien 4 - Søknad om VA-anlegg, tilbygg, innbygging, fasadeendring og flytting av pipe/ ildsted. Dispensasjon
27.02.2026 Saksframlegg - Gbnr. 30/470 - Skåtøyveien 4 - Søknad om rivearbeider, erstatningstrapp, VA-anlegg, tilbygg, innbygging, fasadeendring og flytting av pipe/ ildsted - Dispensasjon
27.02.2026 Fiskeridirektoratets merknad til høring - Gbnr. 30/470 - Skåtøyveien 4 - Søknad om VA-anlegg, tilbygg, innbygging, fasadeendring og flytting av pipe/ ildsted. Dispensasjon
23.02.2026 Statsforvalterens merknad til høring - Gbnr. 30/470 - Skåtøyveien 4 - Søknad om VA-anlegg, tilbygg, innbygging, fasadeendring og flytting av pipe/ ildsted. Dispensasjon
17.02.2026 Statsforvalterens merknad til høring - Gbnr. 30/470 - Skåtøyveien 4 - Søknad om VA-anlegg, tilbygg, innbygging, fasadeendring og flytting av pipe/ ildsted. Dispensasjon
17.02.2026 Svar på spørsmål fra Statsforvalteren - Gbnr. 30/470 - Skåtøyveien 4 - Søknad om VA-anlegg, tilbygg, innbygging, fasadeendring og flytting av pipe/ ildsted. Dispensasjon
29.01.2026 Anmodning om uttalelse - Gbnr. 30/470 - Skåtøyveien 4 - Søknad om VA-anlegg, innbygging, rivearbeider, bytte tak, erstatningsterrasse og flytting av pipe/ ildsted
08.01.2026 Tilbakemelding til varsel om delvis avslag - Gbnr. 30/470 - Skåtøyveien 4 - Søknad om VA-anlegg, tilbygg, innbygging, fasadeendring og flytting av pipe/ ildsted. Dispensasjon
07.01.2026 Søknad om tillatelse i ett trinn og dispensasjon; søknad 2 - Gbnr. 30/470 - Skåtøyveien 4 - Søknad om VA-anlegg, tilbygg, innbygging, fasadeendring og flytting av pipe/ ildsted. Dispensasjon
07.01.2026 Supplering av søknad; ettersending av vedlegg - Gbnr. 30/470 - Skåtøyveien 4 - Søknad om VA-anlegg, tilbygg, innbygging, fasadeendring og flytting av pipe/ ildsted. Dispensasjon
17.12.2025 Foreløpig vurdering - Varsel om mulig delvis avslag - Gbnr. 30/470 - Skåtøyveien 4 - Søknad om VA-anlegg, tilbygg, innbygging, fasadeendring, rivearbeider, erstatningsterrasse og flytting av pipe/ ildsted
08.12.2025 Ber om redegjørelse - Gbnr. 30/470 - Skåtøyveien 4 - Søknad om VA-anlegg, tilbygg, innbygging, fasadeendring og flytting av pipe/ ildsted. Dispensasjon
08.12.2025 Supplering av søknad; redegjørelse teknisk rom - Gbnr. 30/470 - Skåtøyveien 4 - Søknad om VA-anlegg, tilbygg, innbygging, fasadeendring og flytting av pipe/ ildsted. Dispensasjon
01.12.2025 Supplering av søknad; tegninger, situasjonskart og redegjørelser - Gbnr. 30/470 - Skåtøyveien 4 - Søknad om VA-anlegg, tilbygg, innbygging, fasadeendring og flytting av pipe/ ildsted. Dispensasjon
19.11.2025 Tilbakemelding om mangler og ber om ytterligere opplysninger - Gbnr. 30/470 - Skåtøyveien 4 - Søknad om VA-anlegg, erstatningsplatting, rivearbeider, tilbygg, innbygging, fasadeendring og flytting av pipe/ ildsted
07.11.2025 Bekreftelse på mottatt søknad - Gbnr. 30/470 - Skåtøyveien 4 - Søknad om VA-anlegg, tilbygg, innbygging, fasadeendring og flytting av pipe/ ildsted. Dispensasjon
07.11.2025 Søknad om tillatelse i ett trinn - Gbnr. 30/470 - Skåtøyveien 4 - Søknad om VA-anlegg, tilbygg, innbygging, fasadeendring og flytting av pipe/ ildsted. Dispensasjon