Extension Soeknad Fritidsbolig

Tilbygg og fasadeendring på hytte i Sognefjellsvegen 6776

📍 Sognefjellsvegen 6776 , 6877 FORTUN

Nøkkelinfo

Sakstype
Tilbygg
Bygningstype
Fritidsbolig
Bruksareal
45 m²
Kommune
Luster
Fylke
Vestland
Gnr / Bnr
9 / 57
Saksnummer
2026/1359
Fase
Søknad

Om byggesaken

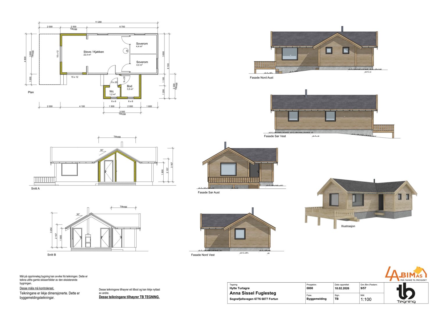
Ny tilbygg på ca. 18,1 m² til eksisterende hytte i Sognefjellsvegen 6776, med samlet bebygd areal på 44,7 m² etter utvidelsen. Tilbygget inkluderer utvidelse av stue/kjøkken, ny inngang med bod og brennedo. Bygget er i tre med saltak og har en gesimshøyde på 3,167 meter. Fasaden består av trepanel med flere vinduer og balkonger på ulike fasader. Det er pipe på bygget. Prosjektet omfatter også fasadeendringer i tilknytning til tilbygget.

Produkter og materialer

Fasade Trepanel

🧱 Tre

Trepanel på fasader med saltak og gesimshøyde 3,167 m

Fasadeendring med trepanel som matcher eksisterende hytte

Dører Ytterdør

Antall: 1

Ytterdør på søraust fasade i tilbygget

Ny ytterdør i tilbygget

Tak Saltak

🧱 Takstein eller lignende

Saltak på tilbygget og eksisterende bygg

Taktekking for saltak på tilbygget

Gulv Innvendig gulv

Innvendige gulv i tilbygget, sannsynligvis tre eller parkett

Tømrer Tømrerarbeider

Tømrerarbeid for tilbygg og fasadeendring

Tømrerarbeid knyttet til oppføring av tilbygget og fasadeendring

Elektro Elektrisk anlegg

Elektrisk installasjon i tilbygget

Mur Tørmuring

Tørmuring av eksisterende mur og nytt tilbygg

Muring i forbindelse med tilbygget

Vinduer Fasadevindu

Antall: 7

Vinduer fordelt på fasader: 3 nordøst, 2 sørvest, 1 søraust, 1 nordvest

Nye og eksisterende fasadevinduer i tilbygget og fasadeendring

VVS Sanitærinstallasjoner

Brennedo i ny inngang med bod

Sanitærinstallasjoner for brennedo og eventuelt vann til kjøkken/stue

Grunnarbeid Fundamentering

Grunnarbeid og fundamentering for nytt tilbygg

Fasader

Hytte

Nordøst
Materiale
Tre
Taktype
Saltak
Høyde
3.2 m
Vinduer
3
Dører
0
Balkonger
1
Synlige etasjer
1
Sørvest
Materiale
Tre
Taktype
Saltak
Høyde
3.2 m
Vinduer
2
Dører
0
Balkonger
1
Synlige etasjer
1
Søraust
Materiale
Tre
Taktype
Saltak
Høyde
3.2 m
Vinduer
1
Dører
1
Balkonger
1
Synlige etasjer
1
Nordvest
Materiale
Tre
Taktype
Saltak
Høyde
3.2 m
Vinduer
1
Dører
0
Synlige etasjer
1

Hendelser

17.04.2026 Søknad om tiltak på gbnr. 9/57 - Sognefjellsvegen 6776 - tilbygg og fasadeendring