Extension UnderBehandling Fritidsbolig

Tilbygg og takoppløft på fritidsbolig i Solbergvann 8

📍 Solbergvann 8 , 3055 KROKSTADELVA

Nøkkelinfo

Sakstype
Tilbygg
Bygningstype
Fritidsbolig
Bruksareal
80 m²
Kommune
Drammen
Fylke
Buskerud
Gnr / Bnr
241 / 203
Saksnummer
25/31346
Fase
Under behandling

Om byggesaken

Ny tilbygg på ca. 4,56 m² BRA på nordøstre hjørne av eksisterende fritidsbolig med saltak i tre, samt takoppløft på én side hvor gesimshøyden heves uten å endre mønehøyden. Tiltaket forbedrer inngangspartiet ved å etablere et mer funksjonelt og skjermet inngangsparti, øker romhøyden innvendig og gir bedre planløsning. Bygget har en total BRA på ca. 79,5 m² etter tiltaket, og er plassert innenfor 100-meters byggegrense mot vassdrag uten nye terrenginngrep. Bygget har tre vinduer på sør- og vestfasade, og saltak med pipe. Det er installert 3-lags energivinduer med lav refleksjon, miljøvennlig oppvarming og solceller. Tiltaket inkluderer også utbedring av råteskader og skadedyrskader, samt forbedret isolasjon og teknisk standard.

Produkter og materialer

Tak Saltak

🧱 Tre med taktekking

Saltak med gesimshøyde hevet på én side, mønehøyde uendret

Takoppløft med justering av gesimshøyde for bedre romhøyde

Fasade Trepanel

🧱 Tre

Brunsvart malt trepanel som eksisterende fasade

Fasade kledning i tre som matcher eksisterende bygg

Dører Ytterdør

Antall: 1

Miljøvennlig og energieffektiv ytterdør

Ny ytterdør for inngangsparti med bedre funksjonalitet

VVS Miljøvennlig ovn

Antall: 1

Miljøvennlig og energieffektiv fyringsovn

Oppgradering av oppvarming for bedre miljøprofil

Solceller Takmonterte solcellepaneler

Installasjon av solceller for miljøvennlig energiproduksjon

Maling Utvendig maling

🧱 Brunsvart maling

Brunsvart farge for å tilpasse bygget til naturen

Maling av fasade for estetisk tilpasning og beskyttelse

Vinduer Energivindu 3-lags

Antall: 3

3-lags energiglass med lav refleksjon

Energieffektive vinduer for bedre isolasjon og miljøprofil

Tømrer Bygging av tilbygg og takoppløft

🧱 Tre

Tømrerarbeid for oppføring av tilbygg og takoppløft

Grunnarbeid Fundamentering og drenering

Grunnarbeid for tilbygg og takoppløft, inkludert drenering

Isolasjon Vegger, tak og loft

Etterisolering av vegger, tak og loft

Forbedret isolasjon for energieffektivitet

Plantegning

Enebolig 120.5 m²

Etasje 1 120.5 m²

Rom Areal Vinduer Dører
Stue 101 40.9 m² 3 1
Gang 102 7.6 m² 0 4
Bad 103 4.3 m² 0 2
Toalett 104 2.1 m² 0 1
Soverom 1 105 4.7 m² 1 1
Soverom 2 106 7.4 m² 1 1
Kjøkken 107 4.7 m² 1 1
Stue 60.4 m² 2 1
Kjøkken 14.1 m² 1 0
Stue 40,87 m² 40.9 m² 2 1
Gang 7,56 m² 7.6 m² 0 2
Soverom 4,68 m² 4.7 m² 1 1
Soverom 7,40 m² 7.4 m² 1 1
Bad 4,66 m² 4.7 m² 0 1
Toalett 2,06 m² 2.1 m² 0 1
Kjøkken 4,33 m² 4.3 m² 1 0
Stue 35.2 m² 3 2
Kjøkken 12.5 m² 0 1
Gang 8.3 m² 0 2
Bad 6.4 m² 1 1
Gang 2.5 m² 0 1

Anneks 28.5 m²

Etasje 1 28.5 m²

Rom Areal Vinduer Dører
Ved 5 8.5 m² 0 1
Bod 9 12.0 m² 0 1
Sov S 8.0 m² 0 1

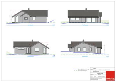
Fasader

Enebolig

Sør
Materiale
Tre
Taktype
Saltak
Høyde
4.6 m
Mønehøyde
8.2 m
Vinduer
3
Dører
1
Synlige etasjer
1
Vest
Materiale
Tre
Taktype
Saltak
Høyde
4.6 m
Mønehøyde
8.2 m
Vinduer
3
Dører
1
Synlige etasjer
1
Nord
Materiale
Tre
Taktype
Saltak
Høyde
4.6 m
Mønehøyde
8.2 m
Vinduer
1
Dører
2
Synlige etasjer
1
Øst
Materiale
Tre
Taktype
Saltak
Høyde
3.1 m
Mønehøyde
8.2 m
Vinduer
2
Dører
1
Synlige etasjer
1

Hendelser

13.04.2026 Solbergvann 8, ber om fristforlengelse
02.03.2026 Solbergvann 8, vi trenger flere opplysninger for å behandle søknaden din
12.02.2026 Solbergvann 8, bekrefter at det innen fristen ikke er mottatt noen nabomerknader
22.01.2026 Solbergvann 8 Supplering av søknad 241/203 - Søknad om dispensasjon
20.01.2026 Solbergvann 8, utsatt frist
16.12.2025 Solbergvann 8, ber om utsatt frist
18.11.2025 Solbergvann 8, vi trenger flere opplysninger for å behandle søknaden din
30.09.2025 Solbergvann 8 - Søknad om dispensasjon fra kommuneplan for oppføring av tilbygg og takoppløft - gbnr 241/203
02.09.2025 Solbergvann 8, anmodning om uttalelse fra buskerud fylkeskommune og statsforvalteren i Østfold, Buskerud, Oslo og Akershus
27.08.2025 Solbergvann 8 Søknad om rammetillatelse 241/203