Extension UnderBehandling Fritidsbolig

Tilbygg, bruksendring og garasje ved Solveien 63, Nesbru

📍 Solveien 63 , 1394 NESBRU

Nøkkelinfo

Sakstype
Tilbygg
Bygningstype
Fritidsbolig
Bruksareal
202 m²
Boenheter
1
Kommune
Asker
Fylke
Akershus
Gnr / Bnr
39 / 185
Saksnummer
25/2537
Fase
Under behandling

Om byggesaken

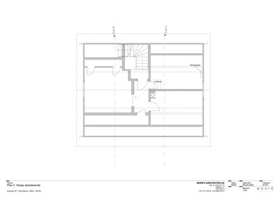
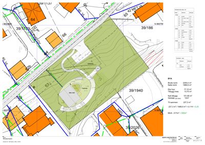
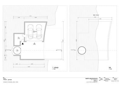
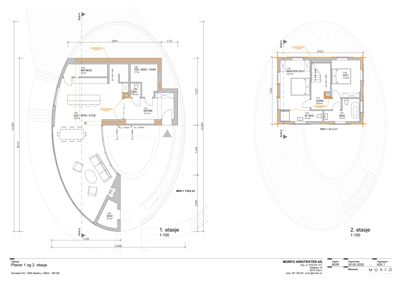
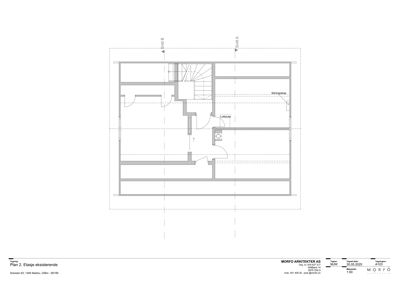
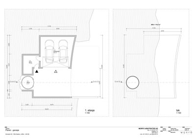
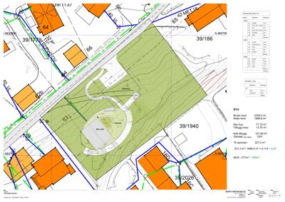
Prosjektet omfatter et nytt tilbygg på 151,9 m² til en eksisterende fritidsbolig på 77,1 m², som samtidig skal endres til helårsbolig. Tilbygget er utformet som en lavmælt, organisk sokkel i ellipseform, delvis nedsenket i terrenget for å fremheve og bevare den historiske bygningens karakter. Det planlegges også en ny garasje på 12 m², delvis nedgravd i fjell, med intern forbindelse til huset via korridor og heis. Bygget har tre etasjer over terreng med saltak i tre og tegl, og fasadene oppgraderes med nye vinduer og materialer som gir en tydelig kontrast til det opprinnelige huset, samtidig som det er tilpasset terreng og kulturminneverdier. Prosjektet inkluderer også terrengtilpasninger, beplantning og tekniske installasjoner som heis og våtrom, og søker dispensasjon for garasjens størrelse. Tiltaket er under behandling med pågående dialog om tilpasning til kulturminnevern og tekniske krav.

Produkter og materialer

Grunnarbeid Terrengtilpasning og støttemurer

🧱 Betong og naturstein

Inngrep i terreng for tilpasning av bygg, støttemurer i lokal naturstein

Terrenginngrep og støttemurer for tilpasning av tilbygget og garasje

VVS Heis og våtrom

Antall: 1

Heis fra garasje til bolig, våtrom i flere etasjer

Heisinstallasjon og oppgradering av våtrom i bolig

Elektro Elektrisk installasjon

Oppgradering av elektrisk anlegg i forbindelse med bruksendring og nybygg

Elektriske installasjoner i bolig og garasje

Isolasjon Innvendig etterisolering

🧱 Isolasjonsmateriale iht. TEK17

Innvendig etterisolering av eksisterende bygg for bruksendring til helårsbolig

Isolasjon for å oppfylle krav ved bruksendring

Garasjeport Port til nedgravd garasje

🧱 Ikke spesifisert

Antall: 1

Garasje på 12 m² delvis nedgravd i fjell, med port eksponert mot vei

Garasjeport for biloppstilling i ny garasje

Vinduer Symmetriske vinduer i tre

🧱 Tre med 3-lags glass

Antall: 14

Nye vinduer symmetrisert i fasaden, erstatter eksisterende vinduer

Oppgradering og symmetrisering av vinduer i hovedhus og tilbygg

Terrasse Takterrasse over garasje

Antall: 1

Takterrasse som kan regnes som uteoppholdsareal, med nivåtilpasning til terreng

Uteoppholdsareal på tak over garasje

Dører Ytterdører og innerdører

🧱 Tre og glass

Antall: 15

Ytterdører i tre, innerdører i bolig og garasje, inkludert dør til heis

Nye dører for adkomst og intern kommunikasjon, inkludert dør til heis

Maling Utvendig og innvendig maling

🧱 Maling tilpasset tre og betong

Maling av fasader og innvendige flater

Overflatebehandling for beskyttelse og estetikk

Gulv Innvendige gulv

🧱 Ikke spesifisert

Oppgradering av gulv i tilbygg og eksisterende bygg

Gulvbelegg og konstruksjon i bolig

Tak Saltak med tegl

🧱 Teglstein

Eksisterende saltak beholdes, tilbygget har grønt tak

Bevaring av eksisterende saltak, nytt grønt tak på tilbygget

Ventilasjon Ventilasjonssystem

Ventilasjon tilpasset helårsbolig og nybygg

Ventilasjon for nytt og eksisterende bygg

Rekkverk Smijernsrekkverk

🧱 Smijern

Vertikale smijernsrekkverk anbefalt av kommunen, i stedet for glassrekkverk

Rekkverk til terrasser og trapper

Fasade Trepanel og glassflater

🧱 Tre, glass, betong

Eksisterende fasade i tre med saltak, nytt tilbygg med moderne glassflater og betongelementer, grønt tak

Fasadeoppgradering med nye vinduer, glassflater og betongelementer i tilbygget, samt bevaring av eksisterende trepanel på hovedbygget

Fasader

Enebolig

Nord
Materiale
Tre
Taktype
Saltak
Høyde
6.5 m
Mønehøyde
8.2 m
Vinduer
3
Dører
0
Synlige etasjer
3
Sør
Materiale
Tre
Taktype
Saltak
Høyde
6.5 m
Mønehøyde
8.2 m
Vinduer
3
Dører
0
Synlige etasjer
3
Vest
Materiale
Tre
Taktype
Saltak
Takmat.
Tegl
Høyde
2.8 m
Mønehøyde
8.2 m
Vinduer
2
Dører
0
Synlige etasjer
1
Øst
Materiale
Tre
Taktype
Saltak
Takmat.
Tegl
Høyde
2.1 m
Mønehøyde
8.2 m
Vinduer
3
Dører
1
Synlige etasjer
1
Ukjent
Materiale
Tre
Taktype
Saltak
Vinduer
4
Dører
1
Synlige etasjer
2

Hendelser

13.04.2026 39/185 Solveien 63 - Kommunen bekrefter utsatt frist
11.04.2026 39/185 Solveien 63 - Ber om utsatt frist for innsending av revidert materiale inntil videre - tiltaket omprosjekteres
12.02.2026 39/185 Solveien 63 - Oppfølgingsbrev til varsel om avslag
12.02.2026 39/185 Solveien 63 - Akershus fylkeskommunes uttalelse til tilbygg
21.01.2026 39/185 Solveien 63 - Anmodning om kulturminnefaglig vurdering av tilbygg
12.01.2026 39/185 Solveien 63 - Supplering av søknad
12.01.2026 39/185 Solveien 63 - Ber om tilbakemelding på videre saksbehandling
11.11.2025 39/185 Solveien 63 - Svar på supplering av søknad
04.11.2025 39/185 Solveien 63 - Supplering av søknad
16.10.2025 39/185 Solveien 63 - Varsel om avslag for søknad om rammetillatelse for tilbygg til eksisterende fritidsbolig, bruksendring til helårsbolig og nybygg garasje
03.08.2025 39/185 Solveien 63 - Søknad om rammetillatelse - Tilbygg til eksisterende fritidsbolig, bruksendring til helårsbolig samt nybygg garasje