Extension Avslatt Fritidsbolig

Tilbygg til fritidsbolig i Søndre Bærøyveien 42, Kragerø

📍 Søndre Bærøyveien 42 , 3783 KRAGERØ SKJÆRGÅRD

Nøkkelinfo

Sakstype
Tilbygg
Bygningstype
Fritidsbolig
Bruksareal
41 m²
Kommune
Kragerø
Fylke
Telemark
Gnr / Bnr
31 / 350
Saksnummer
2023/3328
Fase
Avslått

Om byggesaken

Tilbygg til eksisterende fritidsbolig på Søndre Bærøyveien 42 i Kragerø kommune. Prosjektet omfatter to tilbygg med samlet bebygd areal på ca. 41,1 m², inkludert soverom, bad, gang og bod. Bygget er i tre med saltak og har flere vinduer og dører fordelt på fasadene. Tilbygget er planlagt plassert nærmere nabogrensen enn 4 meter, med nabosamtykke for 1,5 meter avstand. Prosjektet er regulert innenfor et område med reguleringsplan for fritidsbebyggelse, ca. 92 meter fra sjøen. Søknaden fra 2005 ble ikke realitetsbehandlet, og senere suppleringer har ikke oppfylt krav til komplett søknad. Kommunen har avslått søknaden fordi nødvendig dispensasjon fra byggeforbudet i strandsonen ikke er søkt, og søknaden ikke er komplett i henhold til gjeldende regelverk. Det foreligger omfattende korrespondanse og klagesaker knyttet til behandlingen.

Produkter og materialer

Tømrer Trekonstruksjoner

🧱 Tre

Trekonstruksjoner for tilbygget

Tømrerarbeid med trekonstruksjoner

Vinduer Fasadevindu

🧱 Tre eller aluminium ramme

Antall: 12

Vinduer fordelt på fasader, totalt 12 stk

Fasadevinduer i tilbygget

Dører Ytterdør

🧱 Tre eller glass

Antall: 3

Ytterdører på fasader, totalt 3 stk

Ytterdører i tilbygget

Tak Saltak

🧱 Takstein eller lignende

Saltak på tilbygget

Tak med saltak på tilbygget

Fasade Tre kledning

🧱 Tre

Tre kledning på tilbygg med saltak

Fasade med tre kledning og saltak på tilbygget

Betong Fundamenter

🧱 Betong

Fundamenter for tilbygget

Betongfundamenter for tilbygget

VVS Vann og avløp

Vann- og avløpsløsning må dokumenteres og godkjennes

VVS-installasjoner for våtrom og tilknytning til vann- og avløpsnett

Grunnarbeid Grunnarbeid for tilbygg

Grunnarbeid for fundamentering av tilbygget

Grunnarbeid for tilbygg

Nabovarsling Nabovarsel og nabosamtykke

Nabovarsel må sendes ut på nytt, og nabosamtykke for plassering må dokumenteres

Nabovarsling og nabosamtykke for avvik fra avstandskrav

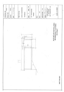
Plantegning

Fritidsbolig 100.6 m²

Etasje 1 100.6 m²

Rom Areal Vinduer Dører
Stue 101 35.0 m² 1 2
Hage 102 29.0 m² 1 0
Sov 1 103 6.6 m² 1 1
Sov 2 104 6.6 m² 1 1
Sov 3 105 7.4 m² 1 1
Sov 4 106 10.0 m² 1 1
Bad 107 0.0 m² 0 1
Sov 108 6.3 m² 1 1
Bod 109 2.1 m² 1 1
Sov 110 4.6 m² 1 1

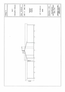
Fasader

Tilbygg/Hytte

Vest
Materiale
Tre
Taktype
Saltak
Vinduer
1
Dører
0
Synlige etasjer
1
Øst
Materiale
Tre
Taktype
Saltak
Vinduer
3
Dører
1
Synlige etasjer
1
Nord
Materiale
Tre
Taktype
Saltak
Vinduer
4
Dører
1
Synlige etasjer
2
Sør
Materiale
Tre
Taktype
Saltak
Vinduer
4
Dører
1
Synlige etasjer
2

Hendelser

21.04.2026 E-post korrespondanse (tiltakshaver, kommunen og Statsforvalteren) - Gbnr. 31/350 - Søndre Bærøyveien 42 - Tilbygg hytte - Byggesak fra 2005
20.04.2026 Kopi av Statsforvalterens vedtak i klagesak - Gbnr. 31/350 - Søndre Bærøyveien 42 - Tilbygg hytte - Byggesak fra 2005
30.03.2026 Tilbakemelding til Statsforvalteren - Gbnr. 31/350 - Søndre Bærøyveien 42 - Tilbygg hytte - Byggesak fra 2005
30.03.2026 Statsforvalteren ber om tilbakemelding - Gbnr. 31/350 - Søndre Bærøyveien 42 - Tilbygg hytte - Byggesak fra 2005
11.03.2025 Kopi av brev fra SF, orientering om saksbehandlingstid - Gbnr. 31/350 - Søndre Bærøyveien 42 - Tilbygg hytte - Byggesak fra 2005
05.03.2025 Melding om vedtak - Klage over avslag - Gbnr. 31/350 - Søndre Bærøyveien 42 - Tilbygg hytte (Meldingssak fra 2005)
26.02.2025 Kopi av e-post til leder/ nestleder ifm. HPB - Gbnr. 31/350 - Søndre Bærøyveien 42 - Tilbygg hytte - Byggesak fra 2005
03.12.2024 Saksfremlegg - Klage over avslag - Gbnr. 31/350 - Søndre Bærøyveien 42 - Tilbygg hytte (Meldingssak fra 2005)
02.12.2024 Klage på nytt vedtak om avslag - Gbnr. 31/350 - Søndre Bærøyveien 42 - Tilbygg hytte - Byggesak fra 2005
18.11.2024 Omgjøring av avvisingsvedtak og nytt vedtak om avslag - Gbnr. 31/350 - Søndre Bærøyveien 42 - Tilbygg hytte - Byggesak fra 2005
14.10.2024 Ønske om møte - Gbnr. 31/350 - Søndre Bærøyveien 42 - Tilbygg hytte - Byggesak fra 2005
14.10.2024 Epostkorrespondanse vedrørende møte - Gbnr. 31/350 - Søndre Bærøyveien 42 - Tilbygg hytte - Byggesak fra 2005
20.09.2024 Tilbakemelding om status i klagesak - Gbnr. 31/350 - Søndre Bærøyveien 42 - Tilbygg hytte
12.09.2024 Etterlyser status på klage - Gbnr. 31/350 - Søndre Bærøyveien 42 - Tilbygg hytte
25.06.2024 Gbnr. 31/350 - Søndre Bærøyveien 42 - Klage
13.06.2024 Avvisningsvedtak - Gbnr. 31/350 - Klage ang. gammel meldningssak, tilbygg
25.04.2024 Gbnr. 31/350 - Søndre Bærøyveien 42 - Klage
19.03.2024 Tilsvar - Gbnr. 31/350 - Søndre Bærøyveien 42 - Tilbygg hytte
28.11.2023 Svar brev - Avslutning av mangelfull sak - Gbnr. 31/350 - Søndre Bærøyveien 42 - Tilbygg hytte
21.11.2023 Svar brev - Avslutning av mangelfull sak - Gbnr. 31/350 - Søndre Bærøyveien 42 - Tilbygg hytte
14.11.2023 Avslutning av mangelfull sak - Gbnr. 31/350 - Søndre Bærøyveien 42 - Tilbygg hytte
08.11.2023 Mail -Gbnr. 31/350 - Søndre Bærøyveien 42 - Tilbygg hytte
19.10.2023 Fortsatt mangler ved søknaden - Gbnr. 31/350 - Søndre Bærøyveien 42 - Tilbygg hytte
06.09.2023 Gbnr 31/350 Viken Eiendom - svar på mangler ved søknaden
31.08.2023 Mangler ved søknaden - Gbnr. 31/350 - Søndre Bærøyveien 42 - Tilbygg hytte
17.08.2023 Intern oversendelse - Gbnr. 31/350 - Søndre Bærøyveien 42 - Tilbygg hytte
10.07.2023 Nye saksopplysninger - tilbygg hytte - gbnr 31/350
21.06.2023 Aksept - Gbnr 31/350 Tilbygg hytte
21.06.2023 Plantengning, tiltak - Gbnr 31/350 Tilbygg hytte