Extension UnderBehandling Fritidsbolig

Tilbygg med bad på fritidsbolig i Tangenveien 41, Veierland

📍 Tangenveien 39 , 3144 VEIERLAND

Nøkkelinfo

Sakstype
Tilbygg
Bygningstype
Fritidsbolig
Bruksareal
9 m²
Kommune
Færder
Fylke
Vestfold
Gnr / Bnr
141 / 9
Saksnummer
2025/2011
Fase
Under behandling

Om byggesaken

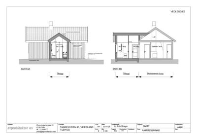
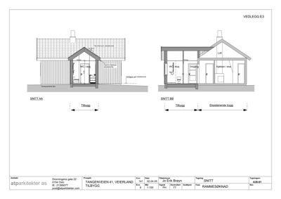
Ny tilbygg på 9 m² med bad og toalett til eksisterende verneverdig fritidsbolig i Tangenveien 41 på Veierland. Tilbygget plasseres på baksiden av huset, utenfor den opprinnelige laftede tømmerkonstruksjonen, og forbindes med hovedbygget via en inntrukket glassgang. Tilbygget får skrått tak med samme gesimshøyde og takvinkel som eksisterende bygg, og utvendig kledning i låvepanel for å skille det nye fra det verneverdige. Prosjektet inkluderer tilkobling til kommunalt vann- og avløpsnett, og tiltaket innebærer riving av deler av uthus for å oppnå dispensasjon fra byggeforbud i strandsonen. Fasade mot sjøen berøres ikke, og tiltaket er tilpasset for å bevare byggets historiske karakter og minimere inngrep i naturen.

Produkter og materialer

VVS Tilkobling vann og avløp

Tilkobling til kommunalt vann- og avløpsnett via Veierland Vann og Avløp AS, med godkjent sanitærabonnement

Vann- og avløpsinstallasjoner for tilbygget

Fasade Utvendig kledning

🧱 Låvepanel

Utvendig kledning i låvepanel, farge som eksisterende, for å skille tilbygget fra verneverdig laftet tømmerkonstruksjon

Kledning for tilbyggets yttervegger

Dører Ytterdør i glass i mellomgang

🧱 Glass

Antall: 1

Glassdør i mellomgang mellom eksisterende bygg og tilbygg

Ytterdør i mellomgang

Tak Saltak

Saltak med samme gesimshøyde og takvinkel som eksisterende bygg

Tak for tilbygget med skrå tak som harmonerer med eksisterende bygg

Maling Utvendig maling

Maling i farge som eksisterende bygg

Overflatebehandling av utvendig kledning

Grunnarbeid Fundamentering og grunnarbeid for tilbygg

Grunnarbeid tilpasset eksisterende terreng uten større inngrep

Fundamentering og grunnarbeid for nytt tilbygg

Bad Sanitærutstyr

Bad med toalett og dusj installert i tilbygget

Sanitærinstallasjoner for bad og toalett i tilbygget

Vinduer Glassdør og fasadevindu i mellomgang

🧱 Glass

Mellomgang med mye glass i dør og yttervegg for transparent forbindelse mellom eksisterende bygg og tilbygg

Vinduer og dør i mellomgang mellom eksisterende bygg og tilbygg

Tømrer Laftet tømmerkonstruksjon og tilbygg

🧱 Tre

Tilbygg i tre med tilpasset konstruksjon for å bevare eksisterende bygning

Tømrerarbeid for oppføring av tilbygget

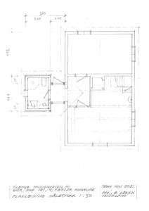
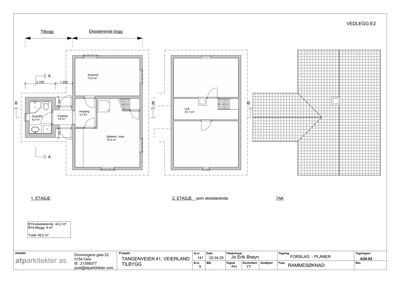
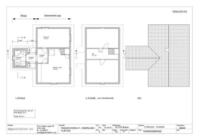
Plantegning

Enebolig 74.4 m²

Etasje 1 36.7 m²

Rom Areal Vinduer Dører
Inngang 101 3.3 m² 0 2
Soverom 102 14.0 m² 2 1
Kjøkken / stue 103 19.4 m² 3 1
Kjøkken / stue 104 19.4 m² 2 1
Soverom 105 13.5 m² 2 1
Teknisk rom 106 1.0 m² 0 0
Gang 107 10.0 m² 0 1
Sove 108 10.0 m² 1 1
Sove 109 10.0 m² 1 1

Etasje 2 37.7 m²

Rom Areal Vinduer Dører
Loft 201 37.7 m² 2 1

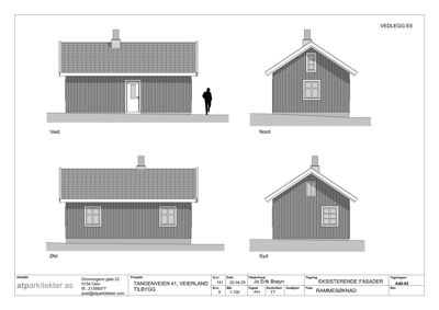
Fasader

Enebolig

Vest
Materiale
Tre
Taktype
Saltak
Vinduer
1
Dører
0
Synlige etasjer
1
Nord
Materiale
Tre
Taktype
Saltak
Vinduer
2
Dører
1
Synlige etasjer
1
Øst
Materiale
Tre
Taktype
Saltak
Vinduer
2
Dører
0
Synlige etasjer
1
Syd
Materiale
Tre
Taktype
Saltak
Vinduer
2
Dører
1
Synlige etasjer
1
Sør
Materiale
Tre
Taktype
Saltak
Vinduer
3
Dører
0
Synlige etasjer
1

Hendelser

20.04.2026 Gbnr 141/9 - Tangenveien 41 - Tilbygg med bad - Vedrørende dokumentasjon av bruk
19.03.2026 Gbnr 141/9 - Tangenveien 41 - Tilbygg med bad - Bekreftelse supplering av søknad
16.03.2026 Gbnr 141/9 - Tangenveien 41 - Tilbygg med bad - Supplering av søknad
09.03.2026 Gbnr 141/9 - Tangenveien 41 - Tilbygg med bad - Varsel om avslag og forslag til løsning
06.03.2026 Gbnr 141/9 - Tangenveien 41 - Tilbygg med bad - Foreløpig svar
04.03.2026 Gbnr 141/9 - Tangenveien 41 - Tilbygg med bad - Forslag
24.02.2026 Gbnr 141/9 - Tangenveien 41 - Tilbygg med bad - Varsel om avslag
09.12.2025 Gbnr 141/9 - Tangenveien 41 - Tilbygg med bad - Dokumentasjon
08.12.2025 Gbnr 141/9 - Tangenveien 41 - Tilbygg med bad - Svar forslag til løsning
04.12.2025 Gbnr 141/9 - Tangenveien 41 - Tilbygg med bad - Forslag til løsning
04.09.2025 Gbnr 141/9 - Tangenveien 41 - Tilbygg med bad - Ettersending av forhåndsgodkjenning sanitærabonnement
25.08.2025 Gbnr 141/9 - Tangenveien 41 - Tilbygg med bad - Mangelbrev
23.05.2025 Gbnr 141/9 - Tangenveien 41 - Tilbygg med bad - Søknad mottatt
21.05.2025 Gbnr 141/9 - Tangenveien 41 - Søknad om rammetillatelse for tilbygg
07.03.2025 Gbnr 141/9 - Tangenveien 41 - Tilbygg med bad - Retur av mangelfull søknad
03.03.2025 Gbnr 141/9 - Tangenveien 41 - Tilbygg med bad - Søkad om dispensasjon fra bygging i strandsonen