Extension Ferdigattest Fritidsbolig

Tilbygg og fasadeendring på hytte med anneksflytting, Østre Faratangen 37

📍 Vestre Faratangen 64 , 1622 GRESSVIK

Nøkkelinfo

Sakstype
Tilbygg
Bygningstype
Fritidsbolig
Bruksareal
90 m²
Boenheter
1
Kommune
Fredrikstad
Fylke
Østfold
Gnr / Bnr
55 / 96
Saksnummer
2024/2250
Fase
Ferdigattest

Om byggesaken

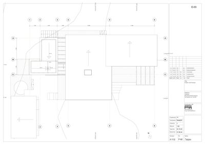
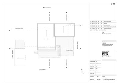
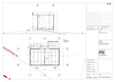
Prosjektet omfatter et nytt tilbygg på inntil 50 m² til en eksisterende fritidsbolig (hytte) på Østre Faratangen 37, med fasadeendringer som inkluderer nye vinduer og dører i tre, og beiset seterbrun kledning. Tilbygget inneholder blant annet soverom og bad, og er forbundet med hovedhytta via en svalgang med åpen pergola. Eksisterende terrasser demonteres og nye terrasser på til sammen ca. 40 m² oppføres for bedre tilknytning til terrenget. I tillegg flyttes et eksisterende anneks på ca. 13,7 m² til en ny plassering på tomten innenfor bygge- og tomtegrense, med oppgradering av materialer, vinduer og dører. Byggetiltaket følger terrengets nivåer og er prosjektert med flatt tak og trefasader. Alle arbeider er utført i henhold til godkjente tegninger og as-built dokumentasjon, med full ansvarsrett og kontroll.

Produkter og materialer

Fasade Trepanel kledning

🧱 Tre, beiset seterbrun

Beiset i seterbrun farge, tilpasset eksisterende hytte

Fasadeendring med ny trepanelkledning i seterbrun farge på hytte og tilbygg

Mur Mur og grunnmur

🧱 Ikke spesifisert

Eksisterende mur og grunnmur tilpasses nytt tilbygg og anneks

Grunnmur og bæring for tilbygg og anneks

Mur Murarbeid

Murarbeid utført av LASSE HOLST AS

Murarbeid i forbindelse med tilbygg og anneks

Vinduer Fasadevindu i tre

🧱 Tre med mørk RAL farge

Antall: 8

Nye vinduer i fasadeendring, mørk RAL farge tilpasset kledning

Nye fasadevinduer i tre med mørk farge på hytte og tilbygg

VVS Sanitærinstallasjoner

Sanitærinstallasjoner i nytt bad i tilbygg, utført av ARNE NILSEN AS

VVS-installasjoner for bad i tilbygg

Tak Flatt tak

🧱 Ikke spesifisert, antatt membran eller tilsvarende

Flatt tak på eksisterende hytte og tilbygg

Taktekking for flatt tak på hytte og tilbygg

Terrasse Terrasse i tre

🧱 Tre

Nye terrasser på til sammen ca. 40 m² rundt hytta, tilpasset terreng og svaberg

Oppføring av nye terrasser for bedre uteareal og tilknytning til terreng

Tømrer Tømrerarbeid og trekonstruksjoner

🧱 Tre

Montering av trekonstruksjoner for tilbygg og anneks, utført av EGIL NORLI AS

Tømrerarbeid for tilbygg og flytting av anneks

Grunnarbeid Fundamentering og stolpesko

🧱 Stolpesko festet til fjell

Alle stolper festes i stolpesko til fjell, nett variant

Fundamentering for tilbygg og anneks

Dører Ytterdører i tre

🧱 Tre med mørk RAL farge

Antall: 4

Nye ytterdører i fasadeendring, mørk RAL farge tilpasset kledning

Nye ytterdører i tre på hytte og tilbygg

Trapper Utvendige trapper i tre

🧱 Tre

Noen trapper hevet et trinn i detaljprosjektering, tilpasset svalgang og terreng

Utvendige trapper tilknyttet tilbygg og svalgang

Fasader

Enebolig

Nord
Materiale
Tre
Taktype
Flatt tak
Vinduer
2
Dører
1
Synlige etasjer
1
Vest
Materiale
Tre
Taktype
Flatt tak
Vinduer
1
Dører
1
Balkonger
1
Synlige etasjer
1
Sør
Materiale
Tre
Taktype
Flatt tak
Vinduer
3
Dører
1
Synlige etasjer
1
Øst
Materiale
Tre
Taktype
Flatt tak
Vinduer
2
Dører
1
Synlige etasjer
1

Hendelser

20.04.2026 Søknad om ferdigattest - Østre Faratangen 37 - Eiendom 55/6/96
15.05.2025 Midlertidig brukstillatelse - Fasadeendring, Tilbygg inntil 50 m² - Østre Faratangen 37 - Eiendom 55/6/96
13.05.2025 Søknad om midlertidig brukstillatelse - Østre Faratangen 37 - Eiendom 55/6/96
09.05.2025 Supplering av søknad - Eiendom 55/6 - Østre Faratangen 37
06.05.2025 Østre Faratangen 37 - Anneks flyttes
06.05.2025 Østre Faratangen 37 - Anneks flyttes
04.09.2024 Sak til matrikkelføring - Fasadeendring, Tilbygg inntil 50 m² - Østre Faratangen 37 - Eiendom 55/6/96
04.09.2024 Igangsettingstillatelse - Tilbygg til fritidsbolig - Østre Faratangen 37 - Eiendom 55/6/96
29.08.2024 Søknad om igangsettingstillatelse - Østre Faratangen 37 - Eiendom 55/6/96
01.02.2024 Rammetillatelse - Fasadeendring, Tilbygg inntil 50 m² - Østre Faratangen 37 - Eiendom 55/6/96
01.02.2024 Sak til matrikkelføring - Fasadeendring, Tilbygg inntil 50 m² - Østre Faratangen 37 - Eiendom 55/6/96
18.01.2024 Rammesøknad - Østre Faratangen 37 - Eiendom 55/6/96 - Fasadeendring, Tilbygg inntil 50 m² hytte
18.01.2024 Bekreftelse på mottatt søknad - Fasadeendring, Tilbygg inntil 50 m² - Østre Faratangen 37 - Eiendom 55/6/96