Extension Ferdigattest Fritidsbolig

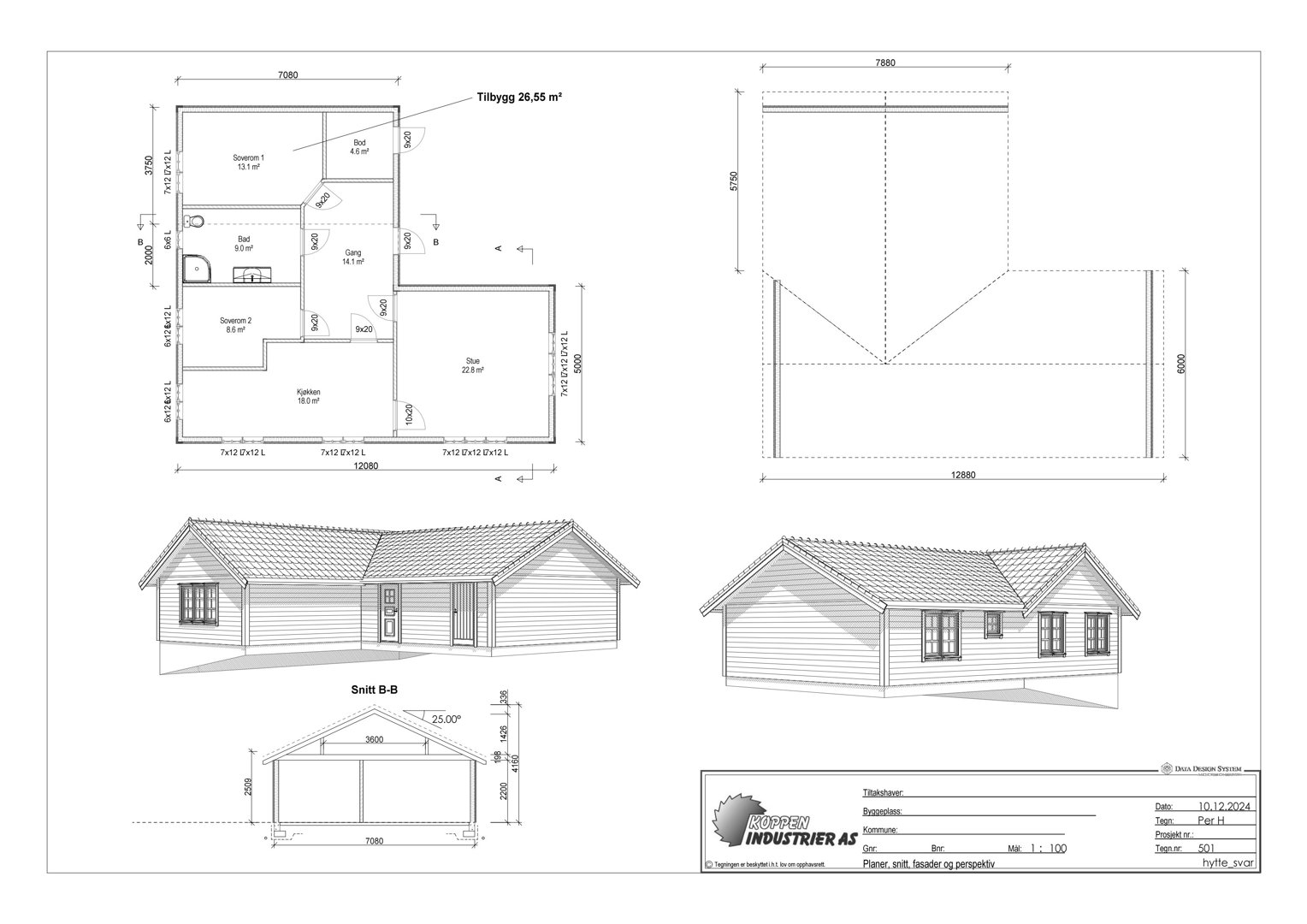
Tilbygg på 26,5 m² til fritidsbolig i Svorastranda 26

📍 Vikasætrevegen 151 , 6763 HORNINDAL

Nøkkelinfo

Sakstype
Tilbygg
Bygningstype
Fritidsbolig
Bruksareal
27 m²
Boenheter
1
Kommune
Volda
Fylke
Møre og Romsdal
Gnr / Bnr
209 / 1
Saksnummer
2025/207
Fase
Ferdigattest

Om byggesaken

Ny tilbygg på 26,5 m² til eksisterende fritidsbolig på Svorastranda 26. Tilbygget inneholder to soverom, et bad og tilhørende gang, stue og kjøkkenareal. Bygget har saltak med tegl takmateriale og trekledning, og er plassert sør for eksisterende bygg. Arealet som bygges på er delvis tidligere planert og lite landbruksareal berøres. Bygget har én etasje og er tilknyttet privat septiktank for avløp. Dispensasjon er gitt for bygging på LNF-område og for byggegrense mot vei. Tiltaket er ferdigstilt med godkjent ferdigattest.

Produkter og materialer

Bad Våtromsinnredning

Antall: 1

Bad med våtromsinnredning i tilbygget

Bad med komplett våtromsinnredning i tilbygget

Fasade Trekledning

🧱 Tre

Trekledning på tilbygg og eksisterende bygg

Yttervegger kledd med trepanel som matcher eksisterende fritidsbolig

Elektro Elektrisk installasjon

Elektrisk installasjon i tilbygget, ikke detaljert spesifisert

Elektrisk anlegg for tilbygg

Grunnarbeid Fundamentering og grunnarbeid

Grunnarbeid for tilbygg på 26,5 m², tilpasset eksisterende bygg

Fundamentering og grunnarbeid for tilbygg

VVS Avløpsanlegg med septiktank

Privat septiktank for avløp, eksisterende anlegg beholdes

Avløpsløsning basert på eksisterende septiktank, ikke tilknyttet offentlig avløp

Gulv Innvendige gulv

Gulv i tilbygget tilpasset boligstandard

Innvendige gulv i tilbygget, type ikke spesifisert

Dører Ytterdører i tre

🧱 Tre

Antall: 2

Ytterdører i tre på fasade sør og vest

Ytterdører i tre som vist på fasadetegninger

Tak Saltak med teglstein

🧱 Tegl

Saltak med tegl takmateriale som eksisterende bygg

Tak med saltak og teglstein som matcher eksisterende bygg

Vinduer Fasadevindu i tre

🧱 Tre

Antall: 11

Vinduer i tre på fasader øst, sør, vest og nord

Fasadevindu i tre som vist på fasadetegninger

Tømrer Tømrerarbeid for tilbygg

Tømrerarbeid inkludert bærekonstruksjoner og utvendig kledning

Tømrerarbeid for oppføring av tilbygg

Maling Utvendig og innvendig maling

Maling av treflater utvendig og innvendig i tilbygget

Overflatebehandling med maling

Fasader

Enebolig

Vest
Materiale
Tre
Taktype
Saltak
Takmat.
Tegl
Høyde
2.6 m
Mønehøyde
4.2 m
Vinduer
1
Dører
1
Synlige etasjer
1
Sør
Materiale
Tre
Taktype
Saltak
Takmat.
Tegl
Høyde
2.6 m
Mønehøyde
4.2 m
Vinduer
4
Dører
1
Synlige etasjer
1
Nord
Materiale
Tre
Taktype
Flatt tak
Takmat.
Tegl
Vinduer
3
Dører
0
Synlige etasjer
1
Øst
Materiale
Tre
Taktype
Saltak
Takmat.
Tegl
Vinduer
3
Dører
0
Synlige etasjer
1

Hendelser

23.04.2026 Ferdigattest - Søknad om løyve i eitt trinn/ tilbygg - Svorastranda 26 - gnr 209 bnr 1
15.04.2026 Søknad om ferdigattest - Svorastranda 26 - Gnr 209 bnr 1
11.06.2025 Løyve til tiltak - Tilbygg - Svorastranda 26 - gnr 209 bnr 1
12.05.2025 Landbruksfagleg fråsegn, utviding Svorastranda 26 - Olav Helge Svår - Volda - gnr 209 bnr 1
09.05.2025 Informasjon om utsleppsløyve - Svorastranda 26 - Gnr 209 bnr 1
06.05.2025 Etterspør utsleppsløyve - Svorastranda 26 - Gnr 209 bnr 1
06.05.2025 Retting av opplysningar om eigedomen - Svorastranda 26 - Gnr 209 bnr 1
22.04.2025 Orientering om vidare prosess m.m - Tilbygg til fritidsbustad - Svorastranda 26 - Gnr 209 bnr 1
08.04.2025 Løyve- Dispensasjon frå veglova - Tilbygg - Svorastranda 26 - Gnr 209 bnr 1
21.03.2025 Oversending av søknad om dispensasjon frå veglova - Tilbygg - Svorastranda 26 - Gnr 209 bnr 1
21.01.2025 Søknad om løyve i eitt trinn - tilbygg - Svorastranda 26 - Gnr 209 bnr 1