Extension UnderBehandling Fritidsbolig

Tilbygg og fasadeendring på fritidsbolig i Engersvik 10

📍 Vikene 10 , 3480 FILTVET

Nøkkelinfo

Sakstype
Tilbygg
Bygningstype
Fritidsbolig
Bruksareal
115 m²
Boenheter
1
Kommune
Asker
Fylke
Akershus
Gnr / Bnr
339 / 64
Saksnummer
25/4173
Fase
Under behandling

Om byggesaken

Ny tilbygg på ca. 37 m² til eksisterende fritidsbolig i Engersvik 10 med saltak og trepanel som fasademateriale. Tilbygget inneholder bod og to soverom med gang, og har gesimshøyde på ca. 4,2 meter og mønehøyde på ca. 5,8 meter. Fasadeendring omfatter utskifting av fasadevinduer og etablering av stor glass skyvedør med bjelkeutveksling over. Gangtrasé oppgraderes med breddeutvidelse til 1,5 meter, grusdekke og terrengtilpasning med skjæring og fylling inntil 1,5 meter, inkludert fjerning av eksisterende terrengtrapp. Det er også søkt om bruksendring av bod til bad. Arealregnskap viser samlet bebygd areal (BYA) på ca. 204 m² inkludert parkeringsplasser, og bruksareal (BRA) på ca. 104 m². Terrengarbeidene er tilpasset gjeldende reguleringsplan og nabosamtykke foreligger for fylling nærmere nabogrense enn 4 meter.

Produkter og materialer

Dører Skyvedør i glass

🧱 Glass med tre- eller aluminiumsramme

Antall: 1

Stor glass skyvedør i fasade mot sørøst med bjelkeutveksling over

Ny skyvedør som del av fasadeendring

Grunnarbeid Terrengarbeid med skjæring og fylling

🧱 Masseflytting, sprengning av fjell, fyllmasser

Terrengtilpasning med skjæring og fylling inntil 1,5 meter høyde, inkludert sprengning av fjell

Terrengarbeid for gangtrasé og tilbyggsgrunnlag

Tømrer Tilbygg konstruksjon

🧱 Tre

Tilbygg med bjelkeutveksling over skyvedør, trepanel fasade

Tømrerarbeid for tilbygg og fasadeendring

Vinduer Fasadevindu

🧱 Glass med trekarmer

Antall: 10

Eksisterende og nye fasadevinduer i tre, antatt 3 på vest, 2 på nord, 1 på sør, 4 på øst fasade

Vinduer til fasadeendring og tilbygg

Grunnarbeid Gangvei med grusdekke

🧱 Grus

Oppgradering av gangtrasé med bredde 1,5 meter og grusdekke

Ny gangvei med grusdekke som erstatning for eksisterende terrengtrapp

Parkering Biloppstillingsplasser

Antall: 2

To biloppstillingsplasser på egen tomt, ca. 36 m² inkludert i BYA

Parkering iht. reguleringsplan krav

Dører Ytterdører

🧱 Tre eller glass

Antall: 4

Ytterdører i tilbygget og eksisterende bygg, inkludert dører til soverom og bod

Ytterdører i tilbygget og eksisterende bygg

Bruksendring Ombygging bod til bad

Antall: 1

Bruksendring fra bod til hoveddel bad

Ombygging av eksisterende bod til bad

Trapper Terrengtrapp

Antall: 1

Eksisterende terrengtrapp skal fjernes som del av oppgradering av gangtrasé

Fjerning av eksisterende terrengtrapp

Fasade Trepanel fasade

🧱 Tre

Fasade med trepanel, saltak med teglstein

Fasadeendring med utskifting av fasadevinduer og ny stor glass skyvedør med bjelkeutveksling over

Betong Støpt gulv bad

🧱 Betong

Antall: 1

Nytt bad med støpt gulv i tilbygget

Støpt gulv i nytt bad i tilbygget

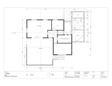
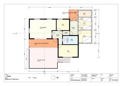
Plantegning

Enebolig 120.5 m²

Etasje 1 120.5 m²

Rom Areal Vinduer Dører
Stue/kjøkken 101 50.0 m² 3 2
Sov 102 15.0 m² 1 2
Gang 103 8.0 m² 0 4
Terrasse 104 35.0 m² 0 1
Sov 105 18.0 m² 1 2
Sov 106 12.0 m² 1 2
Bod 107 6.0 m² 0 1
Sov 108 10.0 m² 1 2
Nytt bad med støpt gulv 109 8.0 m² 0 2
V.F. 110 4.0 m² 0 2
Sov 111 9.4 m² 1 1
Bod 112 4.8 m² 1 1
Areal under takutstikk (BRA) 113 5.4 m² 0 1

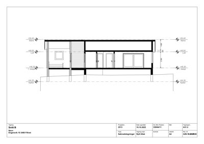
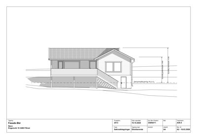
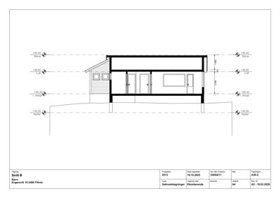
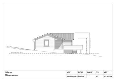
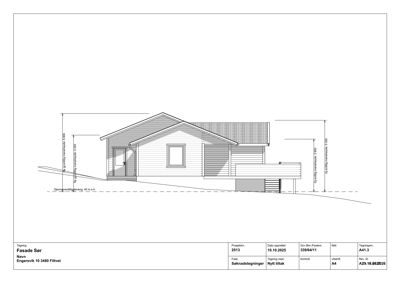
Fasader

Enebolig

Vest
Materiale
Tre
Taktype
Saltak
Takmat.
Tegl
Høyde
4.1 m
Mønehøyde
5.8 m
Vinduer
3
Dører
1
Synlige etasjer
1
Nord
Materiale
Tre
Taktype
Saltak
Takmat.
Tegl
Høyde
4.2 m
Mønehøyde
5.8 m
Vinduer
2
Dører
0
Balkonger
1
Synlige etasjer
2
Sør
Materiale
Tre
Taktype
Saltak
Høyde
3.9 m
Mønehøyde
5.3 m
Vinduer
1
Dører
1
Balkonger
1
Synlige etasjer
2
Øst
Materiale
Tre
Taktype
Saltak
Høyde
3.9 m
Mønehøyde
5.3 m
Vinduer
4
Dører
1
Balkonger
1
Synlige etasjer
2

Hendelser

10.04.2026 339/64/11 Engersvik 10 - Supplering av søknad
09.04.2026 339/64/11 Engersvik 10 - Utsatt frist - Tilbygg, fasadeendring stue med bjelkeutveksling og oppgradering av gangtrasé
07.04.2026 339/64/11 Engersvik 10 - Ber om utsatt frist for innsending av dokumentasjon
12.02.2026 339/64/11 Engersvik 10 - Ufullstendig søknad - Tilbygg, fasadeendring stue med bjelkeutveksling og oppgradering av gangtrasé
08.12.2025 339/64/11 Engersvik 10 - Søknad om rammetillatelse - Tilbygg, fasadeendring stue med bjelkeutveksling og oppgradering av gangtrasé
08.12.2025 339/64/11 Engersvik 10 - Supplering av søknad