Extension Soeknad Fritidsbolig

Fasade- og bærekonstruksjonsendring på hytte i Vinterstødalen 25

📍 Vinterstødalen 25 , 1680 SKJÆRHALDEN

Nøkkelinfo

Sakstype
Tilbygg
Bygningstype
Fritidsbolig
Bruksareal
78 m²
Boenheter
1
Kommune
Hvaler
Fylke
Østfold
Gnr / Bnr
15 / 70
Saksnummer
2026/594
Fase
Søknad

Om byggesaken

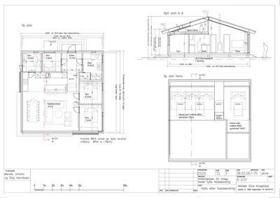
Eksisterende hytte på 78 m² med saltak og trepanel gjennomgår omfattende endringer. Takstoler erstattes med sperretak med mønsås uten endring i takvinkel eller mønehøyde, noe som gir økt innvendig takhøyde og mulighet for hems over bad og soverom. Overbygget uteareal bygges inn til et nytt soverom, uten økning i BRA, men med økt innvendig oppvarmet areal. Fasaden får ny stående gråbrun panel, etterisoleres med 10 cm, og vindusarealet økes, spesielt mot sjøen hvor glassarealet utgjør 45 % av fasadearealet. For solavskjerming og redusert refleksjon monteres skyvevegger i trespiler. Hytta får nytt båndtekket platetak i sink eller lignende. Vann og kloakk tilknyttes når kommunal kapasitet tillater det, og to uthus fjernes. Innvendig planløsning endres med nye vinduer og dører, og det etableres hems uten målbar BRA. Prosjektet inkluderer reparasjon av vannskader og oppgradering av bærekonstruksjoner.

Produkter og materialer

Maling Beising eller jernvitrol behandling

Gråbrun beis eller jernvitrol for fasadepanel

Overflatebehandling av trepanel

Fasade Stående panel

🧱 Trepanel, beiset gråbrunt eller behandlet med jernvitrol

Utvendig etterisolering med 10 cm, ny farge som harmonerer med omgivelsene

Fasadeendring med ny kledning og etterisolering

VVS Vann og kloakk tilknytning

Planlagt tilknytning til kommunalt vann og kloakk når kapasitet tillater det

Oppgradering fra utedo til innlagt vann og kloakk

Isolasjon Utvendig isolasjon

🧱 10 cm isolasjon

Etterisolering av fasade

Bedre isolasjon og energieffektivitet

Trapper Innvendig trapp til hems

Antall: 1

Trapp til hems over bad/soverom

Adkomst til ny hems uten målbar BRA

Grunnarbeid Etterisolering og utvidelse av BYA

🧱 10 cm isolasjon utvendig

Etterisolering som øker BYA fra 82,5 m² til 86,1 m²

Utvendig etterisolering av hytte

Tak Sperretak med mønsås

🧱 Båndtekking i sink eller lignende grått platetak

Antall: 1

Ny takkonstruksjon som erstatter takstoler, takvinkel og mønehøyde uendret

Reparasjon og ny takkonstruksjon med økt innvendig takhøyde og hemsmulighet

Dører Skyvedører og nye ytterdører

🧱 Trespiler som skyvevegger for solavskjerming og refleksjonsreduksjon

Skyvevegger i trespiler som kan låses, nye dører i fasadeendring

Solskjerming og mulighet for å stenge vindusflater

Tømrer Innbygging av overbygget uteareal

Innebygget veranda til soverom uten økning i BRA

Ombygging av uteareal til innvendig rom

Vinduer Store fasadevinduer og takvinduer

Antall: 4

4 takvinduer mot nord, økt glassareal mot sjøen (45 % av fasade), mørkere grå farge på rammer

Nye og større vindusflater for mer lys og utsikt

Plantegning

Hytte 78.0 m²

Etasje 1 78.0 m²

Rom Areal Vinduer Dører
Soverom Sov 4.5 m² 0 1
Soverom Sov 4.5 m² 0 1
Entré Entre 4.7 m² 0 2
Bad Bad 6.5 m² 1 1
Soverom Sov 6.2 m² 0 1
Soverom Sov 7.2 m² 0 1
Kjøkken/stue Kjøkken/stue 41.0 m² 3 2
Stue-Kombinert Stue-Komb 35.2 m² 1 1
Kjøkken Kjøkken 8.0 m² 0 1
Gang gang 2.4 m² 0 3
Bod BOD 1.6 m² 0 1
WC WC 1.2 m² 0 1
Vaskerom vaskerom 3.2 m² 0 1

Enebolig 67.0 m²

Etasje 1 67.0 m²

Rom Areal Vinduer Dører
Stue - Komb. 45.9 m² 2 1
Kjøkken 8.7 m² 0 1
gang 2.5 m² 0 3
Bod 4.8 m² 1 1
WC 2.0 m² 0 1
Sov 9.4 m² 1 1
Vaskerom 3.6 m² 0 1
Sov 5.1 m² 1 1

Fasader

Hytte

Øst
Materiale
Tre
Taktype
Saltak
Høyde
6.0 m
Mønehøyde
11.1 m
Vinduer
3
Dører
1
Synlige etasjer
2
Sør
Materiale
Tre
Taktype
Saltak
Høyde
6.1 m
Mønehøyde
11.1 m
Vinduer
3
Dører
0
Synlige etasjer
2
Nord
Materiale
Tre
Taktype
Flatt tak
Høyde
6.1 m
Mønehøyde
11.1 m
Vinduer
4
Dører
1
Synlige etasjer
2
Vest
Materiale
Tre
Taktype
Saltak
Høyde
6.7 m
Mønehøyde
11.1 m
Vinduer
2
Dører
1
Synlige etasjer
2

Hendelser

31.03.2026 Søknad ett-trinn - endring av bygg innvendig - bærekonstruksjon - endring utvendig fasade - 15/70 - Vinterstødalen 25