Unknown Ferdigattest Fritidsbolig

Rehabilitering og oppføring av stålpipe på fritidsbolig, Liarvatnet 94

📍 Liarvatnet 94 , 4105 JØRPELAND

Nøkkelinfo

Sakstype
Unknown
Bygningstype
Fritidsbolig
Bruksareal
37 m²
Boenheter
1
Kommune
Strand
Fylke
Rogaland
Gnr / Bnr
50 / 18
Saksnummer
2022/2175
Fase
Ferdigattest

Om byggesaken

Rehabilitering og montering av en ny stålpipe tilknyttet en fritidsbolig på 37 m² ved Liarvatnet 94. Den gamle skorsteinen er fjernet på grunn av dårlig tilstand, og det er installert et Premodul skorsteinsystem fra Contura med tilhørende isolasjon og brannsikring. Pipa går gjennom taket med nødvendige avstander til brennbart materiale sikret med rørskålisolasjon, mineralull og dekkplater. Tiltaket inkluderer også oppgradering av vegg og brannvegg rundt pipen. Arbeidet er utført i henhold til gjeldende forskrifter og med dokumentert kvalitetssikring.

Produkter og materialer

Tømrer Veggrehabilitering

🧱 Tømmer og isolasjon

Fornyet vegg der gammel skorstein var montert, inkludert utvidelse av hull i tak for pipegjennomføring

Rehabilitering av vegg og takgjennomføring for ny pipe

Pipe Stålpipe Premodul skorsteinsystem

🧱 Stål

Antall: 1

Premodul skorsteinsystem fra Contura, dimensjon Ø226 mm, med rørskålisolasjon og mineralull, montert med brannsikring og dekkplater

Ny stålpipe med isolasjon og brannsikring for fritidsbolig

Elektro Varmesystem

HWAM 30 ovn tilknyttet stålpipe

Vedovn koblet til ny stålpipe

Fasade Brannvegg rundt pipe

🧱 5 cm tykk brannvegg

Antall: 1

Brannvegg 5 cm tykk rundt pipe i tilknytning til stue og gang

Brannsikring av vegg rundt pipe

Isolasjon Rørskålisolasjon og mineralull

🧱 Mineralull, Rockwool

Rørskålisolasjon brukt for halvisolerende del, mineralull som pakkemateriale og isolasjon rundt pipegjennomføring

Isolasjon for pipe og takgjennomføring

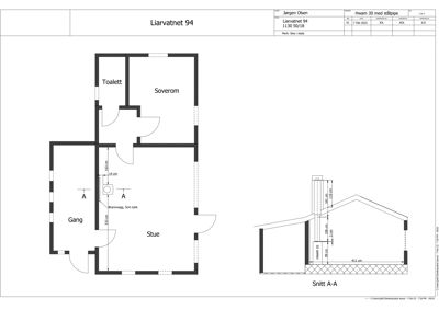
Plantegning

Enebolig 37.0 m²

Etasje 1 37.0 m²

Rom Areal Vinduer Dører
Gang 101 10.0 m² 0 2
Stue 102 15.0 m² 1 1
Soverom 103 10.0 m² 1 1
Toalett 104 2.0 m² 0 1

Hendelser

21.04.2026 50/18 Søknad om ferdigattest - stålpipe - Liarvatnet 94 - Jørgen Olsen
17.03.2026 50/18 Utsettelse av frist for søknad om ferdigattest - stålpipe - Liarvatnet 94
11.03.2026 50/18 Vedrørende ferdigattest - stålpipe - Liarvatnet 94 - Jørgen Olsen
10.03.2026 50/18 Oppfølging av byggesak - stålpipe
28.10.2022 50/18 Fakturagrunnlag - stålpipe - Liarvatnet 94
25.10.2022 50/18 Tillatelse til tiltak - stålpipe - Liarvatnet 94
12.10.2022 50/18 Søknad om tillatelse til tiltak - stålpipe - Liarvatnet 94