ChangeOfUse UnderBehandling Garasje

Bruksendring og fasadeendring på garasje og bolig i Øverbergveien 24D

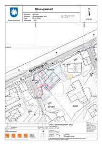
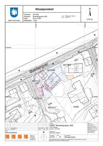
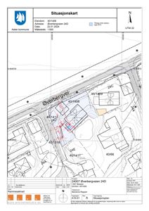
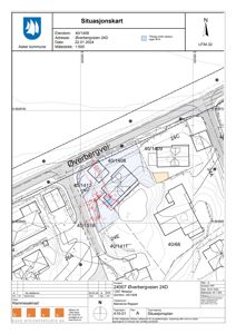
📍 Øverbergveien 24D , 1397 NESØYA

Nøkkelinfo

Sakstype
Bruksendring
Bygningstype
Garasje
Bruksareal
295 m²
Boenheter
2
Kommune
Asker
Fylke
Akershus
Gnr / Bnr
40 / 1408
Saksnummer
24/975
Fase
Under behandling

Om byggesaken

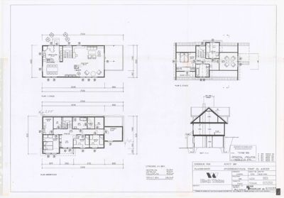
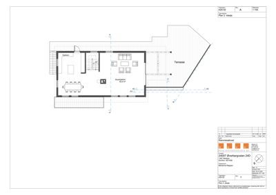
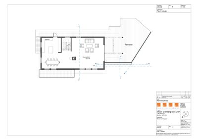
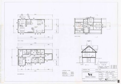
Prosjektet omfatter bruksendring av loftet over en eksisterende garasje til atelier/hobbyrom, fasadeendringer med nye dører og vinduer, etablering av sekundær boenhet i underetasjen med hybel på 59,8 m², samt støttemur og terrengjusteringer. Det er også utvidelse under bakken av kjellerareal uten økning i bebygd areal (BYA). Garasjen er på 32,6 m² med loftsareal på 17,9 m². Boligen er en enebolig med totalt ca. 382 m² BRA fordelt på flere etasjer. Tiltakene er i hovedsak ettergodkjenning av allerede utførte arbeider. Dispensasjonssøknad for bruksendring av rom over garasje til rom for varig opphold er avslått, men øvrige tiltak er godkjent. Det foreligger nabomerknader knyttet til fasadeendringer og bruksendring til sekundær boenhet.

Produkter og materialer

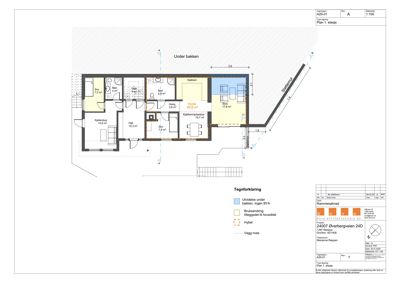
Grunnarbeid Utgraving under bakken

Utvidelse av kjeller under bakkenivå uten økning i BYA

Grunnarbeid for utvidelse av kjellerareal under bakken

Mur Støttemur

🧱 Betong eller naturstein

Støttemur inntil 1,5 meter høyde for terrengjustering

Støttemur for terrengjustering rundt bolig og garasje

Ventilasjon Mekanisk ventilasjon

Ventilasjon i bolig og atelier

Ventilasjonsanlegg for bolig og atelier

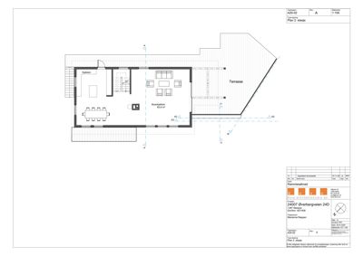
Utendørs Terrasse og levegg

🧱 Tre

Terrasse med levegg i tre, tilknyttet bolig

Utendørs terrasse med levegg i tre

Utendørs Gjerde

🧱 Tre

Gjerde mellom eiendommer for innsynsskjerming, høyde inntil 160 cm

Gjerde for skjerming mellom naboeiendommer

Vinduer Fasadevindu

🧱 Tre med isolerglass

Antall: 14

Nye dører og vinduer i fasade nordøst, sørøst og nordvest, inkludert skyvedør

Fasadevindu og dører i tre med isolerglass, inkludert skyvedør som erstatning for vindu

VVS Bad og kjøkken installasjoner

Badstue, bad og kjøkken i sekundær boenhet og hoveddel

VVS-installasjoner for bad, badstue og kjøkken i bolig og hybel

Trapper Innvendig trapp

Antall: 3

Trapper i bolig og garasje, inkludert trapp til loft

Innvendige trapper i bolig og garasje

Tak Saltak og pulttak

🧱 Tegl

Antall: 2

Saltak på bolig og pulttak på garasje, takmateriale tegl

Taktekking med tegl på bolig og garasje

Elektro Belysning og strøm

Elektriske installasjoner i bolig, garasje og atelier

Elektriske installasjoner for belysning og strøm i alle deler

Fasade Trepanel

🧱 Tre

Antall: 2

Trepanel på bolig og garasje

Utvendig kledning i trepanel på bolig og garasje

Gulv Innvendige gulv

Gulv i bolig, hybel og atelier, ikke spesifisert materiale

Innvendige gulv i bolig, hybel og atelier

Dører Ytterdør og skyvedør

🧱 Tre

Antall: 4

Ny dør i fasade nordøst, ny dør i fasade sørøst, skyvedør i fasade nordvest

Ytterdører og skyvedør i tre til fasadeendringer

Maling Innvendig og utvendig maling

Maling av trepanel og innvendige flater

Maling av utvendig trepanel og innvendige vegger og tak

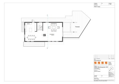
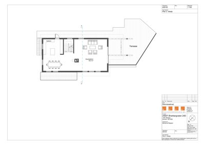
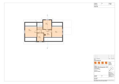
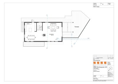
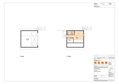
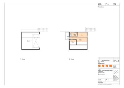
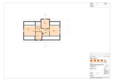
Plantegning

Garasje 32.6 m²

Etasje 1 32.6 m²

Rom Areal Vinduer Dører
Garasje 32.6 m² 0 1
Garasje Garasje 32.6 m² 0 0
Garasje 32.6 m² 0 0
Garasje 32.6 m² 0 0

Etasje 2 0.0 m²

Rom Areal Vinduer Dører
Bod 3.5 m² 0 1
Bad 3.3 m² 0 1
BRA 17.9 m² 0 0
Atelier 16.2 m² 0 0
Bod 3.5 m² 0 0
Bad 3.3 m² 0 0
BRA 17.9 m² 0 0
Atelier 16.2 m² 0 0
Bod 3.5 m² 0 0

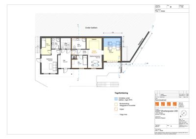
Enebolig 382.1 m²

Etasje 0 98.8 m²

Rom Areal Vinduer Dører
Vaskerom 001 7.6 m² 0 1
Soverom 002 13.2 m² 1 1
Gang 003 8.7 m² 0 2
Soverom 004 8.3 m² 1 1
Soverom 005 8.1 m² 1 1
Bad 006 7.5 m² 0 1
Badstu 007 3.4 m² 1 1
Disponibelt 008 10.3 m² 1 1
Vaskerom U01 7.6 m² 0 2
Soverom U02 12.2 m² 1 1
Hall U03 8.7 m² 0 2
Soverom U04 8.3 m² 1 1
Soverom U05 8.1 m² 1 1
Bad U06 7.5 m² 0 1
Baketu U07 3.4 m² 0 1
Gang U08 6.4 m² 0 2
Disponibelt U09 10.3 m² 0 1
Kjøkken/spisestue 009 19.7 m² 1 1
Hybel 010 59.8 m² 1 1
Stue 011 17.8 m² 1 1
Garasje BRA Garasje 32.6 m² 0 0

Etasje 1 93.3 m²

Rom Areal Vinduer Dører
Kokken/Allrom 101 27.7 m² 1 1
Stue/Trapp 102 56.9 m² 3 1
Hybel 103 59.8 m² 0 0
Sov 104 7.9 m² 1 1
Bad 105 6.9 m² 0 1
Gang 106 3.8 m² 0 2
Sov 107 7.2 m² 1 1
Bad 108 4.0 m² 0 1
Vask 109 5.0 m² 0 1
Hall 110 10.3 m² 0 2
Kjellerstue 111 14.9 m² 0 1
1. etasje BRA 1.etg 85.2 m² 0 0
Soverom Sov 15.9 m² 2 1
Gang Gang 14.1 m² 0 3
Bad Bad 6.3 m² 0 1
Vaskerom VASKEROM 7.8 m² 0 1
Badstue BADSTU 4.7 m² 0 1
Synlig dør (Gang) SYNLIG DRL 0.0 m² 0 1
Hall HALL 8.7 m² 0 2
Soverom SOVEROM 13.2 m² 1 1
Disponiblelt DISPONIBELT 10.3 m² 0 1
Synlig dør (gang) SYNLIG DR. 0.0 m² 0 1
Vaskerom 01 7.8 m² 0 1
Soverom 02 13.2 m² 1 1
Hall 03 8.7 m² 0 2
Gang 04 12.4 m² 0 3
Bad 05 7.6 m² 0 1
Soverom 06 8.3 m² 1 1
Soverom 07 8.1 m² 1 1
Badstue 08 3.4 m² 0 1
Opphold 09 17.0 m² 2 1
Bod 10 3.6 m² 1 1
Gard/Bod 11 9.2 m² 0 1
Sov 12 8.3 m² 1 1
Bad 13 4.0 m² 0 1
Bed 14 6.6 m² 1 1
Opphold 15 15.0 m² 2 1
Hybel 1 16 15.1 m² 1 1
Sov 17 7.2 m² 1 1
Hybel 2 18 15.0 m² 1 1

Etasje 2 56.0 m²

Rom Areal Vinduer Dører
Soverom 201 16.6 m² 1 1
Soverom 202 10.0 m² 1 1
Stue 203 14.6 m² 1 1
Soverom Sov 15.9 m² 1 1
Gang Gang 14.1 m² 0 3
Bad Bad 6.3 m² 0 1
Stue/kjøkken 83.9 m² 4 1
Loft BRA loft 55.0 m² 0 0
Stue/kjøkken 83.9 m² 4 2
Gang 204 14.1 m² 0 3
Bad 205 6.3 m² 0 1
Stue/kjøkken 83.9 m² 4 2

Etasje -1 56.3 m²

Rom Areal Vinduer Dører
Gang 01 14.1 m² 0 2
Bad 02 6.3 m² 0 1
Sov 03 9.3 m² 0 2
Sov 04 15.9 m² 1 1
Sov 05 14.0 m² 2 1
U. etasje BRA U.etg 44.6 m² 0 0

Etasje -2 17.9 m²

Rom Areal Vinduer Dører
Atelier BRA Atelier 17.9 m² 0 0

Etasje -3 59.8 m²

Rom Areal Vinduer Dører
Hybel BRA Hybel 59.8 m² 0 0

Hovedbygg 344.2 m²

Etasje 0 44.6 m²

Rom Areal Vinduer Dører
Gang 0.0 m² 0 0
Stue 0.0 m² 0 0
Kjøkken 0.0 m² 0 0
Vaskerom 0.0 m² 0 0
Bad 0.0 m² 0 0
Sovegang 0.0 m² 0 0
Soverom 0.0 m² 0 0
Garasje 32.6 m² 0 0

Etasje 1 85.2 m²

Rom Areal Vinduer Dører
Sovegang 0.0 m² 0 0
Soverom 0.0 m² 0 0

Etasje 2 55.0 m²

Rom Areal Vinduer Dører

Etasje 3 55.0 m²

Rom Areal Vinduer Dører

Etasje -1 0.0 m²

Rom Areal Vinduer Dører

Etasje ? 104.4 m²

Rom Areal Vinduer Dører
Stue 0.0 m² 0 0
Kjøkken 0.0 m² 0 0
Vaskerom 0.0 m² 0 0
Bad 0.0 m² 0 0
Sovegang 0.0 m² 0 0
Soverom 0.0 m² 0 0
Hybel 59.8 m² 0 0

Hoveddel 239.8 m²

Etasje 0 44.6 m²

Rom Areal Vinduer Dører

Etasje 1 85.2 m²

Rom Areal Vinduer Dører

Etasje 2 55.0 m²

Rom Areal Vinduer Dører

Etasje -1 55.0 m²

Rom Areal Vinduer Dører

Fasader

Enebolig

Nordvest
Materiale
Tre
Taktype
Saltak
Takmat.
Tegl
Høyde
6.5 m
Mønehøyde
8.2 m
Vinduer
6
Dører
1
Synlige etasjer
2
Sørvest
Materiale
Tre
Taktype
Saltak
Takmat.
Tegl
Høyde
6.5 m
Mønehøyde
8.2 m
Vinduer
1
Dører
0
Synlige etasjer
1
Sørøst
Materiale
Tre
Taktype
Saltak
Takmat.
Tegl
Høyde
6.5 m
Mønehøyde
8.2 m
Vinduer
4
Dører
1
Synlige etasjer
2
Nordøst
Materiale
Tre
Taktype
Saltak
Takmat.
Tegl
Høyde
6.5 m
Mønehøyde
8.2 m
Vinduer
3
Dører
1
Synlige etasjer
2
Nord-Vest
Materiale
Tre
Taktype
Saltak
Takmat.
Tegl
Vinduer
8
Dører
1
Synlige etasjer
2
Sør-Vest
Materiale
Tre
Taktype
Saltak
Takmat.
Tegl
Vinduer
3
Dører
0
Balkonger
1
Synlige etasjer
2
Sør-Øst
Materiale
Tre
Taktype
Saltak
Takmat.
Tegl
Vinduer
4
Dører
1
Synlige etasjer
2
Nord-Øst
Materiale
Tre
Taktype
Saltak
Takmat.
Tegl
Vinduer
2
Dører
0
Synlige etasjer
1
Ukjent
Taktype
Saltak
Takmat.
Tegl
Vinduer
3
Dører
1
Synlige etasjer
2

Garasje

Sørvest
Materiale
Tre
Taktype
Pulttak
Takmat.
Tegl
Høyde
3.5 m
Mønehøyde
5.0 m
Vinduer
1
Dører
0
Synlige etasjer
1
Sør
Materiale
Tre
Taktype
Flatt tak
Høyde
2.4 m
Vinduer
0
Dører
0
Synlige etasjer
1
Øst
Materiale
Tre
Taktype
Saltak
Høyde
2.4 m
Mønehøyde
4.0 m
Vinduer
1
Dører
1
Synlige etasjer
1
Vest
Materiale
Tre
Taktype
Saltak
Høyde
2.4 m
Mønehøyde
4.0 m
Vinduer
1
Dører
1
Synlige etasjer
1
Nord
Materiale
Tre
Taktype
Flatt tak
Høyde
2.4 m
Vinduer
0
Dører
0
Synlige etasjer
1

Hendelser

15.04.2026 40/1408 Øverbergveien 24D - Statsforvalterens bekreftelse på mottatt klage i byggesak
14.04.2026 40/1408 Øverbergveien 24 D - Oversendelse av klage til statsforvalter
05.03.2026 40/1408 Øverbergveien 24D - Kvittering på mottatt klage
03.03.2026 24007 - Øverbergveien 24d - klage på avslag søknad om dispensasjon fra KP§13.5.1-g for bruksendring av garasjeloft til atelier
12.02.2026 40/1408 Øverbergveien 24D - Avslag på søknad om dispensasjon fra byggegrense og delvis godkjent rammetillatelse
23.01.2026 Øverbergveien 24D - Søkers oppfølging av PBAs siste brev - søknad om dispensasjon fra KP § 13.5.1-g for bruksendring av garasjeloft til atelier
07.01.2026 40/1408 Øverbergveien 24D - Ber om nabovarsling for bruksendring og dispensasjon fra byggegrense mot vei
29.12.2025 40/1408 Øverbergveien 24D - Søkers oppfølging av PBAs nyeste brev - søknad om dispensasjon fra KP § 13.5.1-g for bruksendring av garasjeloft til atelier
16.12.2025 40/1408 Øverbergveien 24D - Svar til søkers oppfølging vedr. klage på avvisning av klage på mangelgebyr
09.12.2025 40/1408 Øverbergveien 24D - Søkers oppfølging vedr. klage på avvisning av klage på mangelgebyr
09.12.2025 40/1408 Øverbergveien 24D - Varsel om avslag
08.09.2025 40/1408 Øverbergveien 24D - Søkers oppfølging av dialog om BYA
01.09.2025 40/1408 Øverbergveien 24D - Vedtak om opphevelse av avvist klage og realitetsbehandling
29.08.2025 Øverbergveien 24D - E-post til ansvarlig søker angående beregning av gjennomsnittlig terreng og BYA
12.08.2025 40/1408 Øverbergveien 24D - Kvittering for mottatt klage på vedtak om avvisning gebyrklage
10.06.2025 40/1408 Øverbergveien 24D - Klage på avvisning av gebyrklage
23.05.2025 40/1408 Øverbergveien 24D - Avvisning klage på mangelgebyr
07.05.2025 40/1408 Øverbergveien 24D - Søkers oppfølging av PBAs aller nyeste brev - klage på mangelgebyr
19.04.2025 40/1408 Øverbergveien 24D - Ufullstendig søknad 3
03.03.2025 40/1408 Øverbergveien 24D - Oppfølging av PBAs nyeste brev
10.01.2025 40/1408 Øverbergveien 24D - Ufullstendig søknad 2
27.11.2024 40/1408 Øverbergveien 24D - Søkers oppfølging av PBAs brev
27.09.2024 40/1408 Øverbergveien 24D - Ufullstendig søknad
23.08.2024 40/1408 Øverbergveien 24D - Bekreftelse på at vi har mottatt din søknad
15.03.2024 40/1408 Øverbergveien 24D - Søknad om ettergodkjenning / bruksendring av fasadeendring, støttemur/terrengjustering, sekundær boenhet og bruksendring av loft