ChangeOfUse Rammetillatelse Garasje

Bruksendring av garasje til bolig i Skottnesveien 215

📍 Skottnesveien 215 , 8373 BALLSTAD

Nøkkelinfo

Sakstype
Bruksendring
Bygningstype
Garasje
Bruksareal
28 m²
Boenheter
1
Kommune
Vestvågøy
Fylke
Nordland - Nordlánnda
Gnr / Bnr
13 / 143
Saksnummer
26/1255
Fase
Rammetillatelse

Om byggesaken

Bruksendring av en eksisterende garasje på 28,5 m² til boligformål i Skottnesveien 215. Garasjen ombygges til del av eneboligens hoveddel med nye rom som gang og soverom, uten endring av bygningens ytre dimensjoner eller eiendommens utnyttelsesgrad. Bygget har saltak med teglstein, tre som fasademateriale, og mønehøyde på 4,82 meter. Innvendig omfatter tiltaket blant annet etablering av EI30 vegger og dører for brannsikring mellom rommene. Det er ett vindu i det nye soverommet på 90x120 cm som kan åpnes. Tiltaket påvirker ikke adkomst, vannforsyning eller avløp.

Produkter og materialer

VVS Vann og avløp til boligrom

Tilpasning av vann- og avløpsinstallasjoner for boligbruk

Gulv Gulvbelegg

Nytt gulv i ombygget boligdel

Grunnarbeid Ingen endring

Ingen nye grunnarbeider da byggets ytre dimensjoner ikke endres

Tak Saltak med teglstein

🧱 Teglstein

Saltak med teglstein som eksisterende bygg

Taktekking med teglstein på saltak

Dører EI30 brannklassifiserte dører

EI30 vegger og dører mellom soverom og tidligere garasje

Brannsikring med EI30 dører og vegger

Vinduer Åpningsbart soveromsvindu

Antall: 1

Soveromsvindu 90x120 cm som kan åpnes

Nytt vindu i soverom for lys og ventilasjon

Elektro Elektrisk anlegg for bolig

Elektrisk installasjon tilpasset boligstandard

Innvendig arbeid Vegger og himling

Oppbygging av nye vegger og himling iht. brannkrav og romfunksjon

Innvendige konstruksjoner for romdeling og brannsikring

Fasade Trepanel

🧱 Tre

Fasade i tre som eksisterende, ingen endring i ytre fasade

Fasadebekledning i tre som eksisterende bygg

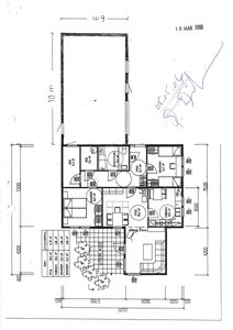
Plantegning

Enebolig 196.4 m²

Etasje 1 196.4 m²

Rom Areal Vinduer Dører
Sov 101 9.5 m² 0 1
Kjøkken 102 12.3 m² 0 0
Stue 103 29.0 m² 1 1
Sov 104 11.9 m² 0 1
Bad 105 5.5 m² 0 1
Vaskerom 106 3.2 m² 0 1
Gang 107 5.5 m² 0 0
Sov 108 10.7 m² 0 1
Garasje 109 28.5 m² 0 1
Bod 110 16.4 m² 0 1
Gang 111 4.3 m² 0 1

Garasje 111.2 m²

Etasje 0 111.2 m²

Rom Areal Vinduer Dører
Stue 101 29.3 m² 1 1
Kjøkken 102 10.5 m² 0 1
Soverom 103 12.2 m² 1 1
Soverom 104 11.2 m² 1 1
Bad/Vask 105 5.6 m² 0 1
Hall 106 11.7 m² 0 2
Uteglass 107 5.8 m² 0 1
Bod 108 5.4 m² 0 1
Teknisk 109 3.2 m² 0 1

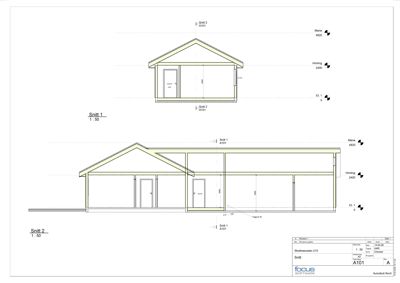
Fasader

Enebolig

Øst
Materiale
Tre
Taktype
Saltak
Takmat.
Tegl
Høyde
2.4 m
Mønehøyde
4.8 m
Vinduer
5
Dører
1
Synlige etasjer
1
Sør
Materiale
Tre
Taktype
Saltak
Takmat.
Tegl
Høyde
2.4 m
Mønehøyde
4.8 m
Vinduer
4
Dører
0
Synlige etasjer
1
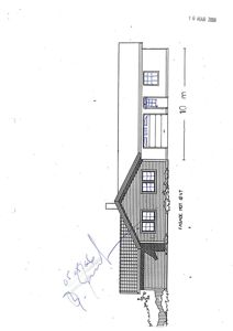
Vest
Materiale
Tre
Taktype
Saltak
Takmat.
Tegl
Høyde
2.4 m
Mønehøyde
4.8 m
Vinduer
1
Dører
2
Synlige etasjer
1
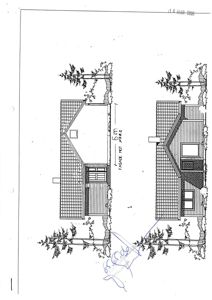
Nord
Materiale
Tre
Taktype
Saltak
Takmat.
Tegl
Høyde
2.4 m
Mønehøyde
4.8 m
Vinduer
1
Dører
1
Synlige etasjer
1

Hendelser

21.04.2026 Tillatelse til tiltak - Bruksendring fra tilleggsdel til hoveddel - gnr 13 bnr 143
15.04.2026 Søknad om bruksendring - gnr 13 bnr 143